Ready-to-move-in home with versatile self-contained ground-floor potential.
- Four bedrooms and three bathrooms across three floors
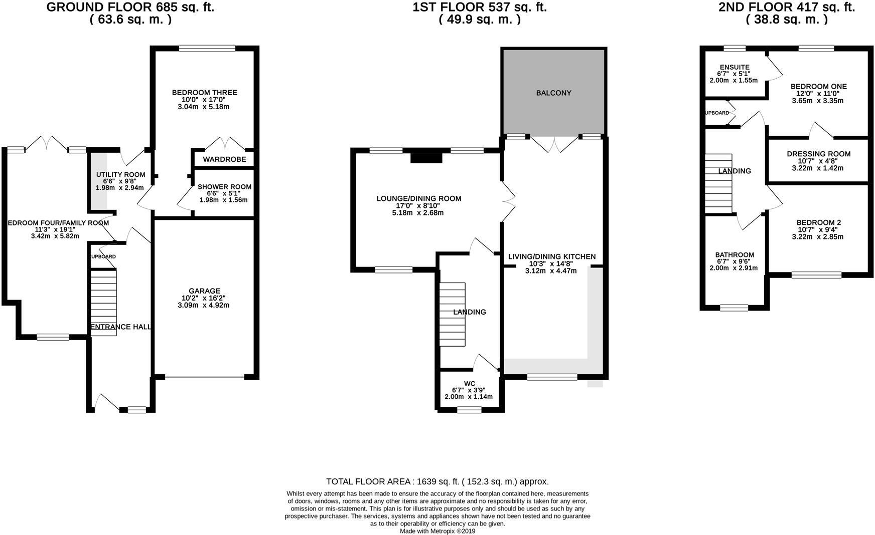
This extended four-bedroom town house offers substantial, well-presented accommodation across three floors in the heart of Rawdon village. The layout includes three bathrooms, a master suite with dressing room, and ground-floor space that can function as a self-contained flat — ideal for relatives, guests or rental income. High-quality finishes, contemporary fittings and stylish bathrooms make the property ready to move into.
Sited on a generous corner plot at the head of a cul-de-sac, the home benefits from extensive off-street parking, an integral garage with storage and private, low-maintenance gardens with decking, faux lawn and a patio for entertaining. The first-floor open-plan kitchen/dining/living area opens onto a generous balcony overlooking the garden, while a separate lounge and useful utility/kitchenette increase flexibility.
The location will particularly appeal to families: well-regarded primary schools are within easy reach, Rawdon Billing and local green spaces are a short walk away, and commuter links to Leeds, Bradford and the airport are convenient. The loft is of generous proportions and offers scope to convert, subject to any necessary consents.
Important practical notes: council tax is in band F and described as expensive, and the vendor/agent cannot confirm whether planning or building regulation consents were obtained for past alterations — buyers must verify this with their legal representative before completion.
5 bedroom detached house for sale in Layton Mount, Rawdon, Leeds, West Yorkshire, LS19 — £745,000 • 5 bed • 3 bath • 2430 ft²
3 bedroom house for sale in Prospect Street, Rawdon, Leeds, West Yorkshire, LS19 — £350,000 • 3 bed • 2 bath • 1300 ft²
4 bedroom terraced house for sale in Town Street, Leeds, LS19 — £400,000 • 4 bed • 3 bath • 2414 ft²
4 bedroom detached house for sale in Gladstone Crescent, Rawdon, Leeds, West Yorkshire, LS19 — £995,000 • 4 bed • 4 bath • 2065 ft²
4 bedroom detached house for sale in Carr Lane, Rawdon, Leeds, West Yorkshire, LS19 — £650,000 • 4 bed • 2 bath • 1726 ft²
4 bedroom semi-detached house for sale in Hillgarth, Canada Crescent, Rawdon, Leeds, LS19 — £425,000 • 4 bed • 2 bath • 1542 ft²














































































































