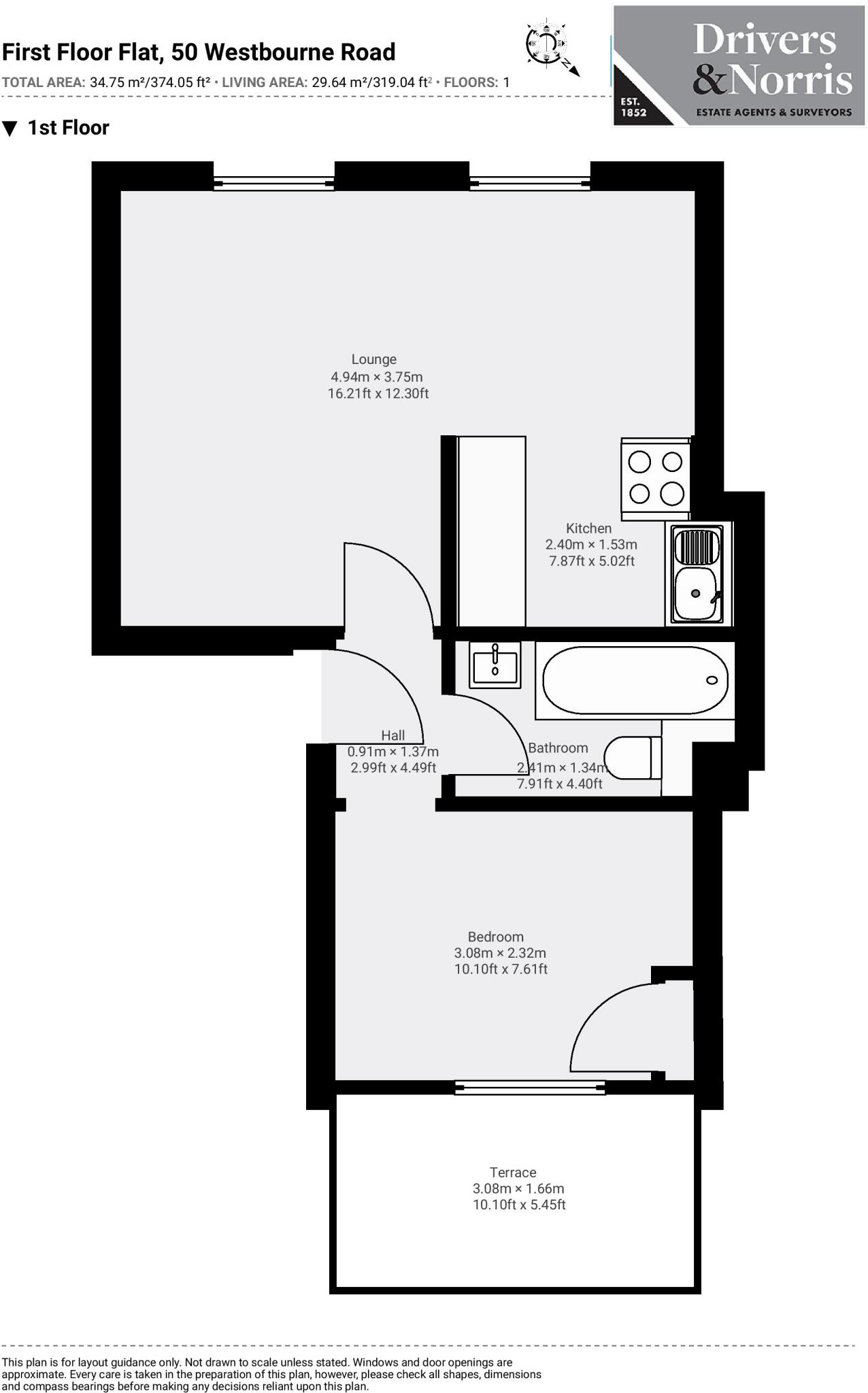
One-bedroom near Caledonian station with terrace and strong connectivity.
- Share of freehold
- High ceilings and good natural light
- Private roof terrace, small timber-decked space
- Compact footprint: c.319 sq ft (small)
- Solid brick walls, likely no wall insulation
- Above-average local crime and area deprivation
- Excellent mobile signal and fast broadband
- Mains gas boiler heating; double glazing (install date unknown)
A bright one-bedroom apartment in a period conversion, offered with a share of freehold and a small private roof terrace. The open-plan kitchen/lounge benefits from good natural light and high ceilings, creating a sense of space despite the compact footprint. Presented tidy and largely move-in ready, the layout suits a single occupant or couple seeking a central North London base.
Practical positives include fast broadband, excellent mobile signal, mains gas central heating via boiler and radiators, and double glazing (installation date unknown). The property sits a short walk from Caledonian tube station and the amenities of Upper Street, with leisure facilities, shops and several well-regarded schools nearby.
Important drawbacks are the flat’s small overall size (approximately 319 sq ft) and its solid brick construction which likely lacks wall insulation. The wider area has above-average crime and pockets of deprivation; the outlook is a typical inner-city street rather than scenic. The private terrace is small and suited to a table and chairs only.
For first-time buyers or buy-to-let investors, this flat offers easy access, strong connectivity and period character with future potential to improve energy performance. Buyers should factor in the compact accommodation and potential refurbishment or insulation works when assessing value and running costs.
1 bedroom flat for sale in Furlong Road, London, N7 — £525,000 • 1 bed • 1 bath • 434 ft²
1 bedroom flat for sale in Hornsey road, Holloway, N7 — £399,999 • 1 bed • 1 bath • 404 ft²
2 bedroom apartment for sale in Lambton Road, London, N19 — £595,000 • 2 bed • 1 bath • 651 ft²
3 bedroom apartment for sale in Davenant Road, N19 — £540,000 • 3 bed • 2 bath • 836 ft²
1 bedroom flat for sale in Sussex Way, Upper Holloway, N19 — £500,000 • 1 bed • 1 bath • 573 ft²
1 bedroom apartment for sale in Mountgrove Road, London, N5 — £425,000 • 1 bed • 1 bath • 414 ft²










































