Compact, move-in ready house ideal for first-time buyers or buy-to-let investors.
Chain-free two-bedroom mid-terrace in popular Moreton Hall
En-bloc garage with parking space to front
Good decorative order, ready to move in
Small, enclosed rear garden with patio and lawn
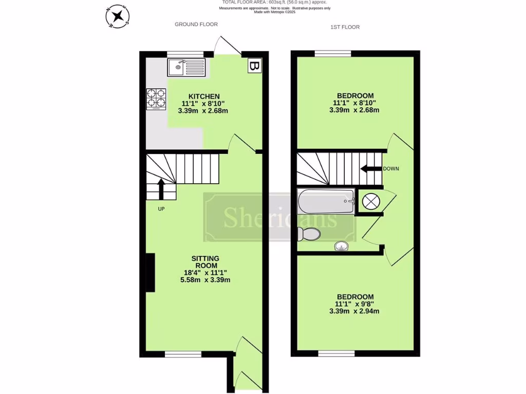
Single family bathroom; two double bedrooms upstairs
Double glazing fitted; installation dates unknown
Partial cavity wall insulation assumed, may need upgrades
Small plot limits extension potential
Set within the popular Moreton Hall development, this chain-free two-bedroom mid-terrace offers low-maintenance living close to local shops and good schools. The sitting room leads to a practical kitchen/diner and the enclosed rear garden benefits from direct access to an en-bloc garage and parking.
The home is presented in good decorative order with double glazing and gas central heating. Room sizes are compact but well arranged across two floors, making the property especially suitable for first-time buyers or buy-to-let investors seeking a straightforward, ready-to-move-in home.
Practical points to note: the plot is small and the property has a single bathroom. The garage is en-bloc (separate block) rather than attached, and the exact installation dates for glazing and insulation are unknown. These factors keep maintenance simple but limit expansion potential.
In short, this is an accessible, affordably taxed (Band B) terraced house in a comfortable suburb with fast broadband and excellent mobile signal — a sensible, low-risk purchase for buyers prioritising location and convenience.
2 bedroom end of terrace house for sale in Haselmere Close, Bury St. Edmunds, IP32 — £235,000 • 2 bed • 1 bath • 551 ft²
2 bedroom detached bungalow for sale in Browse Close, Bury St. Edmunds, IP32 — £300,000 • 2 bed • 1 bath • 492 ft²
3 bedroom link detached house for sale in Cranesbill Drive, Bury St. Edmunds, IP32 — £325,000 • 3 bed • 2 bath
2 bedroom house for sale in Worcester Close, Bury St. Edmunds, IP32 — £270,000 • 2 bed • 1 bath • 786 ft²
3 bedroom end of terrace house for sale in Manor Ash Drive, Bury St. Edmunds, IP32 — £280,000 • 3 bed • 1 bath • 872 ft²
2 bedroom terraced house for sale in Chaffinch Road, Bury St Edmunds, IP32 — £240,000 • 2 bed • 2 bath • 594 ft²






















































