Chain-free bungalow with loft rooms, garage and low-maintenance garden in desirable village..
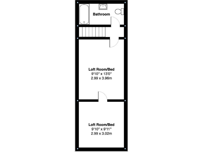
- Detached two-bedroom bungalow with three loft rooms and small loft bathroom
- Chain free and ample off-road parking with detached garage
- Conservatory and low-maintenance paved rear garden
- Bay-fronted living room; kitchen/diner with integrated double oven
- Gas central heating and UPVC double glazing throughout
- Loft rooms have limited head height; practical but not full first-floor space
- Early-1990s construction; some updating likely to modernise finishes
- Local area shows higher deprivation; tenure not specified
Set on a pleasant plot in a desirable village location beside Maes y Pant nature reserve, this detached two-bedroom bungalow offers single-storey living with useful additional loft rooms and no onward chain. The layout suits a downsizer seeking easy-care gardens, generous parking and a detached garage. Gas central heating and UPVC double glazing provide everyday comfort.
Internally the accommodation feels traditional and practical: a bright living room with bay window, kitchen/diner with integrated ovens and space for appliances, a conservatory opening to the paved rear garden, and a ground-floor wet room. An open staircase rises to three loft rooms, including a small bathroom and two further bedrooms/space for hobbies or guests — adding flexibility but with limited head height in places.
Outside there is ample off-road parking with turning space and a garage with power and light, plus a low-maintenance paved rear garden and lawned front. The plot is a good size for the location and will suit buyers who want low-upkeep outdoor space and easy access to local green amenities.
Buyers should note this is a traditionally styled property from the early 1990s that will likely benefit from some updating to kitchen, bathrooms and cosmetic finishes to suit modern tastes. Tenure is not specified and the surrounding area shows higher levels of deprivation, which may affect resale dynamics. Offered chain free, the bungalow will appeal to downsizers or buyers seeking a practical single-storey home with loft potential.
3 bedroom detached bungalow for sale in Petit Close, Cefn-Y-Bedd, Wrexham, LL12 — £290,000 • 3 bed • 1 bath • 1063 ft²
3 bedroom detached bungalow for sale in Pine Grove, Llay, Wrexham, LL12 — £265,000 • 3 bed • 1 bath • 1174 ft²
3 bedroom detached bungalow for sale in Fairoaks Crescent, Llay, Wrexham, LL12 — £255,000 • 3 bed • 1 bath • 993 ft²
2 bedroom detached bungalow for sale in Bridge Street, Pant, Penycae, LL14 — £225,000 • 2 bed • 1 bath • 967 ft²
2 bedroom house for sale in Rhyddyn Hill, Caergwrle, Wrexham, LL12 — £295,000 • 2 bed • 1 bath • 974 ft²
3 bedroom bungalow for sale in Linden Grove, Llay, Wrexham, LL12 — £265,000 • 3 bed • 1 bath • 1007 ft²










































