Spacious rooms and private garden close to Oakham town and schools.
Detached four-bedroom family home in quiet cul-de-sac location
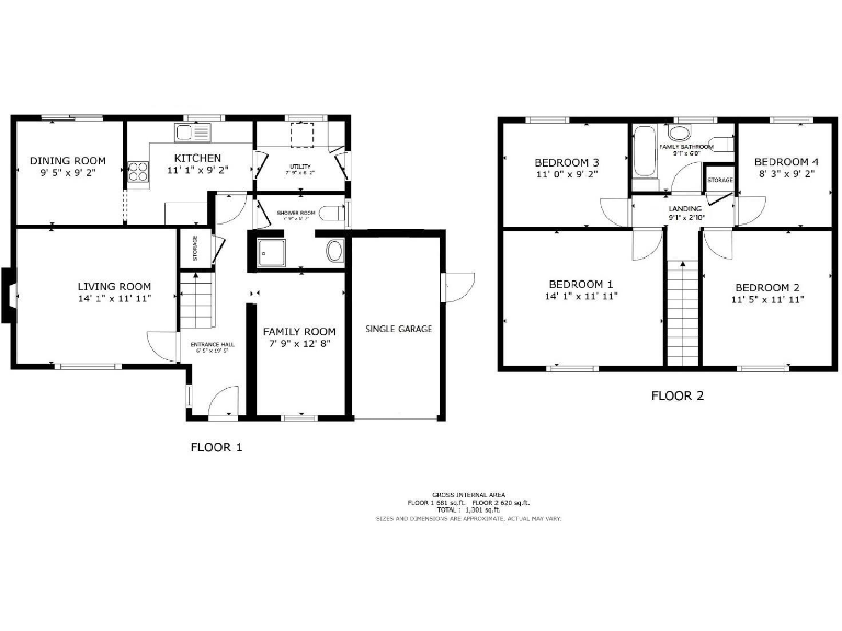
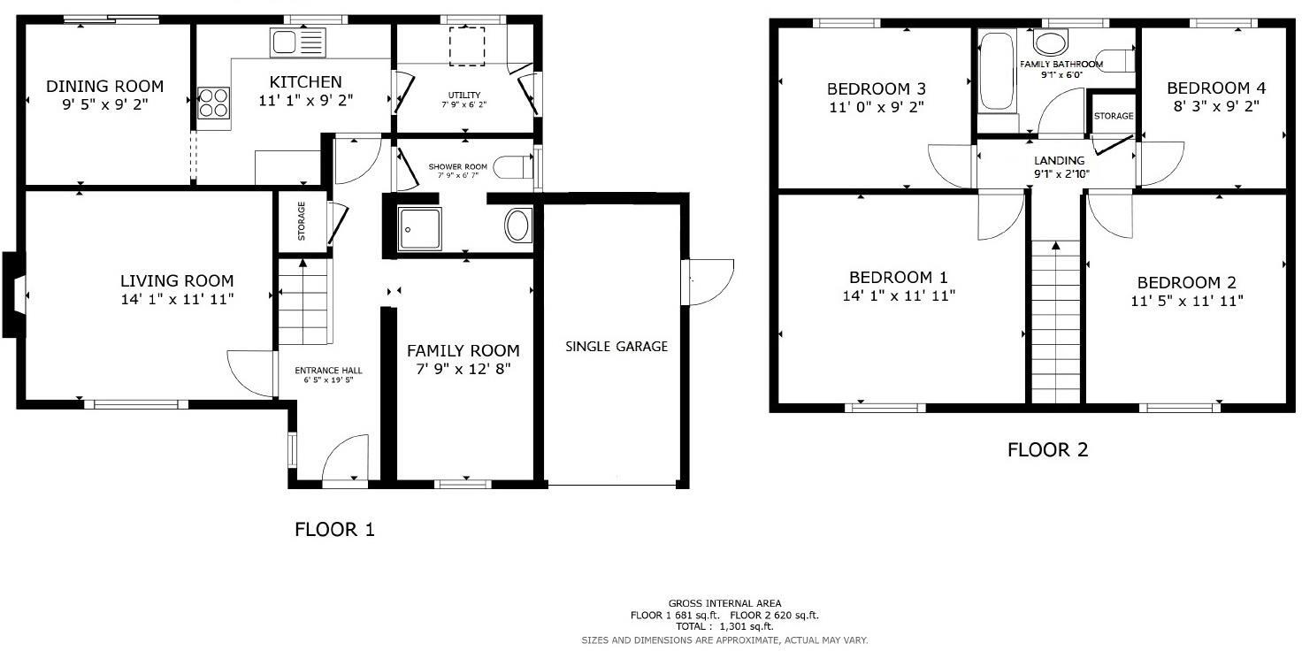
Set on a quiet cul-de-sac in Oakham, this four-bedroom detached home offers flexible family living across two floors. The ground floor provides three reception rooms, a practical utility and a separate shower room — useful for busy households and guests. The layout works well for families who need home office, play and formal living spaces without major reconfiguration.
Bedrooms are well proportioned, with a generous principal room and three further bedrooms upstairs served by a family bathroom. The rear garden is private, well screened by hedging and mature planting, and includes a patio for outdoor dining. A single garage and driveway provide off-street parking in a calm residential setting within walking distance of town and local schools.
The property is solid and comfortable but offers scope for modernisation to increase value and comfort — updating kitchen, bathrooms or improving energy performance are logical next steps. Practical considerations: the home has a D EPC, double glazing fitted before 2002 and sits in Council Tax Band E (above-average charges). Buyers should review the supplied Key Facts for Buyers for material information disclosures.
This house will suit families seeking a quiet Oakham location with flexible rooms and a private garden, and buyers willing to invest modestly to personalise and update finishes.
4 bedroom detached house for sale in Trent Road, Oakham, LE15 6HE, LE15 — £425,000 • 4 bed • 1 bath • 1588 ft²
4 bedroom detached house for sale in Brocklebank Road, Barleythorpe, LE15 — £495,000 • 4 bed • 2 bath • 1994 ft²
4 bedroom link detached house for sale in Hectors Way, Oakham, LE15 — £350,000 • 4 bed • 2 bath • 1210 ft²
4 bedroom detached house for sale in Prince George Avenue, Oakham, LE15 — £430,000 • 4 bed • 2 bath • 1300 ft²
4 bedroom detached house for sale in Edmonton Way, Oakham, LE15 — £500,000 • 4 bed • 2 bath • 1485 ft²
4 bedroom detached house for sale in Stud Road, Oakham, LE15 — £435,000 • 4 bed • 2 bath • 1495 ft²










































































