Bright, characterful flat minutes from Hyde Park and Paddington transport.
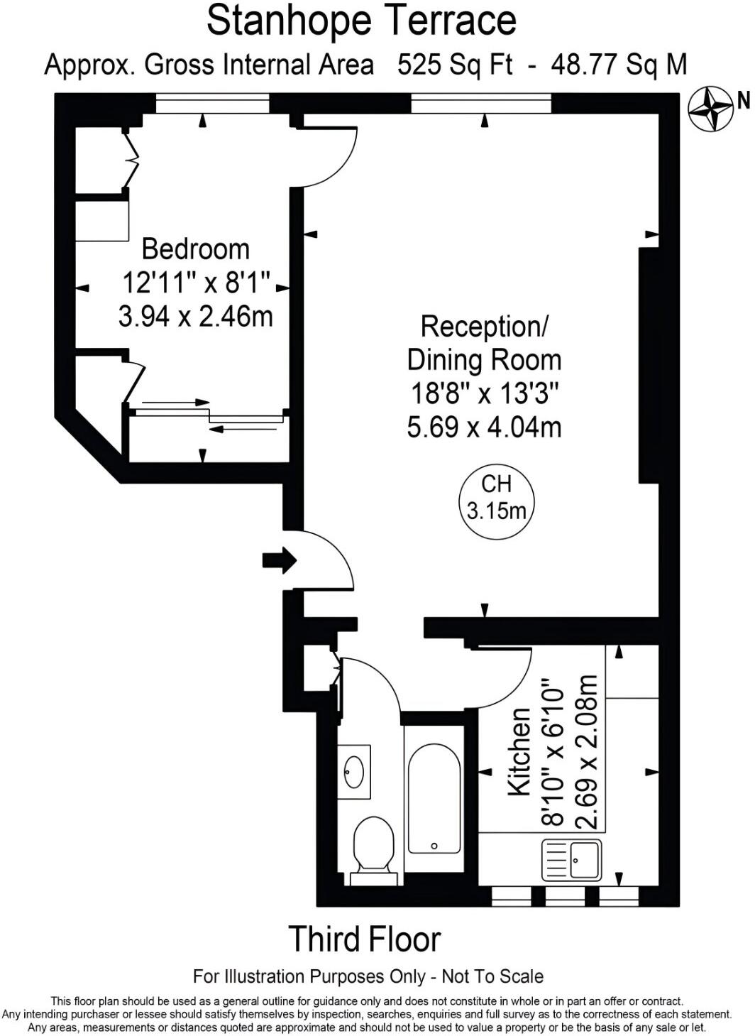
Third-floor one-bedroom apartment, approximately 525 sq ft
Set on the third floor of a handsome stucco terrace, this one-bedroom apartment pairs central Hyde Park location with bright, high-ceilinged living spaces. The main reception benefits from impressive 3.15m ceilings, tall sash-style windows and an open-plan layout that feels larger than the square footage suggests. Lift access adds practical convenience for upper-floor living.
The flat extends to approximately 525 sq ft and is presented in contemporary decorative order with a modern kitchen and bathroom — ready to move into for a professional single occupant or couple. Its proximity to Paddington, Lancaster Gate and Connaught Village makes commuting, shopping and dining straightforward, while Hyde Park offers immediate green space for recreation.
Important practical points: the property is leasehold with an annual service charge (approx £3,080) and a small ground rent (£200). The bedroom and secondary rooms are modest in size and there is no private outdoor space, which may limit appeal for those seeking a garden. Crime levels in the area are reported as above average — a relevant factor for some buyers.
Overall this apartment suits a first-time buyer or pied-à-terre purchaser who values location, character and high ceilings over outdoor amenity and large bedroom space. It also offers straightforward rental potential for investors looking for central W2 demand, provided leasehold costs and local factors are considered.
3 bedroom flat for sale in Stanhope Terrace,
Hyde Park, W2 — £1,500,000 • 3 bed • 2 bath • 1180 ft²
1 bedroom flat for sale in Stanhope Terrace, LONDON, W2 — £699,950 • 1 bed • 1 bath • 525 ft²
1 bedroom apartment for sale in Stanhope Terrace, Hyde Park, W2 — £699,950 • 1 bed • 1 bath • 525 ft²
1 bedroom flat for sale in Orsett Terrace, Bayswater, London, W2 — £280,000 • 1 bed • 1 bath • 346 ft²
1 bedroom flat for sale in Gloucester Terrace, Notting Hill, W2 — £625,000 • 1 bed • 1 bath • 585 ft²
1 bedroom flat for sale in Westbourne Terrace, Hyde Park, W2 — £599,950 • 1 bed • 1 bath • 622 ft²






























































