Bright two-bedroom city apartment with balcony, parking and long lease..
Eighth-floor apartment with expansive city-centre views
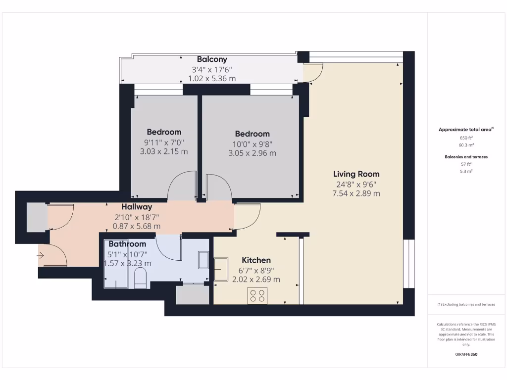
Set on the eighth floor, this newly redecorated two-bedroom apartment delivers bright, elevated city-centre living with impressive urban views. Large windows flood the open-plan reception with light and the generous balcony provides a private spot to unwind while looking over the city and stadium.
Practical benefits include secure allocated off-street parking, a very long lease (978 years) and chain-free sale — attractive to first-time buyers and buy-to-let investors seeking immediate occupation. The apartment is a sensible size (circa 650 sq ft) with modern finishes throughout and double glazing installed after 2002.
Buyers should note material running and neighbourhood factors: an average service charge around £2,800 per year, electric storage heating, and cavity walls likely without insulation (as built). The immediate area scores as very deprived with higher crime levels and a strong student/cosmopolitan presence, which may suit renters but could deter those seeking a quieter environment.
Overall this property offers affordable access to Liverpool city-centre living, excellent transport and amenities nearby, and clear rental potential — balanced against service costs, heating type and the local area profile. A practical choice for a first home or investor prepared for urban living realities.
2 bedroom apartment for sale in Conway Street, Liverpool, Merseyside, L5 — £80,000 • 2 bed • 1 bath
1 bedroom apartment for sale in Conway Street, Liverpool, Merseyside, L5 — £75,000 • 1 bed • 1 bath
2 bedroom apartment for sale in Conway Street, Liverpool, L5 — £99,000 • 2 bed • 1 bath • 796 ft²
3 bedroom apartment for sale in Conway Street, Everton, Liverpool, L5 — £165,000 • 3 bed • 2 bath • 1432 ft²
2 bedroom apartment for sale in Conway Street, Liverpool, Merseyside, L5 — £85,000 • 2 bed • 1 bath • 698 ft²
2 bedroom apartment for sale in 69 Conway Street, Liverpool, Merseyside, L5 — £95,000 • 2 bed • 1 bath • 639 ft²


































































