Bright modern two-bedroom apartment near Colliers Wood station and parks.
Two double bedrooms with principal en-suite
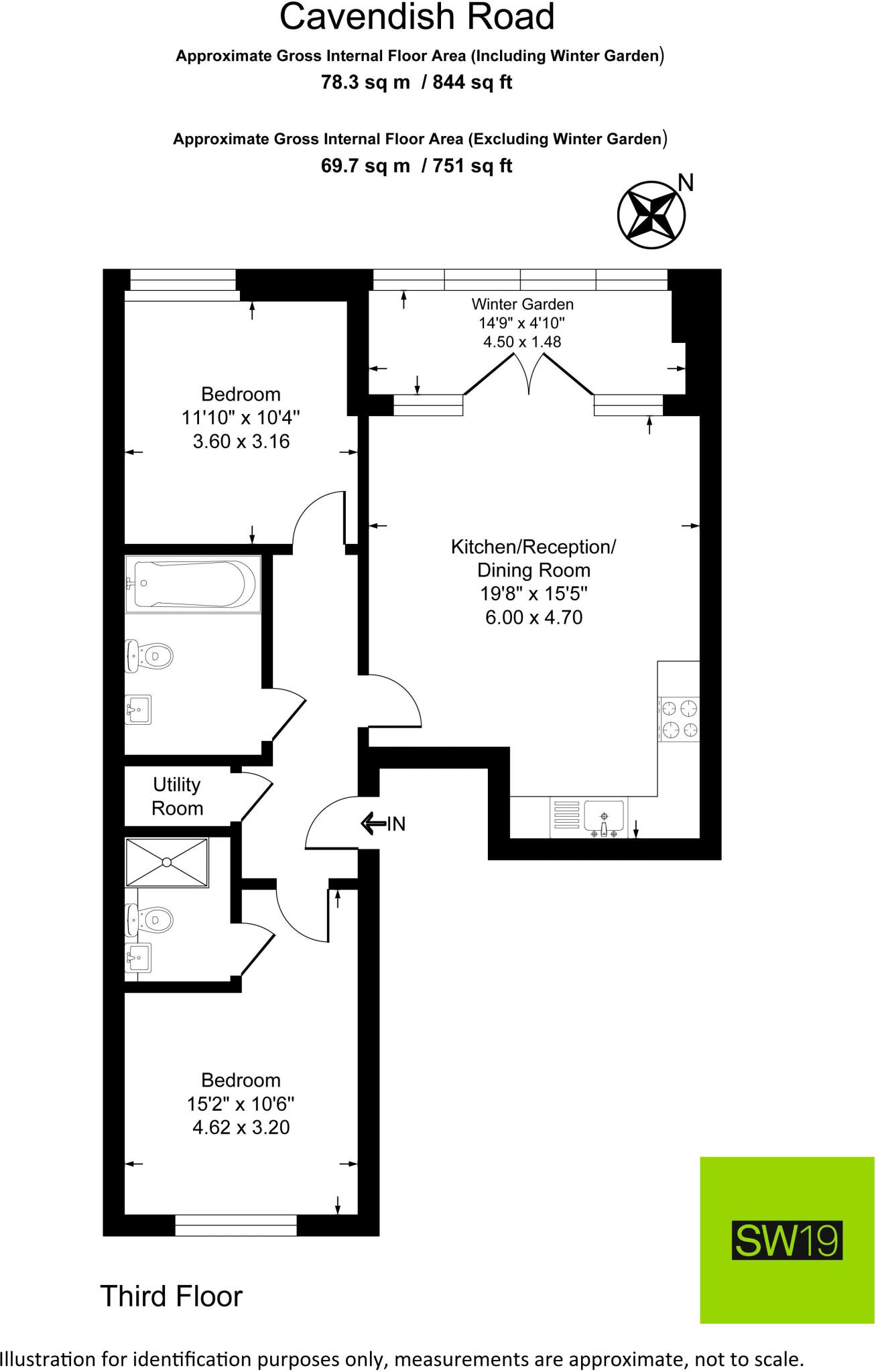
Spacious open-plan kitchen/reception with floor-to-ceiling glazing
Winter garden — sheltered, year-round light-filled space
Newly renovated throughout; contemporary kitchen and sanitary fittings
Approx. 751 sq ft; average-sized city apartment
Leasehold tenure — review lease length and service charges
Heated via community scheme; check running costs
Busy high-street location — convenient but some daytime noise
This newly renovated two-bedroom apartment on Cavendish Road offers a bright, contemporary living space ideal for first-time buyers or buy-to-let investors. The open-plan kitchen and reception benefits from wide-plank timber flooring, recessed lighting and large floor-to-ceiling glazing, creating an airy feel and good natural light throughout. A winter garden provides a versatile, sheltered spot for a home office, reading nook or small indoor planting area.
Both bedrooms are doubles, with the principal enjoying an en-suite; a modern main bathroom completes the layout. At around 751 sq ft the apartment is a practical, average-sized city home with stylish finishes and integrated kitchen fittings. The property sits in a well-served Colliers Wood location with local shops, cafés and Colliers Wood Underground (Northern Line) within walking distance, and nearby green spaces including Wandle Park and Morden Hall Park.
Important practical points: the flat is leasehold and heated via a community scheme, so prospective buyers should review the lease length, service charges and running costs. Council Tax is Band D and crime levels are average for the area. The building fronts a busy high street, which brings convenience but some daytime activity and noise.
Overall this apartment is a move-in-ready option with contemporary fittings and strong transport links — a sensible choice for buyers seeking low-immediate-maintenance living or investors targeting assured rental demand in an affluent, well-connected part of SW19.
2 bedroom apartment for sale in Cavendish Road, London, SW19 — £440,000 • 2 bed • 2 bath • 751 ft²
1 bedroom flat for sale in Cavendish Road, Prime Central Colliers Wood, SW19 — £375,000 • 1 bed • 1 bath • 603 ft²
2 bedroom apartment for sale in Chapter Way, London, SW19 — £450,000 • 2 bed • 2 bath • 821 ft²
2 bedroom flat for sale in Chapter Way, Colliers Wood, SW19 — £450,000 • 2 bed • 2 bath • 823 ft²
1 bedroom flat for sale in Cavendish Road, London, SW19 — £100,000 • 1 bed • 1 bath • 533 ft²
2 bedroom flat for sale in Christchurch Road, Colliers Wood, SW19 — £525,000 • 2 bed • 2 bath • 871 ft²


















































