Spacious four-bedroom detached house with garden and extension potential in Hall Green.
Corner plot with scope to extend (STPP)
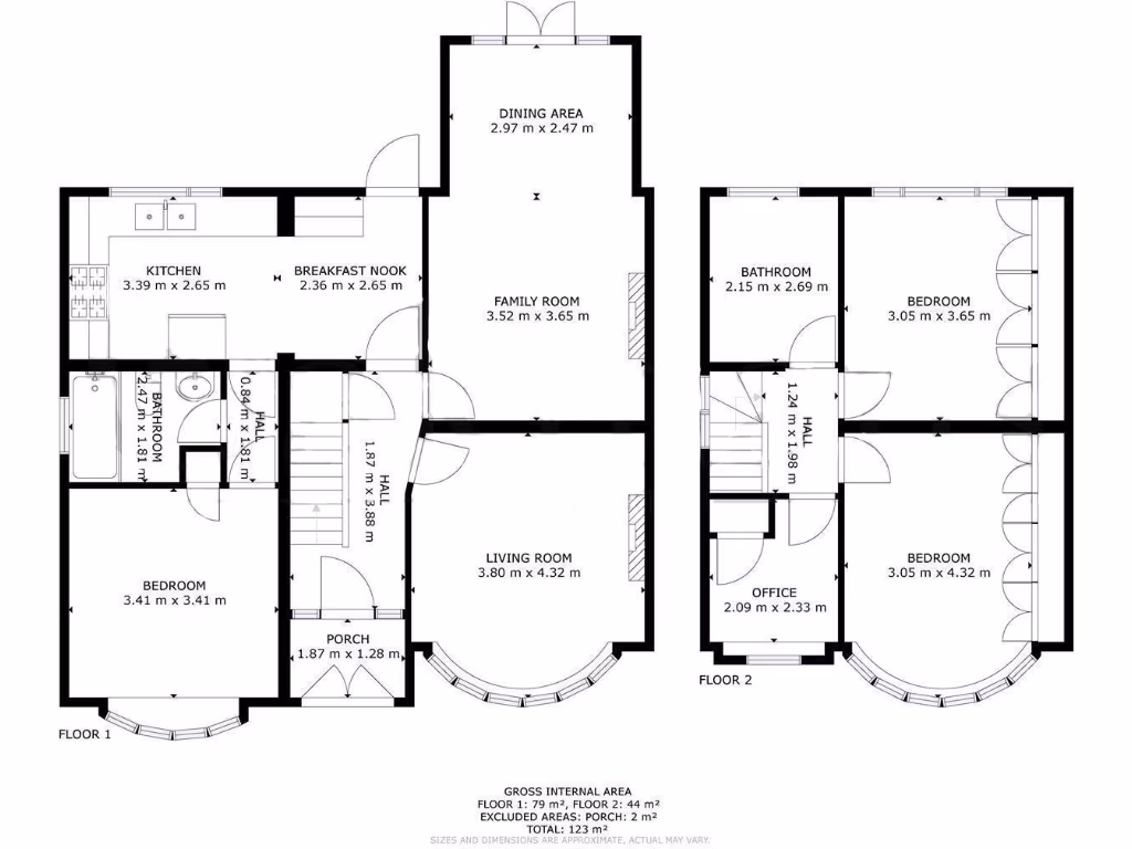
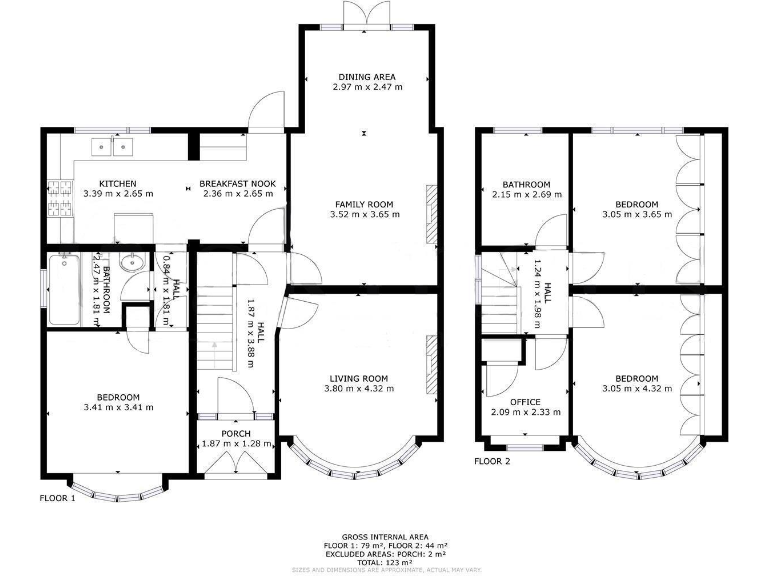
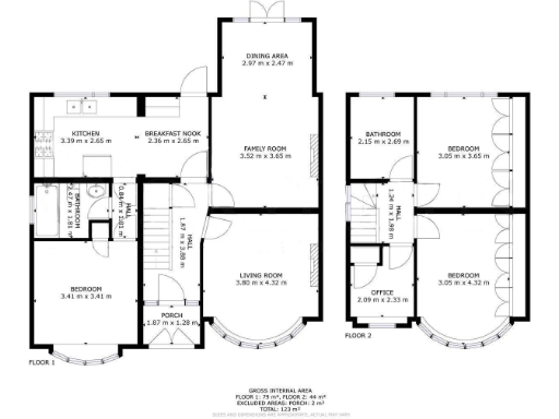
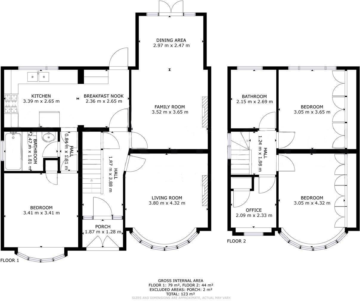
This spacious four-bedroom detached home on Lulworth Road is a well-presented family property in Hall Green, set on a corner plot with potential to extend (STPP). The layout includes two generous reception rooms, a fitted kitchen, a ground-floor bedroom with modern en-suite and three first-floor bedrooms—offering flexible living for families who need space and convenience.
The house benefits from a paved driveway, off-street parking and a neatly maintained rear garden with lawn and patio. Practical features include mains gas central heating, UPVC double glazing and a detached garage/outbuilding. Local amenities are strong: highly regarded primary and secondary schools nearby, shops, restaurants and good public transport links along Stratford Road.
Buyers should note this 1930s solid-brick home has no confirmed wall insulation and will suit those comfortable with period maintenance and possible updating. The area is classified as very deprived with higher local crime levels; prospective purchasers should consider this when assessing suitability and security improvements.
Overall, the property will appeal to families seeking generous living space in a convenient Hall Green location, and to buyers wanting a home with extension potential. It is sold freehold with Council Tax Band D.
4 bedroom detached house for sale in Lulworth Road, Birmingham , B28 — £450,000 • 4 bed • 2 bath • 1109 ft²
4 bedroom detached house for sale in Southam Road, Hall Green, B28 — £460,000 • 4 bed • 2 bath • 1281 ft²
3 bedroom semi-detached house for sale in Edenbridge Road, Birmingham, B28 — £340,000 • 3 bed • 1 bath • 686 ft²
4 bedroom end of terrace house for sale in Mayfield Road , Birmingham, B11 — £325,000 • 4 bed • 1 bath • 1363 ft²
4 bedroom detached house for sale in Rowney Croft, Birmingham, West Midlands, B28 — £450,000 • 4 bed • 2 bath • 1384 ft²
3 bedroom semi-detached house for sale in Mapleton Road, Hall Green, Birmingham, B28 — £290,000 • 3 bed • 2 bath • 714 ft²














































































