Generous plot and versatile living near Datchet village and Thames walks.
4 double bedrooms; principal bedroom with ensuite shower
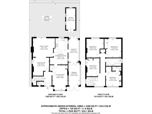
Large plot — approximately 185ft rear garden
Detached garage, outbuilding office and extensive driveway parking
House presented in very good condition throughout
Total floor area c.2,520 sq ft; flexible multi‑room layout
Double glazing fitted post‑2002; mains gas boiler and underfloor heating present
Cavity walls reported with no insulation (assumed) — potential upgrade needed
Freehold; very low flood risk; short walk to Datchet village and station
Set on a deep, c.185ft plot, this substantial 4-double-bedroom detached home offers flexible family living across two floors. Bright living rooms and a principal bedroom with ensuite provide comfortable everyday space, while a separate outbuilding currently used as a home office adds useful work-from-home or hobby space. The property includes a large utility and storage area, a detached garage and a wide gravel driveway with parking for several vehicles.
Built in the mid-20th century and presented in very good condition, the house benefits from double glazing installed since 2002 and a mains-gas heating system with both radiators and areas of underfloor heating. Its generous footprint (c.2,520 sq ft) and large rear garden create clear scope for extension or garden-focused improvements, subject to planning.
Practical points to note: the external cavity walls are recorded as having no formal insulation (assumed), so buyers planning energy upgrades should allow for insulation work. The property is freehold, in a low flood-risk area and within easy walking distance of Datchet village, station and riverside walks to Windsor — ideal for families wanting space with straightforward commuter links.
4 bedroom link detached house for sale in Datchet, Berkshire, SL3 — £675,000 • 4 bed • 1 bath • 1485 ft²
4 bedroom detached house for sale in London Road, Datchet, SL3 — £995,000 • 4 bed • 2 bath • 1916 ft²
4 bedroom detached house for sale in Beaulieu Close, Datchet , SL3 — £765,000 • 4 bed • 2 bath • 2000 ft²
4 bedroom detached house for sale in Slough Road, Datchet, SL3 — £975,000 • 4 bed • 3 bath • 1759 ft²
4 bedroom detached house for sale in Datchet, SL3 — £1,225,000 • 4 bed • 2 bath • 1759 ft²
4 bedroom detached house for sale in Buccleuch Road, Datchet, Berkshire, SL3 9BP, SL3 — £1,400,000 • 4 bed • 2 bath • 2228 ft²


























































































































































































































