Bright south-facing garden and versatile three-bedroom layout for growing families.
Red sandstone Victorian terrace with high ceilings and period features
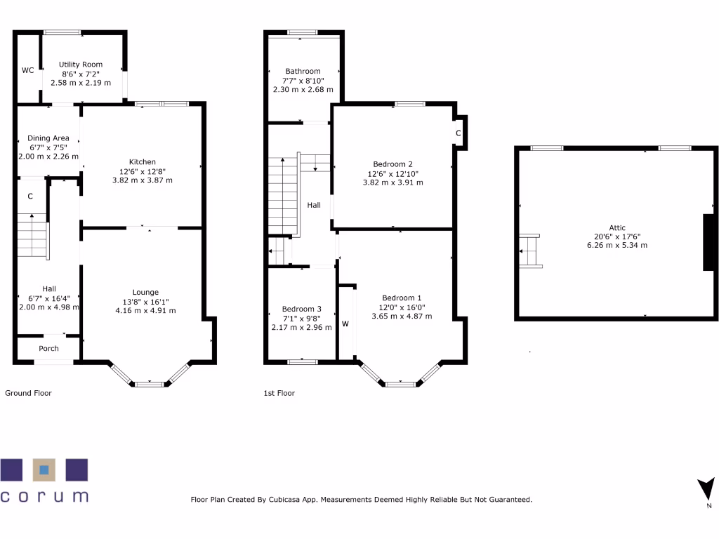
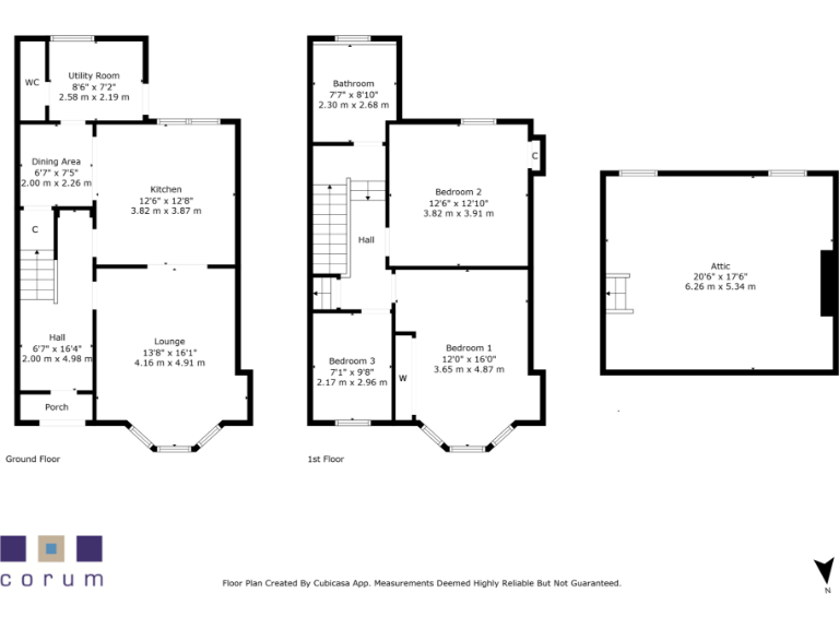
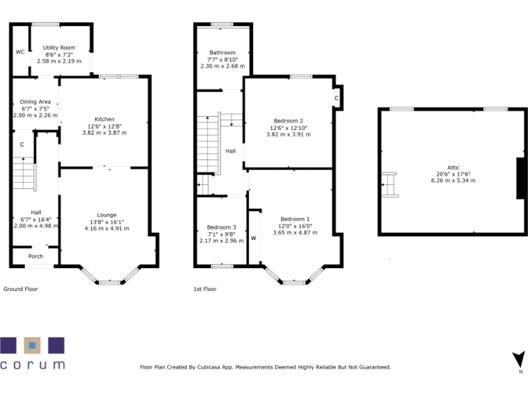
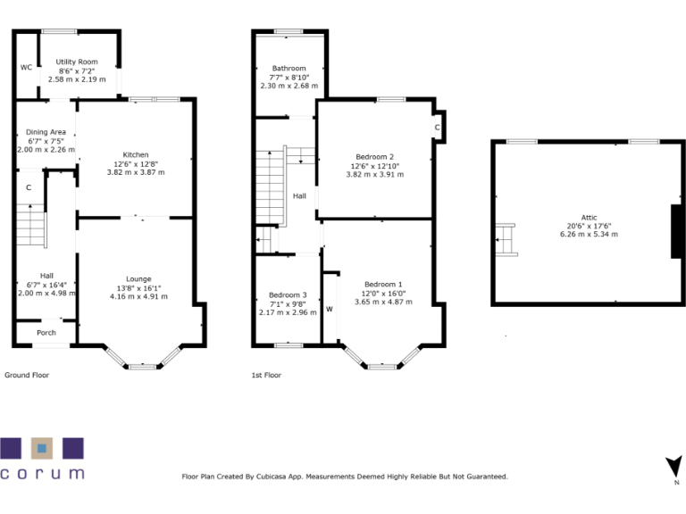
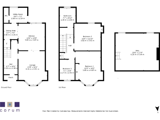
This attractive red sandstone terraced house blends original Victorian character with contemporary living across two well-proportioned floors. The open-plan lounge into a modern kitchen creates a generous social ground floor, while three good bedrooms upstairs suit family life. Practical additions include a designated utility room, ground-floor WC and integral storage — useful for everyday living.
Outdoor space is a genuine asset: a south-facing rear garden catches the sun and includes a patio, lawn, shed and rear lane access. Off-street driveway parking to the front adds convenience in this popular Southside location. The property has gas central heating, double glazing and an Energy Efficiency Rating of C.
There are clear renovation opportunities: a floored attic exists but would require appropriate planning consent to convert into further accommodation. Council tax is above average. While the house has been modernised, buyers should note average mobile signal and an area deprivation indicator in the supplied data despite wider local classifications highlighting affluence. A home report is available for detailed condition and valuation information.
3 bedroom terraced house for sale in Fernleigh Road, Newlands, G43 — £390,000 • 3 bed • 2 bath • 1215 ft²
3 bedroom terraced house for sale in 56 Auldhouse Road, Newlands, G43 1UR, G43 — £375,000 • 3 bed • 1 bath • 1173 ft²
3 bedroom terraced house for sale in 7 Tavistock Drive, Newlands, G43 2SJ, G43 — £495,000 • 3 bed • 1 bath • 2034 ft²
3 bedroom terraced house for sale in Nether Auldhouse Road, Newlands, Glasgow, G43 — £285,000 • 3 bed • 1 bath • 1018 ft²
3 bedroom semi-detached house for sale in Fernleigh Road, Newlands, Glasgow, G43 — £430,000 • 3 bed • 1 bath • 1502 ft²
4 bedroom terraced house for sale in 446 Kilmarnock Road, Newlands, G43 2RL, G43 — £395,000 • 4 bed • 2 bath • 1862 ft²














































































































































