Spacious family home with garden, outbuilding and strong transport links..
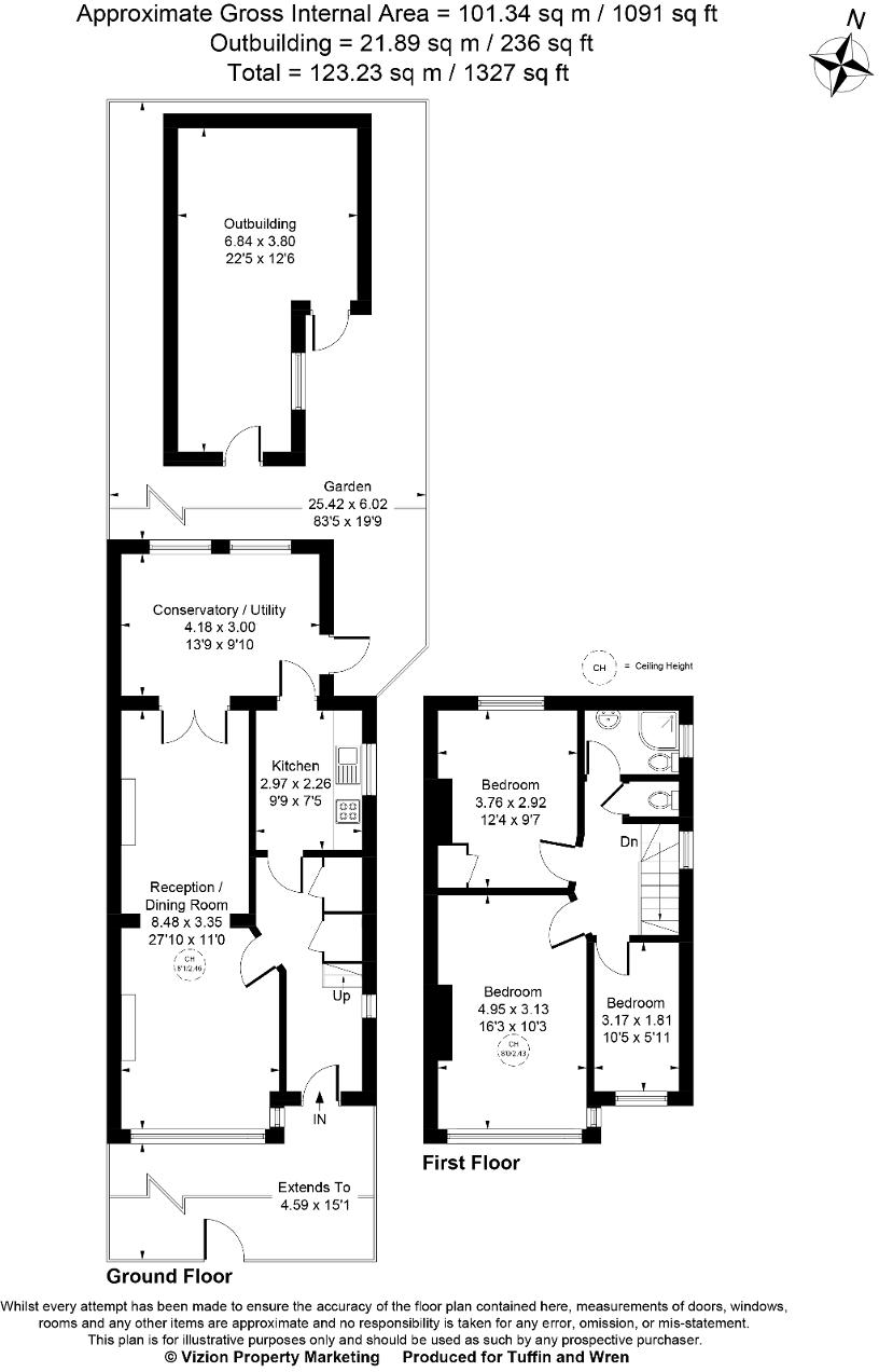
Extended semi-detached family home with through living/dining rooms
Modern fitted kitchen; large summer/utility room to garden
Three bedrooms with first-floor shower room and separate WC
Generous north-westerly rear garden; large outbuilding/summer house
Chain free freehold; vacant and ready to move into
Potential for off-street parking and further extension (subject to planning)
Only one full shower room for three bedrooms
Council tax above average
This extended three-bedroom semi-detached house on Beechmount Avenue offers practical family living in a popular Hanwell location. The ground floor flows through generous open-plan living and dining areas into a modern fitted kitchen and a large summer/utility room that opens onto a sizeable north-westerly garden. A large outbuilding at the rear provides potential as a summer house, studio or storage.
Upstairs are three bedrooms served by a first-floor shower room plus a separate WC — convenient for busy households but only a single full shower room to share. The property is chain free, freehold and vacant, with scope to add off-street parking and extend further (subject to planning) for buyers seeking more space or value-add potential.
Location is a clear strength: minutes from local shops, buses and both Hanwell and Castlebar Park stations, with fast Elizabeth line connections nearby. Good state and independent schools are within easy reach, and local parks and leisure amenities suit family life. Practical details include above-average council tax and an overall internal size of about 1,091 sq ft — comfortable but not large for a growing family.
This home will suit families seeking well-presented, ready-to-live-in accommodation with obvious potential to personalise or extend. Buyers should note the single shower room, the north-westerly garden aspect (less morning sun), and that off-street parking is potential rather than guaranteed.
3 bedroom semi-detached house for sale in Beechmount Avenue, London, W7 — £599,999 • 3 bed • 1 bath • 1091 ft²
3 bedroom semi-detached house for sale in Beresford Avenue, Hanwell, London, W7 3AL, W7 — £749,950 • 3 bed • 2 bath • 1066 ft²
3 bedroom semi-detached house for sale in Greenford Avenue, Hanwell, London, W7 3QT, W7 — £750,000 • 3 bed • 1 bath • 1187 ft²
3 bedroom semi-detached house for sale in Beresford Avenue, London, W7 — £650,000 • 3 bed • 1 bath • 888 ft²
4 bedroom house for sale in Greenford Avenue, Hanwell, W7 — £860,000 • 4 bed • 2 bath • 1440 ft²
3 bedroom end of terrace house for sale in Uxbridge Road, Southall, UB1 — £575,000 • 3 bed • 1 bath • 862 ft²


























































