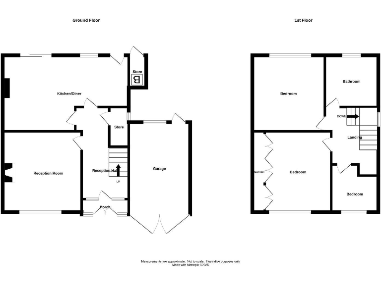
Private rear garden, log burner and excellent local schools nearby.
Three bedrooms with fitted wardrobes in beds 1 and 2
Set in a popular, established pocket of Halesowen, this well-presented three-bedroom semi offers comfortable family living across an average-sized footprint. The L-shaped living/dining kitchen opens to a private, not-overlooked rear garden and a separate lounge features a log burner—ideal for relaxed evenings. A side garage and external utility add practical storage and laundry space.
Bedrooms one and two have fitted wardrobes and the tiled bathroom includes a separate shower cubicle, making morning routines straightforward for families. The house benefits from gas central heating, double glazing (installed before 2002) and an EPC C rating—efficient but not brand new. All main services are connected and broadband speeds are reported as fast.
Location is a clear strength: very low local crime, excellent nearby primary and secondary schools (including a top 10% rated primary), convenient public transport links and local healthcare amenities. The property is freehold with Council Tax band C and sits in a well-regarded, affluent area.
For buyers seeking a comfortable, move-in ready family home with scope to personalise, this house balances ready-to-enjoy features with practical maintenance considerations typical of a mid-20th-century build.
3 bedroom semi-detached house for sale in HALESOWEN, Cherry Orchard Avenue, B63 — £290,000 • 3 bed • 1 bath • 958 ft²
3 bedroom semi-detached house for sale in Stuart Road, Halesowen, B62 0EB, B62 — £350,000 • 3 bed • 1 bath • 1136 ft²
3 bedroom semi-detached house for sale in Moorfield Drive, Halesowen, B63 3TQ, B63 — £300,000 • 3 bed • 1 bath • 1168 ft²
3 bedroom semi-detached house for sale in HALESOWEN, Brier Mill Road, B63 — £270,000 • 3 bed • 1 bath • 1031 ft²
3 bedroom semi-detached house for sale in Carters Lane, Halesowen, B62 0EP, B62 — £385,000 • 3 bed • 1 bath • 1340 ft²
3 bedroom semi-detached house for sale in Fatherless Barn Crescent, Halesowen, B63 — £265,000 • 3 bed • 1 bath • 926 ft²










































