**Standout Features:**
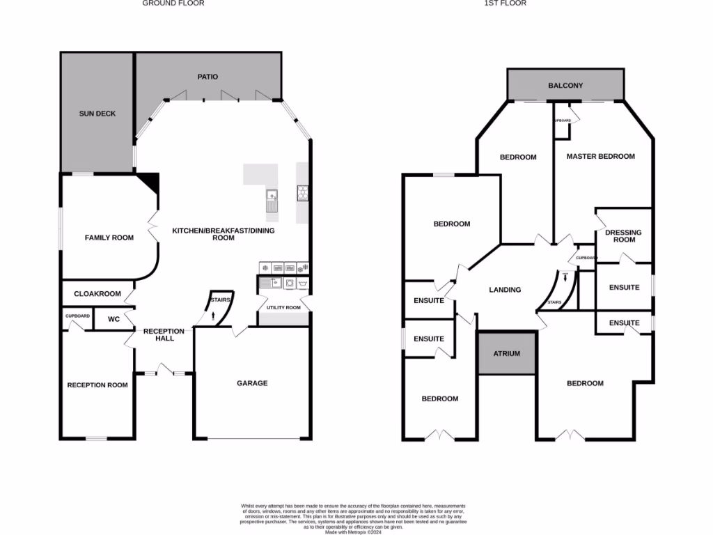
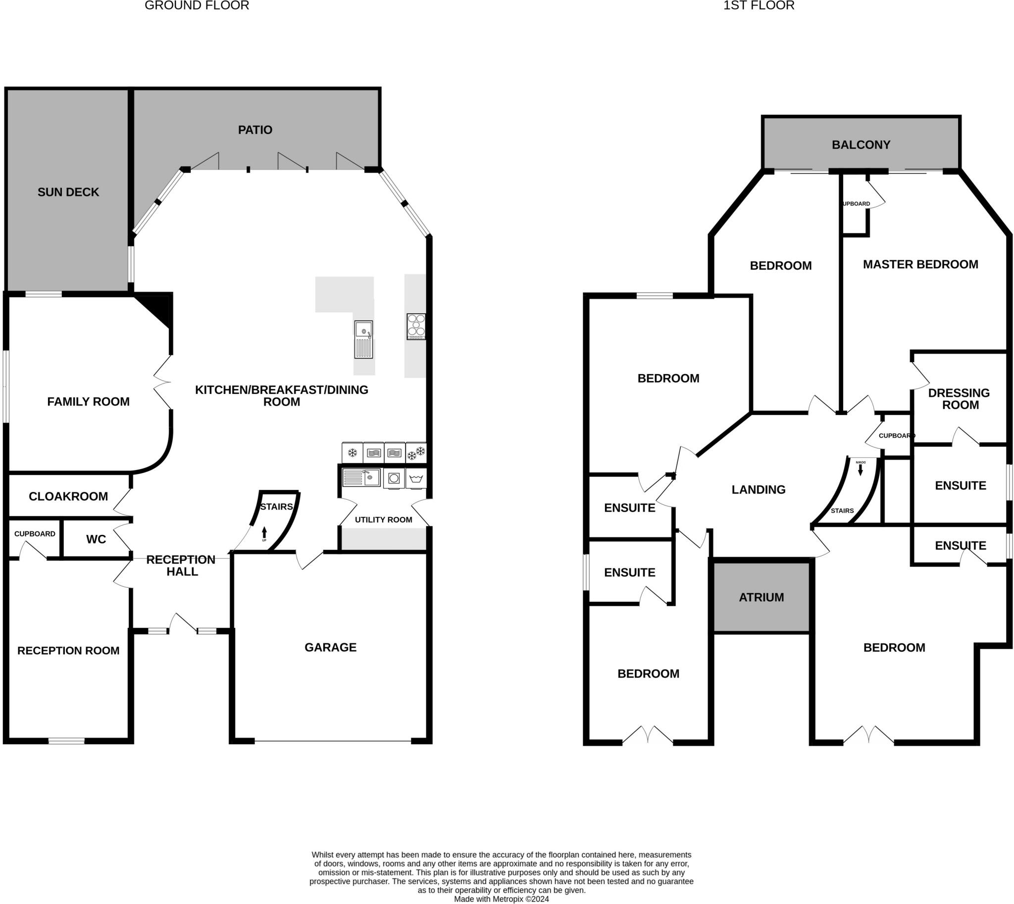
- Contemporary detached five-bedroom residence
- Open-plan kitchen diner ideal for entertaining
- Four luxurious bathrooms, each en-suite
- Expansive south-facing rear garden with large patio
- Panoramic views from a south-facing balcony off the master suite
- Located in the sought-after Darras Hall Estate
**Concerns:**
- Higher council tax band (G)
- Average mobile signal and slow broadband speeds
Discover the charm of this modern five-bedroom family home nestled within the prestigious Darras Hall Estate, known for its tranquil surroundings and affluent community. This impressive detached property offers a remarkable open-plan kitchen and living area that invites natural light, perfect for family gatherings or entertaining guests. The beautifully designed kitchen is equipped with high-end finishes and connects seamlessly with the regions of the house, ensuring a spacious and airy feel.
Upstairs, the master suite is a true retreat with its double-height ceiling, private balcony, dressing room, and luxurious en-suite. Each additional bedroom also features en-suite facilities, providing comfort and privacy for family members or guests. Outside, the south-facing rear garden offers a serene space for relaxation or outdoor activities, complete with a sizable patio for alfresco dining.
Positioned in an area complemented by excellent schooling options, this home is perfect for families seeking top-rated education, with Darras Hall Primary School rated outstanding. While enjoying upscale comforts, be aware of the higher maintenance costs associated with council tax and the need for improvement in mobile and broadband access.
With its modern aesthetics and generous space, this property presents a unique opportunity for family living in a coveted location. Don’t miss the chance; properties like this don't stay on the market for long!
4 bedroom detached house for sale in Darras Road, Darras Hall, Ponteland, Newcastle Upon Tyne, NE20 — £950,000 • 4 bed • 3 bath • 2358 ft²
5 bedroom detached house for sale in Edge Hill, Darras Hall, Ponteland, Newcastle upon Tyne, NE20 — £1,600,000 • 5 bed • 5 bath • 5268 ft²
5 bedroom detached house for sale in Whinfell Road, Darras Hall, Ponteland, NE20 — £1,175,000 • 5 bed • 4 bath • 5000 ft²
5 bedroom detached house for sale in Errington Road, Darras Hall, NE20 — £875,000 • 5 bed • 3 bath • 2577 ft²
4 bedroom detached house for sale in Kingswood Drive, Darras Hall, Ponteland, Newcastle upon Tyne, NE20 — £999,995 • 4 bed • 5 bath • 3876 ft²
4 bedroom detached house for sale in Pinegarth, Darras Hall, NE20 — £875,000 • 4 bed • 2 bath • 1602 ft²


































































































