BB4 5EE - 2 bedroom terraced house for sale in Heys Avenue, Haslingde…

View on Property Piper

2 bedroom terraced house for sale in Heys Avenue, Haslingden, Rossendale, BB4

Summary - 53 HEYS AVENUE HASLINGDEN ROSSENDALE BB4 5EE

2 bed 1 bath Terraced

**Standout Features:**
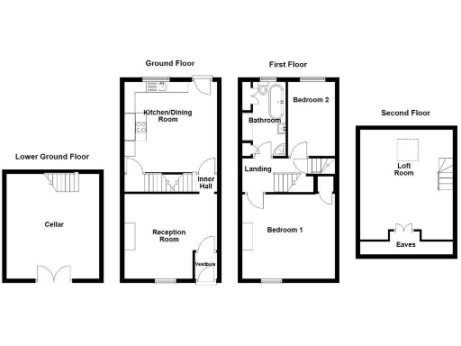
- Two bedrooms plus a versatile loft room
- Contemporary fitted kitchen and modern four-piece bathroom
- Spacious reception with a charming period fireplace
- Large front garden with stunning views over Musbury Tor
- Extensive cellar for additional storage
- Chain-free and available for immediate occupancy
- Efficient solar panels for lower energy costs
- On-street parking available
- Convenient access to local schools and amenities

**Summary:**
Discover an exceptional opportunity to own a beautifully presented, garden-fronted mid-terraced property in the desirable area of Haslingden. This spacious two-bedroom home features a contemporary fitted kitchen, a generous reception room with a cast iron fireplace, and a large loft room perfect for an office or extra sleeping space. Step outside to enjoy breathtaking views over Musbury Tor from your beautifully landscaped front garden, complete with mature shrubs and comfortable outdoor amenities.

The property is in excellent condition with modern fixtures, including a stylish four-piece bathroom and efficient solar panels, providing sustainable living. An expansive cellar adds practical storage solutions, making this home a perfect fit for small families or young professionals. Furthermore, it is surrounded by reputable schools, local shops, and convenient transport links, ensuring a vibrant community lifestyle. Don't miss this unique opportunity—properties like this are rarely available for long!

Property Details

Brochure Descriptions

Image Descriptions

Rooms

Textual Property Features

Detected Visual Features

EPC Details

Nearby Schools

Nearest Bars And Restaurants

,,,,}

Nearest General Shops

,,}

Nearest Grocery shops

,,}

Nearest Supermarkets

,,}

Nearest Religious buildings

,,}

Nearest Medical buildings

,,,}

Nearest Leisure Facilities

,,,,}

Nearest Tourist attractions

,,}

Nearest Train stations

,,,,}

Nearest Bus stations and stops

,,,,}

Nearest Hotels

,,}

Tags

Local Market Stats

AirBnB Data

Similar Properties

Meta

High Res Images

Compatible Images

Low res Images

Thumbnails

Raw Images

High Res Floorplan Images

Compatible Floorplan Images

Low res Floorplan Images

FloorplanImages Thumbnail

Raw Floorplan Images