Spacious single-storey living with garden and conversion potential.
End-of-close position offering peace and privacy
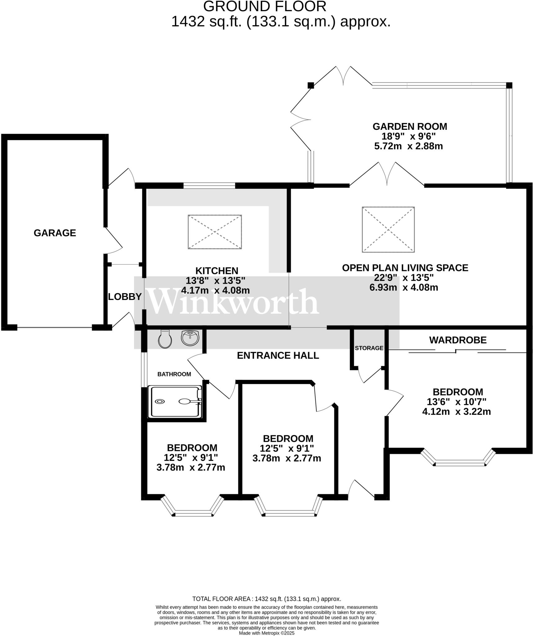
Open-plan kitchen/living with skylights — bright sociable living
Garden room and sunny, landscaped wrap-around garden
Large driveway for multiple cars plus single garage (attached)
Garage offers conversion potential to extra living space (STP)
Single family bathroom only — one bathroom for three bedrooms
Cavity walls built 1967–75; assumed no wall insulation
Slow broadband and council tax above average (Band E)
Tucked at the end of a peaceful leafy close in Cringleford, this detached three-bedroom bungalow offers single-storey living with a contemporary feel. The open-plan kitchen, dining and living space, boosted by skylights, creates a bright, sociable heart to the home, while a separate garden room provides a calm spot to enjoy the sunny rear aspect.
Practical features include a large driveway for multiple vehicles, an attached single garage accessed via a rear lobby (potential to convert, subject to planning), and a generous wrap-around landscaped garden with patio and mature borders for privacy. All three bedrooms are well-proportioned and benefit from bay windows that flood the rooms with natural light.
Buyers should note a few material points: there is a single family bathroom serving three bedrooms, the cavity walls are assumed to be uninsulated (built 1967–75), broadband speeds are reported as slow and council tax is above average. Despite being presented as modern and move-in ready, these are items to consider for longer-term running costs or future improvement works.
Offered freehold and chain-free, this bungalow will suit those seeking low-step, comfortable living in an affluent village setting with easy city access. The garage conversion potential and sizeable plot also give flexibility for modest extensions or reconfiguration, subject to the usual consents.
3 bedroom bungalow for sale in Oakfields Road, Cringleford, Norwich, Norfolk, NR4 — £475,000 • 3 bed • 1 bath • 1170 ft²
5 bedroom detached bungalow for sale in Keswick Road, Cringleford, NR4 — £650,000 • 5 bed • 3 bath • 1674 ft²
3 bedroom bungalow for sale in Brettingham Avenue, Cringleford, NR4 — £550,000 • 3 bed • 1 bath • 1176 ft²
3 bedroom detached bungalow for sale in Oakfields Close, Cringleford, NR4 — £375,000 • 3 bed • 2 bath • 870 ft²
3 bedroom detached house for sale in Taylor Avenue, Cringleford, Norwich, Norfolk, NR4 — £500,000 • 3 bed • 2 bath • 1838 ft²
2 bedroom detached bungalow for sale in Oakfields Close, Cringleford, NR4 6XH, NR4 — £350,000 • 2 bed • 1 bath • 1133 ft²


































































































