**Standout Features:**
- Three spacious bedrooms
- No onward chain
- Private rear garden, ideal for outdoor renovation
- Functional layout with front-facing living room, dining room, and family bathroom
- Excellent transport links and local amenities
- Affordable council tax
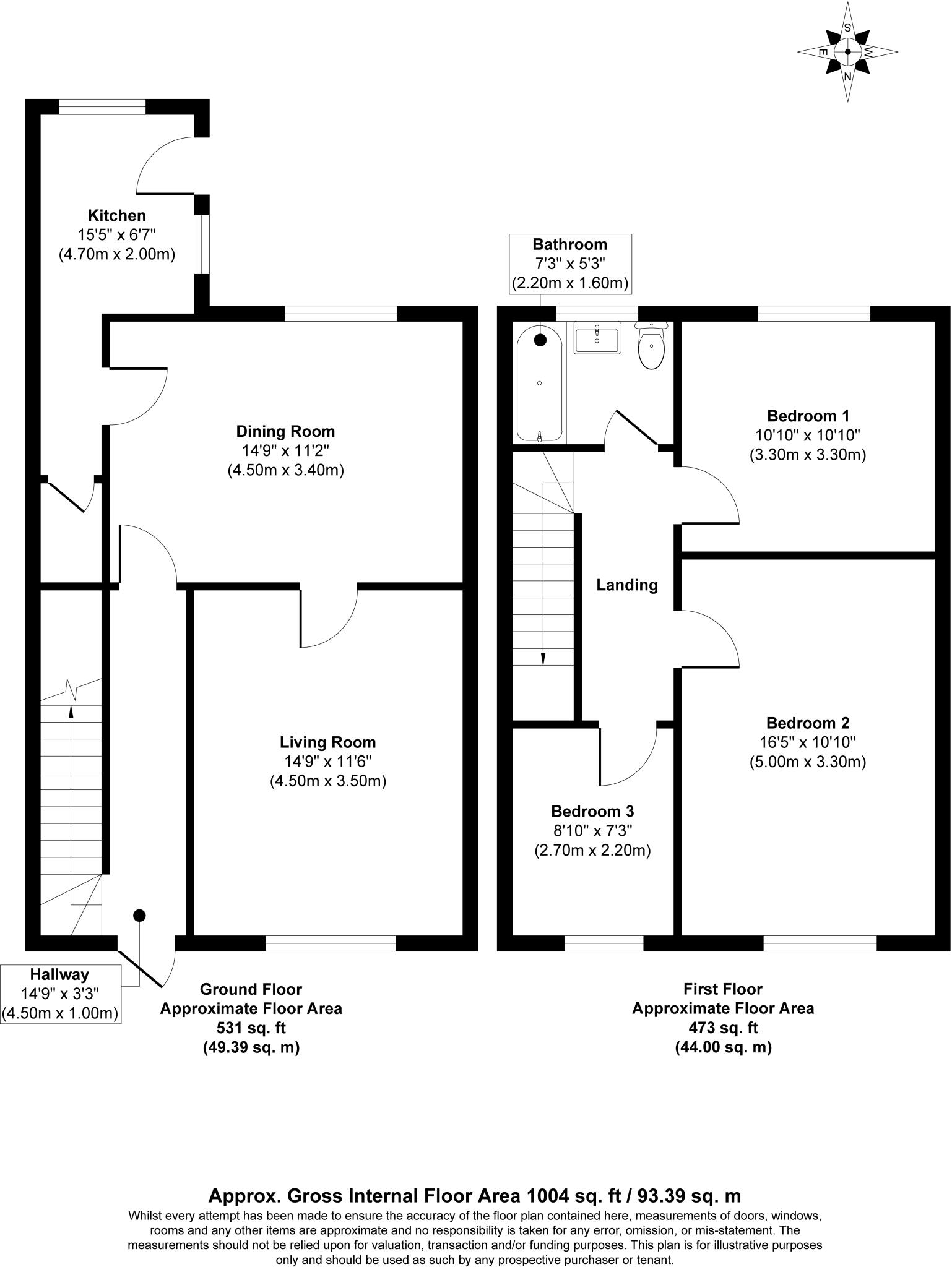
This three-bedroom mid-terrace house on Savery Street offers a fantastic opportunity for first-time buyers or investors. With 1004 sq. ft. of potential, this property is ripe for modernization, allowing you to create a home tailored to your taste. The welcoming hallway leads into a bright living room featuring a classic Victorian bay window and original details, flowing effortlessly into an ample dining room, perfect for family gatherings. Upstairs, you will find three well-sized bedrooms along with a family bathroom waiting for your personal touch.
Step outside to discover a low-maintenance rear garden that serves as a blank canvas, ready for your creativity. Located in the east Hull area, you have convenient access to local shops, schools, and parks, with good Ofsted ratings across primary and secondary schools nearby. The property benefits from excellent transport links, making it easy to commute to Hull city centre and beyond. However, note that the home requires renovation, presenting an ideal project for those looking to invest in a property with great potential.
Offered with no onward chain, this house represents an exceptional opportunity to make your mark in a vibrant community. Early viewing is highly recommended to fully appreciate the possibilities this character-filled home has to offer.
3 bedroom terraced house for sale in Savery Street, Hull, HU9 — £160,000 • 3 bed • 1 bath • 895 ft²
3 bedroom terraced house for sale in Savery Street, Hull, HU9 — £165,000 • 3 bed • 1 bath • 829 ft²
3 bedroom terraced house for sale in Savery Street, Hull, HU9 — £169,995 • 3 bed • 1 bath • 899 ft²
3 bedroom terraced house for sale in Barham Road, Hull, East Yorkshire, HU9 — £90,000 • 3 bed • 1 bath • 1106 ft²
3 bedroom terraced house for sale in Annanadale Road, Hull, HU9 — £90,000 • 3 bed • 1 bath • 786 ft²
3 bedroom terraced house for sale in Carrington Street, Hull, HU3 — £75,000 • 3 bed • 1 bath • 980 ft²


































