Renovated three-bed cottage-style home, near village and rail, low-maintenance garden.
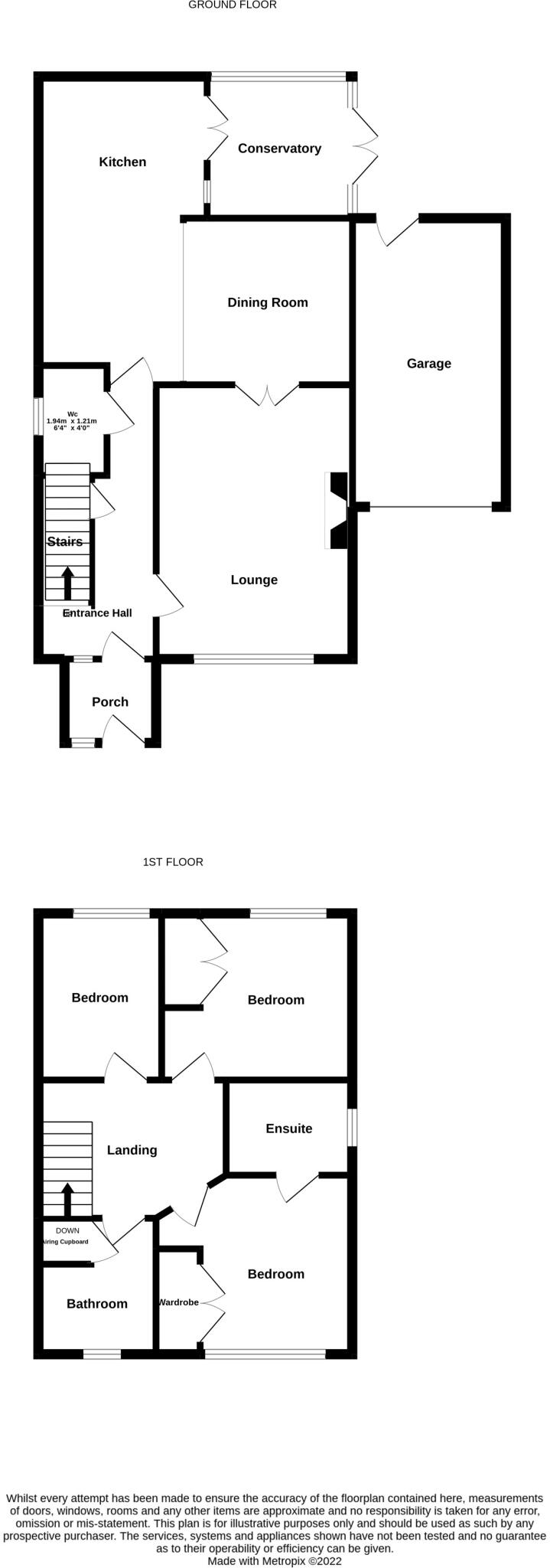
Three bedrooms with principal en-suite and fitted wardrobes
High-quality dining kitchen with built-in appliances and conservatory
Private block-paved driveway plus adjoining garage with boiler
Landscaped, low-maintenance rear garden with flagged sitting areas
Newly renovated throughout — move-in ready finishes
High flood risk in area — seek specialist advice and insurance
Small plot size; outdoor space compact and easily managed
Average mobile signal and broadband speeds locally
This stone-built link-detached home combines traditional charm with high-quality recent renovation. The house offers three bedrooms, an en-suite principal, conservatory and a well-equipped dining kitchen finished to a high standard — ready for immediate move-in. A private block-paved driveway and adjoining garage provide convenient parking and storage.
The enclosed rear garden is low-maintenance and landscaped with flagged sitting areas and artificial lawn, suited to those who prefer easy upkeep. The property sits on a small level plot a short walk from Hellifield village centre and its train station, with open countryside and the Yorkshire Dales nearby — practical for commuters and families who value rural access.
Practical considerations: the property is newly renovated and well-presented, but it is in a location with a high flood risk — purchasers should seek specialist flood advice and appropriate insurance. Broadband and mobile signal are average in the area, and the plot size is small, so outdoor space is compact rather than expansive.
Other factual points: mains gas central heating, UPVC double glazing, security alarm, and freehold tenure are all in place. Council Tax is moderate (Band D). For buyers seeking a low-maintenance, characterful family home within easy reach of local amenities and transport links, this property offers strong appeal, provided flood risk is considered.
 4 bedroom detached house for sale in 51 Hammerton Drive, Hellifield, North Yorkshire, BD23 4LZ, BD23 — £473,000 • 4 bed • 3 bath • 1388 ft²
 4 bedroom detached house for sale in 51 Hammerton Drive, Hellifield, North Yorkshire, BD23 4LZ, BD23 — £473,000 • 4 bed • 3 bath • 1388 ft² 4 bedroom semi-detached house for sale in 2 Brook Street, Hellifield, BD23 4EX, BD23 — £335,000 • 4 bed • 2 bath • 1202 ft²
 4 bedroom semi-detached house for sale in 2 Brook Street, Hellifield, BD23 4EX, BD23 — £335,000 • 4 bed • 2 bath • 1202 ft² 4 bedroom detached house for sale in Cornerstones, 2 Ashton Court, Hellifield, Skipton, BD23 4NZ, BD23 — £409,950 • 4 bed • 2 bath • 2606 ft²
 4 bedroom detached house for sale in Cornerstones, 2 Ashton Court, Hellifield, Skipton, BD23 4NZ, BD23 — £409,950 • 4 bed • 2 bath • 2606 ft² 3 bedroom link detached house for sale in Hammerton Drive, Hellifield, Skipton, North Yorkshire, BD23 — £325,000 • 3 bed • 2 bath • 1203 ft²
 3 bedroom link detached house for sale in Hammerton Drive, Hellifield, Skipton, North Yorkshire, BD23 — £325,000 • 3 bed • 2 bath • 1203 ft² 3 bedroom detached house for sale in East View, Hellifield, BD23 — £299,950 • 3 bed • 1 bath • 808 ft²
 3 bedroom detached house for sale in East View, Hellifield, BD23 — £299,950 • 3 bed • 1 bath • 808 ft² 3 bedroom end of terrace house for sale in Hawthorn Close, Hellifield, Skipton, North Yorkshire, BD23 — £255,000 • 3 bed • 2 bath • 966 ft²
 3 bedroom end of terrace house for sale in Hawthorn Close, Hellifield, Skipton, North Yorkshire, BD23 — £255,000 • 3 bed • 2 bath • 966 ft²


























































































