Chain-free, potential five-bedroom property with double garage and separate downstairs annexe.
Chain-free large 1930s semi-detached house on three floors
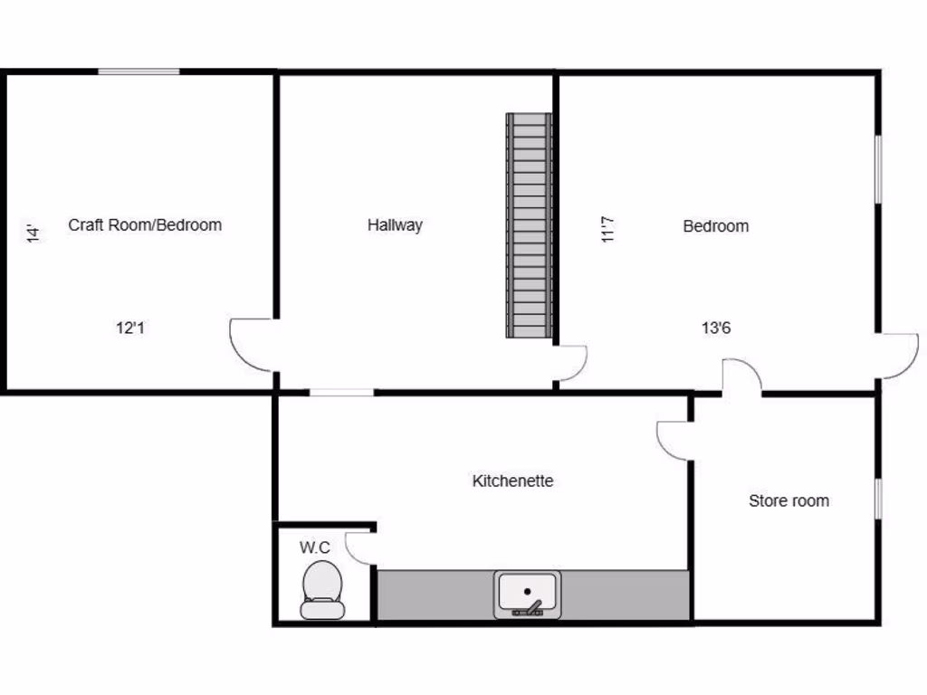
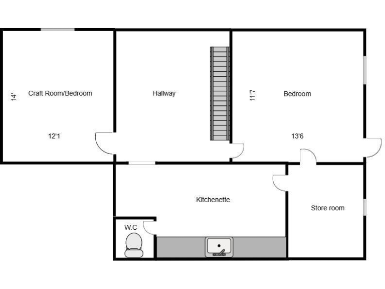
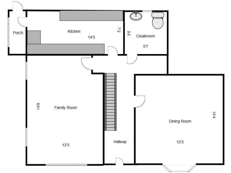
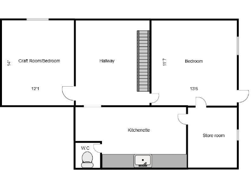
This substantial 1930s semi-detached house offers flexible living across three floors and a large plot in the heart of Northenden village. The ground floor includes two reception rooms plus separate downstairs living quarters with its own kitchen and bathroom — already set up as private accommodation and offering clear scope to create a five-bedroom home. Parking is strong here, with a wide driveway and double garage for up to four vehicles.
The property retains period character such as feature fireplaces and bay windows, while benefitting from double glazing and mains gas central heating. Its location is a major draw: about 50 yards from Didsbury amenities, close to Marie Louise Gardens, two local golf clubs and with straightforward access to the M56/M60 for commuter routes and city-centre connections.
Buyers should note some practical points: the house dates from the 1930s and cavity walls are assumed uninsulated, so energy upgrades and some modernisation may be needed to improve efficiency. The area shows higher deprivation statistics locally, though crime rates are very low and broadband and mobile signals are strong. Council tax is moderate. This is a good-fit purchase for families seeking space and scope to add value, or buyers wanting separate annex accommodation for relatives or rental income.
3 bedroom semi-detached house for sale in Greenpark Road, Northenden, Manchester, Greater Manchester, M22 — £400,000 • 3 bed • 2 bath • 1333 ft²
3 bedroom semi-detached house for sale in Longley Lane, Manchester, Greater Manchester, M22 — £500,000 • 3 bed • 1 bath • 1704 ft²
4 bedroom detached house for sale in Shawdene Road, Manchester, M22 — £575,000 • 4 bed • 2 bath • 1518 ft²
5 bedroom house for sale in Darley Avenue, MANCHESTER, Lancashire, M21 — £530,000 • 5 bed • 2 bath • 1409 ft²
3 bedroom semi-detached house for sale in Longley Lane, Northenden, Manchester, Greater Manchester, M22 — £400,000 • 3 bed • 1 bath • 1371 ft²
3 bedroom detached house for sale in Chretien Road, Northenden, M22 — £425,000 • 3 bed • 1 bath • 1253 ft²


































































































































































