**Standout Features:**
- Projected GROSS Rent: £187,105.44 for the 25/26 academic year
- Exceptional 11.69% GROSS Yield
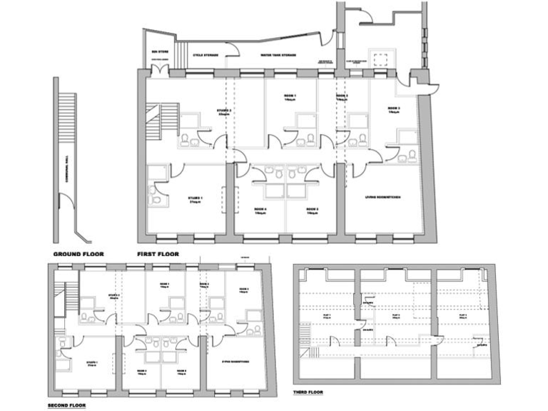
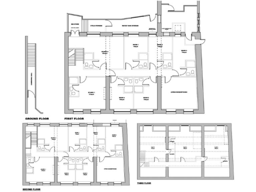
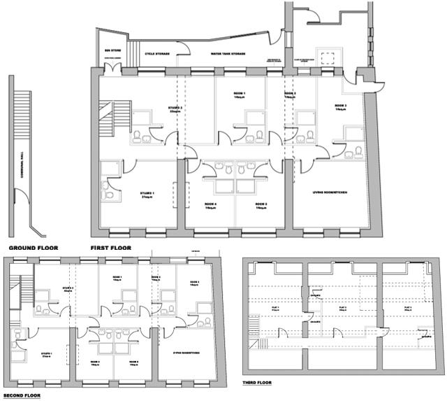
- Mixed-use building: 8 self-contained studios, 10 en-suite cluster bedrooms, 3 commercial premises
- Consistent occupancy since 2017 redevelopment
- Modern interior finishes with high-quality furnishings included
- Central High Street location with abundant amenities
**Summary Description:**
Discover a lucrative investment opportunity at 259 - 263 High Street, Bangor, boasting a projected rental income of £187,105.44 for the 25/26 academic year. With a solid 11.69% gross yield, this mixed-use development features 18 bedrooms across 8 self-contained studios and 10 en-suite cluster bedrooms, complemented by three commercial retail spaces. The property, redeveloped in 2017, showcases contemporary design with modern, contract-grade furnishings and spacious open-plan living areas, ensuring tenant comfort and appeal.
Conveniently located in a vibrant cosmopolitan neighbourhood filled with amenities, residents enjoy easy access to shops, cafes, and public transport. The building offers consistent occupancy rates and a strong rental history, presenting an attractive prospect for investors seeking stability and growth. Note that there is a potential downside with the city’s high crime rate and the area being classified as deprived, which may necessitate additional consideration for tenant markets. Don't miss out on this chance to secure a prime asset with the potential for impressive returns and future flexibility for renovations. This property is ideal for investors looking to enhance their portfolios in a thriving student and professional locality!
19 bedroom house for sale in Holyhead Road, Bangor, LL57 — £1,142,000 • 19 bed • 1 bath • 5748 ft²
6 bedroom house for sale in Orme Road, Bangor, LL57 — £295,000 • 6 bed • 3 bath • 1323 ft²
9 bedroom house for sale in The Crescent, Bangor, LL57 — £360,000 • 9 bed • 2 bath • 912 ft²
Commercial property for sale in Orme Road, Bangor, Gwynedd, LL57 — £250,000 • 3 bed • 2 bath
12 bedroom detached house for sale in High Street, Bangor, Gwynedd, LL57 — £470,000 • 12 bed • 14 bath • 3645 ft²
3 bedroom semi-detached house for sale in Orme Road, Bangor, Gwynedd, LL57 — £250,000 • 3 bed • 2 bath






































































































