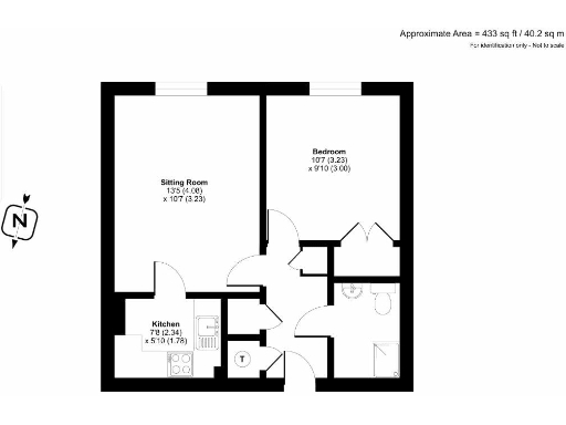
**Standout Features:**
- Cozy first-floor one-bedroom retirement apartment
- Modern kitchen with built-in appliances
- Recently refurbished shower room
- Communal sitting room and laundry facilities
- Beautiful outlook towards gardens; ample natural light
- Gated parking available
- No onward chain
**Potential Downsides:**
- Small overall size (433 sqft)
- High local crime rates and average area deprivation
- Leasehold with 89 years remaining
Discover tranquility in this charming one-bedroom retirement apartment at Ladyplace Court, ideally located in the heart of Alton with delightful garden views. Designed for comfort, this first-floor home features a bright living room, a modern compact kitchen, and a well-appointed shower room, catering to your practicality needs. Enjoy the additional benefits of communal areas and secure gated parking, making this property not only cozy but also incredibly convenient.
While the apartment offers ease of living with its chain-free status, the 433 sqft space may be best suited for individuals or couples, rather than larger families. Given the high crime rate in the area, it’s advisable to consider security arrangements. With 89 years remaining on the lease, now is the perfect time to invest in this peaceful retreat before it’s snapped up. Don’t miss out on the opportunity to embrace this welcoming community and the comfort of Ladyplace Court!
2 bedroom retirement property for sale in Market Square, Alton, Hampshire, GU34 — £119,000 • 2 bed • 1 bath • 556 ft²
2 bedroom apartment for sale in Lady Place Court, Market Square, Alton, Hampshire, GU34 — £135,000 • 2 bed • 1 bath • 549 ft²
2 bedroom flat for sale in Market Square, Alton, Hampshire, GU34 — £135,000 • 2 bed • 1 bath • 546 ft²
2 bedroom apartment for sale in Flat 9, Lady Place Court, Market Square, Alton, Hampshire, GU34 — £130,000 • 2 bed • 1 bath • 593 ft²
1 bedroom apartment for sale in Willow Court, Ackender Road, Alton, Hampshire, GU34 — £95,000 • 1 bed • 1 bath • 522 ft²
1 bedroom apartment for sale in Lady Place Court, Market Square, Alton, Hampshire, GU34 — £99,950 • 1 bed • 1 bath • 433 ft²






































