CT15 6DN - 3 bedroom detached house for sale in Sea Haze, Cavanagh Roa…

View on Property Piper

3 bedroom detached house for sale in Sea Haze, Cavanagh Road, St Margarets-at-Cliffe, CT15

Summary - FLOREAT CAVANAGH ROAD ST MARGARETS BAY DOVER CT15 6DN

3 bed 2 bath Detached

Modern 3-bed detached home with balconies, large garden and seaside views, ready for family life..
- Sea views from two first-floor balconies
- Large plot with landscaped garden and Koi pond
- Underfloor heating throughout for even warmth
- Three double bedrooms; master with ensuite and fitted wardrobes
- Living space on first floor; bedrooms on ground floor (split-level)
- Driveway parking for three cars; private road location
- Slow broadband and average mobile signal
- Council Tax band F (expensive)
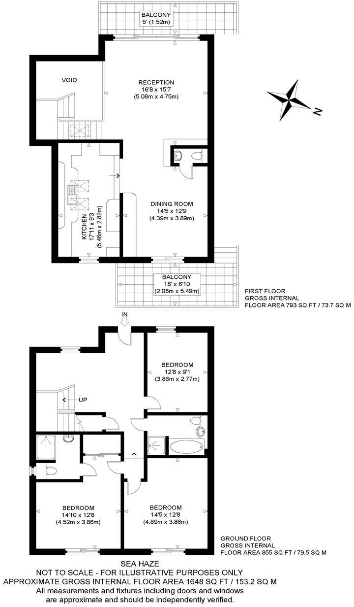
Light-filled contemporary living meets practical family layout in this striking detached home on Cavanagh Road. Built in 2010 to a high specification, the house places the main living space on the first floor to maximise sea views from two balconies, while all three bedrooms and bathrooms sit on the ground floor, offering separation of day and night zones.

The well-appointed kitchen features granite worktops and integrated appliances; underfloor heating runs throughout for consistent warmth. The two larger rear bedrooms open directly onto the landscaped rear garden, which includes a Koi pond, raised patio and contemporary slatted fencing. Driveway parking for three cars and a generous plot add to the property's practical strengths.

Important practical points: the home is Freehold and sits in a very affluent area with low crime and outstanding local primary schools. However, council tax is band F (expensive), broadband speeds are slow and mobile signal is only average. The split-level layout — living above the bedrooms — may not suit limited-mobility buyers despite the ground-floor sleeping accommodation.

This house will suit buyers seeking a contemporary, executive family home with strong outdoor space and coastal views, and those willing to accept modest tech limitations and the ongoing council tax cost.

Property Details

Image Descriptions

Floorplan Description

Rooms

Textual Property Features

Target Audience

AI Tags

Detected Visual Features

Nearby Schools

Nearest Bars And Restaurants

,,,,}

Nearest General Shops

,,}

Nearest Grocery shops

,,}

Nearest Supermarkets

,,}

Nearest Religious buildings

,,}

Nearest Medical buildings

,,,}

Nearest Leisure Facilities

,,,,}

Nearest Tourist attractions

,,}

Nearest Train stations

,,,,}

Nearest Bus stations and stops

,,,,}

Nearest Hotels

,,}

Tags

Local Market Stats

AirBnB Data

Similar Properties

Meta

High Res Images

Compatible Images

Low res Images

Thumbnails

Raw Images

High Res Floorplan Images

Compatible Floorplan Images

Low res Floorplan Images

FloorplanImages Thumbnail

Raw Floorplan Images