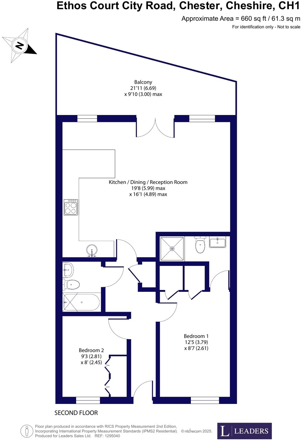
**Standout Features:**
- Elegant and modern two-bedroom upper-floor apartment with lift access.
- Bright open-plan living area with a stylish refitted kitchen.
- Two refurbished bathrooms (including ensuite).
- Allocated off-street parking space.
- Conveniently located near the city center and transport links.
- Average square footage of 660 sq ft.
**Concerns:**
- Above-average crime rates in the area.
- Leasehold property with a service charge of £2,000 per annum and ground rent of £200.
Discover your ideal city living experience in this beautifully refurbished two-bedroom apartment, perfectly positioned for both convenience and comfort. This upper-floor retreat, accessible by a lift, boasts a spacious open-plan living room flooded with natural light, thanks to large windows. The modern kitchen and stylish bathrooms enhance the apartment's appeal, making it perfect for both entertaining and everyday living.
With allocated parking, ease of access to local amenities, and excellent transport links—just a stone's throw from the train station—this apartment caters perfectly to professionals and small families alike. While the surrounding area does feature above-average crime rates, the vibrant cosmopolitan neighborhood is alive with shops, eateries, green spaces, and well-rated schools. Priced attractively at £195,000, this opportunity serves as an excellent investment or a comfortable home. Don’t miss the chance to make this stylish apartment your own; schedule your viewing today!
Studio apartment for sale in Shot Tower Close, Chester, Cheshire, CH1 — £180,000 • 1 bed • 1 bath • 678 ft²
2 bedroom apartment for sale in Shot Tower Close, Chester, Cheshire, CH1 — £180,000 • 2 bed • 2 bath • 705 ft²
2 bedroom apartment for sale in Alexander Court, Dee Lane, Chester, CH3 — £200,000 • 2 bed • 2 bath • 953 ft²
2 bedroom apartment for sale in Shot Tower Close, Chester, Cheshire, CH1 — £190,000 • 2 bed • 2 bath • 710 ft²
2 bedroom apartment for sale in Commonhall Street, Chester, Cheshire, CH1 — £175,000 • 2 bed • 2 bath • 934 ft²
2 bedroom apartment for sale in The Leadworks, Queens Road, Chester, CH1 — £150,000 • 2 bed • 2 bath • 722 ft²


































































