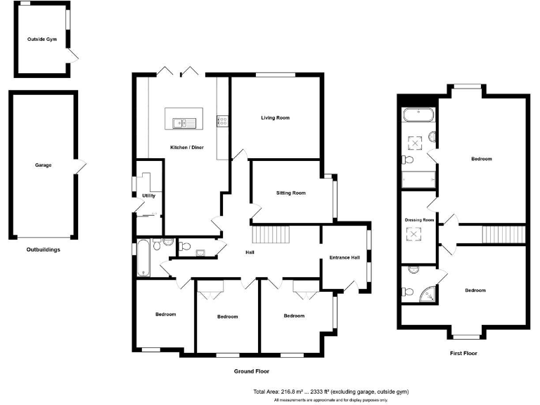
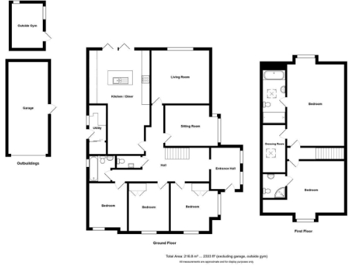
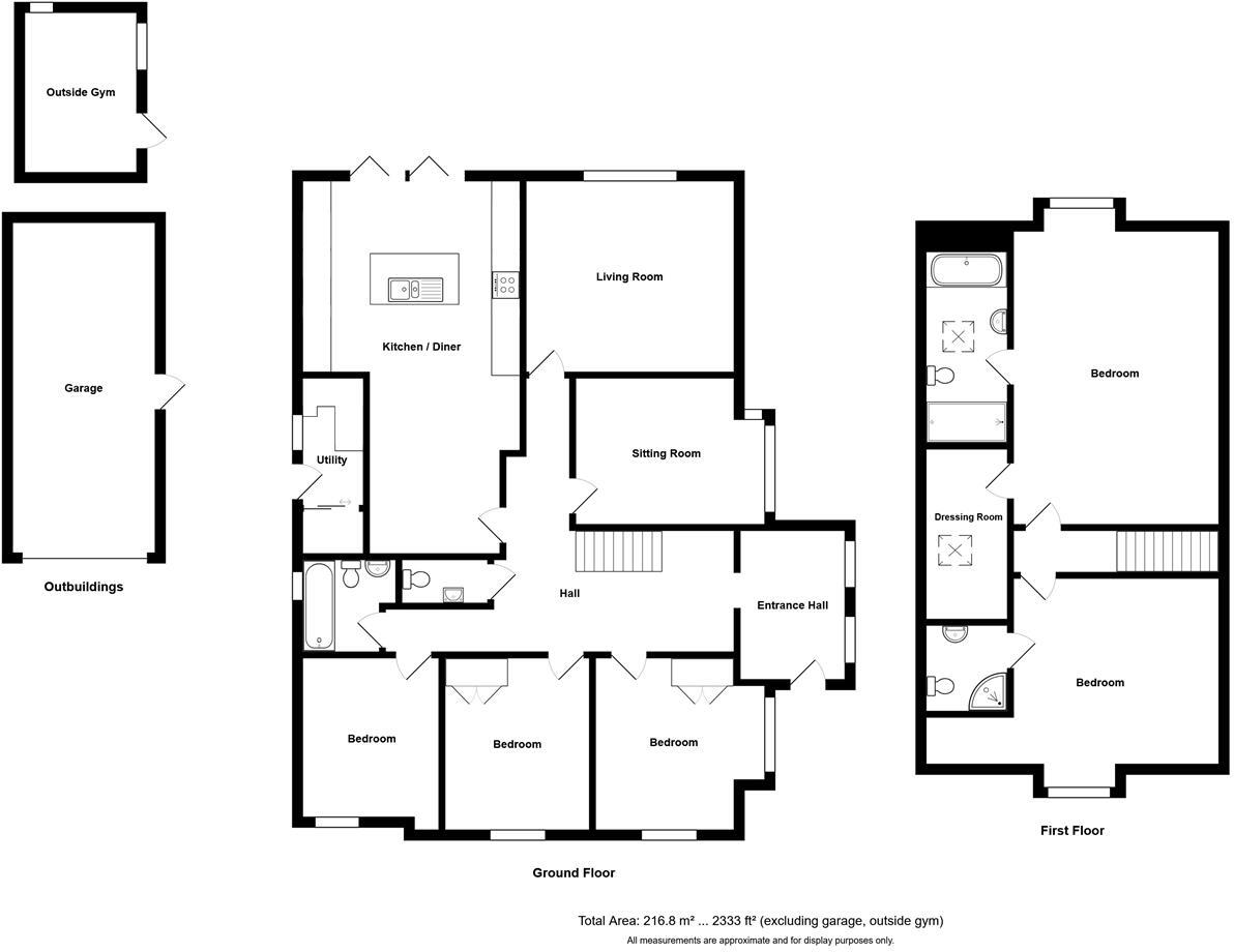
**Standout Features:**
- Spacious 4-bedroom detached bungalow
- Expansive 0.22-acre plot with a level garden
- Contemporary family kitchen with Bifold doors
- Luxurious 21ft main bedroom with dressing room and ensuite
- Three additional bedrooms with ensuite options
- Extensive off-street parking for five vehicles
- Detached gym—perfect for fitness enthusiasts
- Located in the desirable village of Saltford between Bristol and Bath
**Summary:**
Nestled in the affluent village of Saltford, this exceptional detached bungalow on Rodney Road offers a unique blend of luxury and comfort. Spanning over 2,333 square feet, it features four well-appointed bedrooms, including an impressive 21ft main suite with an ensuite bathroom and dressing room that evokes a true sense of indulgence. The heart of the home is the contemporary family kitchen, adorned with high-quality finishes and Bifold doors that lead to a generous, level garden—ideal for outdoor entertaining or family gatherings.
The property boasts three inviting reception rooms, perfect for relaxing or entertaining, along with three well-equipped bathrooms to accommodate your family and guests. Noteworthy is the extensive parking area suitable for up to five vehicles, and a detached gym for those seeking a healthy lifestyle. With a low crime rate and excellent nearby schools, this bungalow isn't just a home; it's a lifestyle opportunity awaiting your personal touch. Seize this chance to create your sanctuary in a prime location—properties of this caliber are rare and may not last long!
2 bedroom bungalow for sale in Roundmoor Close, Saltford, Bristol, BS31 — £580,000 • 2 bed • 2 bath • 1350 ft²
4 bedroom detached bungalow for sale in Rockside Gardens, Downend, BS16 — £650,000 • 4 bed • 2 bath • 1705 ft²
4 bedroom detached bungalow for sale in Family home in much admired village setting, BS20 — £599,950 • 4 bed • 2 bath • 1440 ft²
3 bedroom detached bungalow for sale in Heath Road, Downend, Bristol, BS16 6HF, BS16 — £625,000 • 3 bed • 2 bath • 1504 ft²
4 bedroom detached bungalow for sale in Kingston Way, Nailsea, Bristol, BS48 — £660,000 • 4 bed • 2 bath • 1381 ft²
5 bedroom detached bungalow for sale in Fairway, Brislington, Bristol, BS4 — £750,000 • 5 bed • 3 bath • 2131 ft²


































































































