Character-packed terrace with large private garden close to schools and transport.
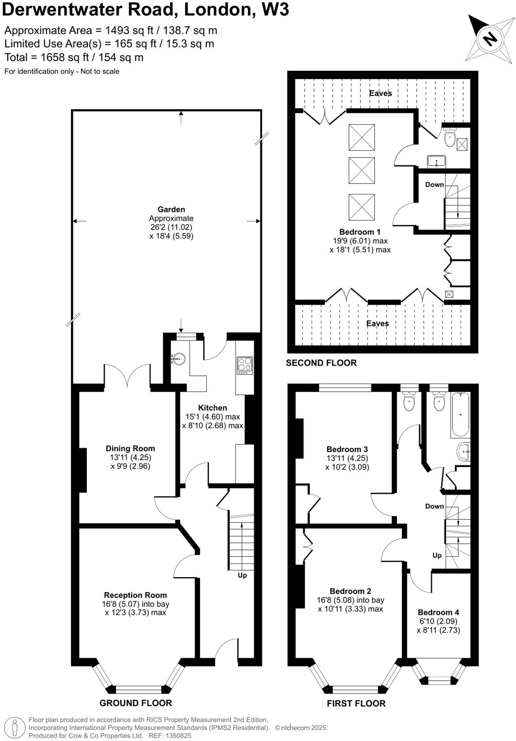
Four bedrooms across three floors, circa 1,493 sq ft
A spacious four-bedroom Victorian mid-terrace on a sought-after Acton road, arranged over three floors and offering abundant period character. High ceilings, bay windows, decorative mouldings and a large reception room create a bright, characterful family living environment. The house totals about 1,493 sq ft and is offered freehold, built circa 1900–1929, with double glazing and mains gas central heating.
The layout supports flexible family living: separate reception and dining spaces, a kitchen/diner with skylight, and a secluded, well-established rear garden that is unusually generous for inner London despite a small street-facing plot. Local amenities and transport are excellent, and several highly regarded primary and secondary schools lie within easy reach, making this a practical family base.
Some updating is likely required to maximise value: the property is built as solid brick with no known wall insulation and glazing install dates are unknown. There is clear scope for modernisation and energy-efficiency improvements (insulation, potential heating upgrades). The area records very high crime levels and local deprivation indicators are notable, which should be considered alongside the property’s location and school access.
This home suits buyers seeking a period family house with character and a rare inner-city garden, and those willing to invest in sympathetic refurbishment to unlock long-term comfort and value. Broadband and mobile signals are strong, and the accommodation offers good rental or family potential in a popular W3 enclave.
4 bedroom house for sale in Faraday Road, Acton, W3 — £950,000 • 4 bed • 2 bath • 1600 ft²
4 bedroom terraced house for sale in Cecil Road, West Acton, W3 — £895,000 • 4 bed • 2 bath • 1182 ft²
4 bedroom terraced house for sale in Brouncker Road, Acton, W3 — £1,150,000 • 4 bed • 2 bath • 1421 ft²
5 bedroom terraced house for sale in Birkbeck Grove, London, W3 7, W3 — £1,350,000 • 5 bed • 2 bath • 2036 ft²
4 bedroom terraced house for sale in Cecil Road, Acton, Acton, W3 — £895,000 • 4 bed • 3 bath • 1410 ft²
5 bedroom end of terrace house for sale in Ramsay Road, Acton, W3 — £999,950 • 5 bed • 3 bath • 1761 ft²






































































