Single-storey home with large private garden and detached garage.
Two bedrooms with practical single-floor layout
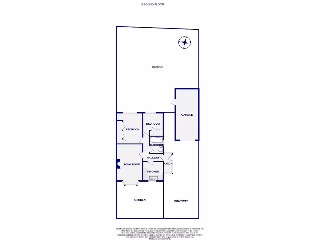
Set on a generous plot just off Tadcaster Road, this two-bedroom semi-detached bungalow offers single-floor living in a quiet, established cul-de-sac. The property retains mid-century character—bay window, fireplace and parquet flooring in the living room—and sits behind a mature, private garden with a detached brick garage and additional off-street parking.
The layout is straightforward and well-suited to downsizers or those seeking a ground-floor home. Both bedrooms are practical in size and the single bathroom and living spaces are functional, but the house requires a programme of updating throughout to reach modern standards. The EPC rating of D reflects the need for some energy improvements.
Practical positives include mains gas central heating, double glazing, freehold tenure and a decent plot that offers scope for landscaping or extension (subject to consents). Notable considerations are the dated interior and renovation requirement, plus a small overall footprint (approximately 599 sq ft). Crime in the immediate area is reported as above average, so prospective buyers should factor local safety measures into their plans.
Well-located for local amenities, schools and bus routes, this bungalow suits purchasers looking for a manageable, single-storey home with garden space to personalise. It will appeal most to buyers willing to invest in modernisation to unlock the property’s full potential and enjoy a peaceful suburban setting.
3 bedroom bungalow for sale in Hill View, York, YO31 — £270,000 • 3 bed • 1 bath • 649 ft²
2 bedroom bungalow for sale in Turnberry Drive, York, YO26 — £300,000 • 2 bed • 1 bath • 561 ft²
2 bedroom semi-detached bungalow for sale in Ox Close, Stamford Bridge, York, YO41 — £230,000 • 2 bed • 1 bath • 530 ft²
2 bedroom semi-detached bungalow for sale in Alder Way, New Earswick, York YO32 4TH, YO32 — £280,000 • 2 bed • 1 bath • 855 ft²
2 bedroom semi-detached bungalow for sale in Buttermere Drive, York, YO30 — £230,000 • 2 bed • 1 bath • 674 ft²
2 bedroom semi-detached bungalow for sale in Drummond View, Bishopthorpe, York YO23 2SH, YO23 — £269,950 • 2 bed • 1 bath • 536 ft²






















































