Substantial Grade II listed rectory with 0.5-acre gardens and detached annexe.
Grade II listed former rectory, dating to 1575 (consent needed for changes)
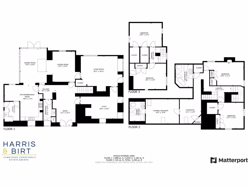
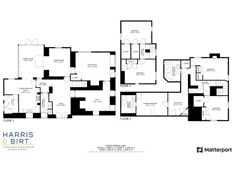
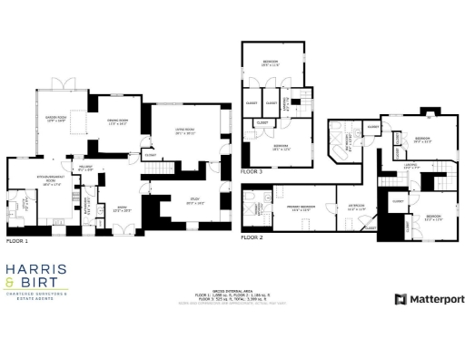
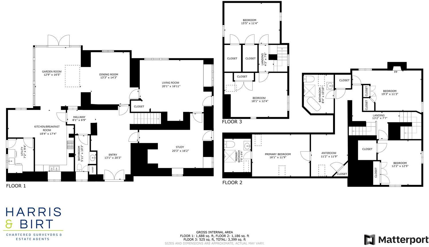
The Old Rectory is a substantial Grade II listed former rectory dating from 1575, set in circa 0.5 acres of formal gardens in the heart of St Mary Church. The house retains strong period character — exposed stonework, original fireplace with spiral staircase, high windows and exposed beams — while offering large, flexible family living across three floors including five double bedrooms and four bathrooms.
Practical outbuildings add significant value: a pointed-stone detached annexe currently used as a hobby/games room, a double garage and a stone workshop/storage room. The kitchen/orangery and several reception rooms open onto flagstone terraces and mature gardens, making the plot excellent for outdoor entertaining and family play. Llanfair junior school and Cowbridge Comprehensive are within easy reach, and the property offers straightforward access to the A48/M4 for commuting.
Important considerations: the house is Grade II listed — any alterations or extensions will be restricted and require listed-building consent. Heating is oil-fired (with underfloor heating to the kitchen/utility) so fuel costs and future servicing should be factored in. The property is large and period in nature, so ongoing maintenance and periodic conservation work are likely. Council tax is described as very expensive. The immediate area has low crime and average broadband and mobile signals but is recorded as very deprived for area deprivation statistics.
This home will suit families or buyers seeking a character-filled country residence with sizeable private grounds and useful outbuildings, who understand the responsibilities of owning a listed building and the maintenance that an historic property demands.
4 bedroom detached house for sale in Llangan, Near Cowbridge, Vale Of Glamorgan, CF35 5DW, CF35 — £1,395,000 • 4 bed • 3 bath • 4420 ft²
5 bedroom detached house for sale in St Mary Church, Cowbridge, CF71 — £685,000 • 5 bed • 3 bath • 2045 ft²
7 bedroom detached house for sale in Great House, Llandow, The Vale of Glamorgan CF71 7NT, CF71 — £785,000 • 7 bed • 2 bath • 3123 ft²
4 bedroom house for sale in Marcross, Llantwit Major, Vale of Glamorgan, CF61 1ZD, CF61 — £1,000,000 • 4 bed • 3 bath • 2466 ft²
3 bedroom barn conversion for sale in Court Farm Granary, Llansannor, Cowbridge, CF71 7RX, CF71 — £629,950 • 3 bed • 2 bath • 2397 ft²
6 bedroom detached house for sale in The Cottage, St Hilary, Cowbridge, Vale Of Glamorgan, CF71 7DP, CF71 — £1,850,000 • 6 bed • 5 bath • 7131 ft²


































































































































































