Generous family space close to the beach and top-rated schools.
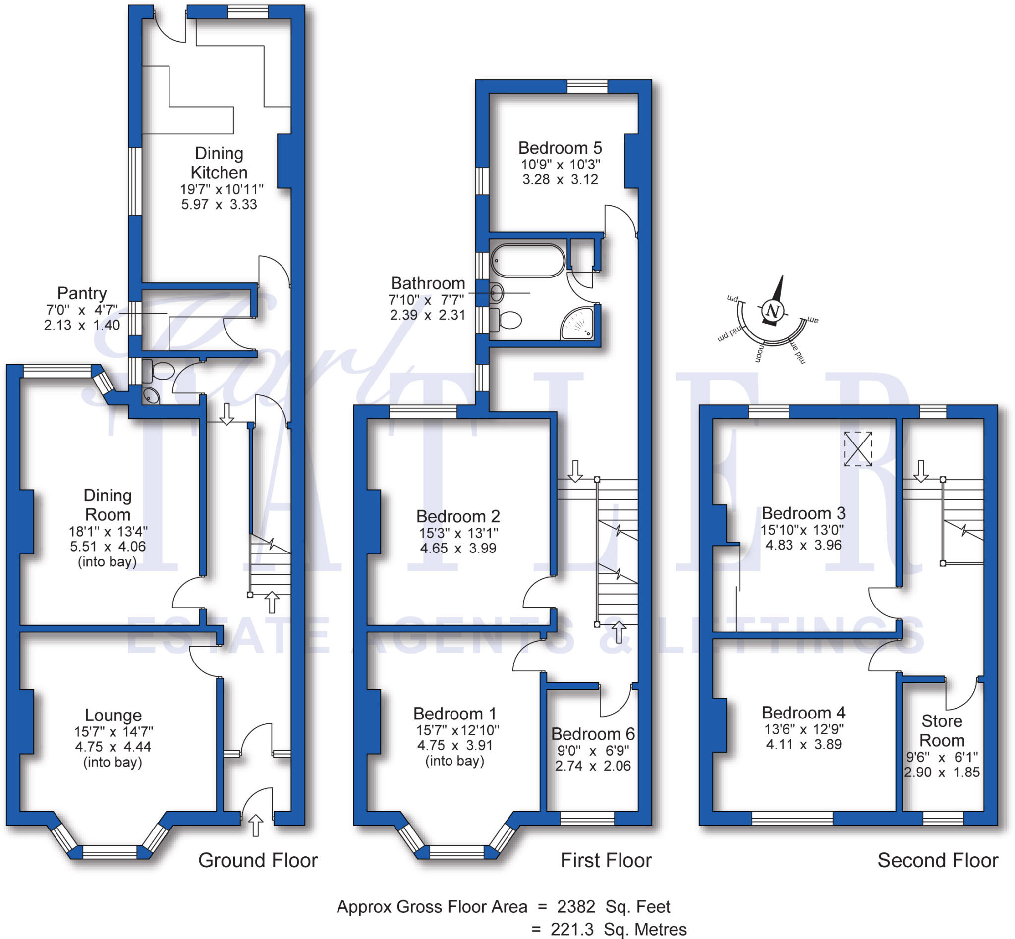
Six bedrooms across three floors, large 2,382 sq ft interior
Two generous reception rooms with high ceilings and original fireplaces
Large kitchen-dining room with log-burning stove and garden access
Long private rear garden, flagged patio and brick-built shed
Freehold Victorian townhouse with strong period character
Only two bathrooms for six bedrooms — potential inconvenience
Solid brick walls likely lack cavity insulation — thermal upgrades needed
Local area recorded as having high crime levels
A substantial six-bedroom Victorian townhouse arranged over three full floors and an attic, this freehold property offers generous family accommodation within walking distance of West Kirby’s Marine Lake, beach and highly regarded schools. Original period details — bay windows, high ceilings, fireplaces and Minton-tiled entrance — give the house strong character and a welcoming sense of history. New oak-engineered flooring across the ground floor complements bright, well-proportioned reception rooms.
The layout suits a growing or multi-generational family: two large reception rooms, a generous kitchen-dining room with log-burning stove, and five double bedrooms plus a sixth bedroom/office. The long rear garden with flagged patio, lawn and brick-built shed provides a secure private outdoor space for children and pets. At approximately 2,382 sq ft, the house offers scope to reconfigure or extend subject to consents.
Buyers should note a few practical considerations. The property is a mid-terrace Victorian build with solid brick walls that likely lack cavity insulation and may need thermal upgrades. There are two bathrooms for six bedrooms, which could be inconvenient without further reconfiguration. Local crime levels are recorded as high for the area, and while the heating is mains-gas boiler and radiators, some systems and finishes may benefit from updating to suit modern family life.
Taken as a whole, this home blends period charm, abundant space and an excellent coastal location. It will particularly appeal to families wanting long-term living space with potential to modernise and personalise, while being close to top-rated schools and local amenities.
5 bedroom end of terrace house for sale in North Road, West Kirby, Wirral, CH48 — £535,000 • 5 bed • 2 bath • 2256 ft²
5 bedroom terraced house for sale in Church Road, West Kirby, Wirral, CH48 — £525,000 • 5 bed • 2 bath • 1988 ft²
5 bedroom semi-detached house for sale in Eaton Road, West Kirby, Wirral, Merseyside, CH48 — £400,000 • 5 bed • 2 bath • 1897 ft²
5 bedroom terraced house for sale in South Parade, West Kirby, Wirral, CH48 — £750,000 • 5 bed • 2 bath • 3311 ft²
6 bedroom end of terrace house for sale in Trinity Road, Hoylake, Wirral, CH47 — £525,000 • 6 bed • 3 bath • 2821 ft²
2 bedroom terraced house for sale in Hilton Grove, West Kirby, Wirral, Merseyside, CH48 — £215,000 • 2 bed • 1 bath • 556 ft²






























































































































