S45 8HA - 2 bedroom house for sale in Queen Street, Pilsley, Chesterf…

View on Property Piper

2 bedroom house for sale in Queen Street, Pilsley, Chesterfield, S45

Summary - 11A QUEEN STREET PILSLEY CHESTERFIELD S45 8HA

2 bed 1 bath House

**Key Features:**
- Terraced house with Victorian character
- 2 spacious double bedrooms
- 2 reception rooms for flexible living
- Fitted kitchen and stylish bathroom
- Rear yard with outbuildings and vehicle standing area
- Chain-free sale
- Convenient village location with easy access to amenities
- Average local crime rate and fast broadband speeds

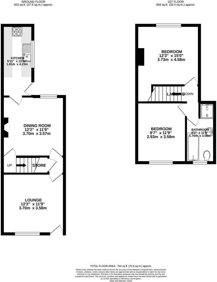
Experience the charm of this **Victorian terraced house** in Pilsley, an ideal choice for **first-time buyers** or small families. The property boasts **two double bedrooms**, providing comfort and ample personal space. With **two reception rooms**, it offers versatility for living, dining, or even a home office setup. The **fitted kitchen** meets modern needs, along with a **stylishly designed bathroom** for your relaxation.

Outdoors, you’ll find a practical rear yard featuring **outbuildings** for extra storage or utility needs, alongside a **vehicle standing area** for convenience. Nestled in a **convenient location** with a range of local amenities—shops, schools, and good transport links—the property ensures easy access to both daily necessities and leisure activities, including nearby country parks.

This chain-free opportunity presents a fantastic chance to step onto the property ladder. With a total area of **762 sq. ft**, it's a compact yet comfortable home waiting for your personal touch. Don’t miss out on making this your own—schedule a viewing today!

Property Details

Brochure Descriptions

Image Descriptions

Floorplan Description

Rooms

Textual Property Features

Detected Visual Features

EPC Details

Nearby Schools

Nearest Bars And Restaurants

,,,,}

Nearest General Shops

,,}

Nearest Grocery shops

,,}

Nearest Supermarkets

,,}

Nearest Religious buildings

,,}

Nearest Medical buildings

,,,}

Nearest Leisure Facilities

,,,,}

Nearest Tourist attractions

,,}

Nearest Train stations

,,,,}

Nearest Bus stations and stops

,,,,}

Nearest Hotels

,,}

Tags

Local Market Stats

Similar Properties

Meta

High Res Images

Compatible Images

Low res Images

Thumbnails

Raw Images

High Res Floorplan Images

Compatible Floorplan Images

Low res Floorplan Images

FloorplanImages Thumbnail

Raw Floorplan Images