Compact commuter home with private garden and recent renovation..
- One double bedroom with contemporary fittings
- Private two-level rear garden, rare for a basement flat
- Five-minute walk to Strood station, direct to London
- Recently renovated interior; ready to occupy
- Basement unit: low ceilings, potential damp/maintenance risk
- Lease c.83 years remaining; needs timely extension
- Sold by online auction; buyers premium and fees apply
- Area crime rate very high; check local safety data
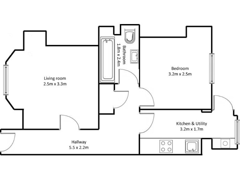
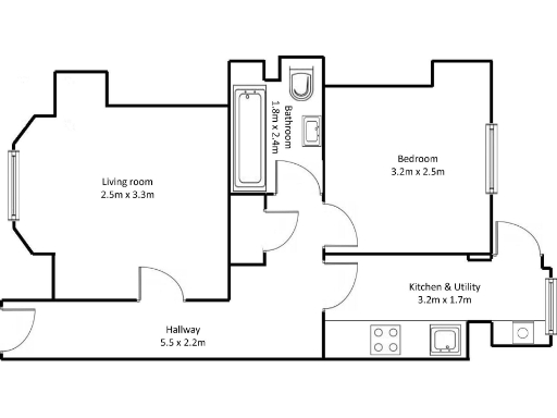
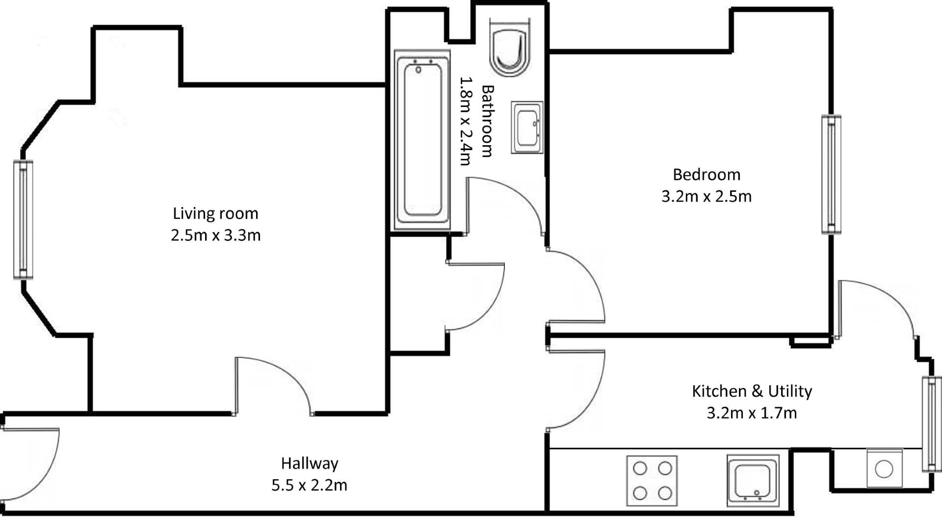
A compact one-bedroom basement flat set in a Victorian conversion on St Mary’s Road, recently renovated and ready to move into. The flat benefits from a bright living room with a bay window, a modern kitchen and bathroom, a generous double bedroom and a private two-level rear garden for outdoor space.
Practical transport links are a major plus: Strood station is about a five-minute walk with direct services to London (around 36 minutes), and the M2 is nearby for drivers. On-street permit parking is available and local shops, cafés and amenities are within easy reach.
There are material points to note. The flat sits in a basement level with relatively low ceilings and evidence of Victorian basement construction — buyers should check for potential damp and maintenance issues. The lease has about 83 years remaining, which will require action to extend soon to protect long-term value. The sale is by online auction and carries a non-refundable buyer’s premium and additional fees; read the legal pack carefully before bidding.
This property suits a first-time buyer or investor looking for a low-entry, commuter-friendly home with period character and outdoor space. Factor in lease renewal costs, auction fees and potential basement maintenance when assessing overall affordability and long-term plans.
1 bedroom flat for sale in London Road, Northfleet, Gravesend, Kent, DA11 — £125,000 • 1 bed • 1 bath • 484 ft²
2 bedroom flat for sale in New Road, Chatham, Kent, ME4 — £90,000 • 2 bed • 1 bath • 505 ft²
1 bedroom flat for sale in 42B Luton Road, Chatham, Kent, ME4 5AA, ME4 — £62,000 • 1 bed • 1 bath • 485 ft²
1 bedroom ground floor flat for sale in New Road, Rochester, Kent, ME1 — £140,000 • 1 bed • 1 bath • 346 ft²
2 bedroom apartment for sale in High Street, Faraday House High Street, ME1 — £190,000 • 2 bed • 2 bath • 743 ft²
1 bedroom ground floor flat for sale in Gordon Road, Chatham, Kent, ME4 — £105,000 • 1 bed • 1 bath






























































