S35 0FD - 3 bedroom end of terrace house for sale in Beely Road, Ough…

View on Property Piper

3 bedroom end of terrace house for sale in Beely Road, Oughtibridge, S35

Summary - 10 BEELY ROAD OUGHTIBRIDGE SHEFFIELD S35 0FD

3 bed 2 bath End of Terrace

**Standout Features:**
- No chain and freehold ownership
- Three spacious bedrooms with potential for a fourth in the attic
- Low-maintenance rear garden, perfect for relaxation
- Generous living spaces with abundant natural light
- Located in a sought-after village with excellent amenities
- Affordable council tax band A at £1,593

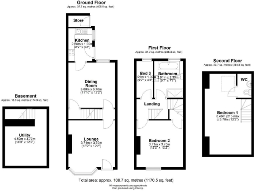
Discover this charming three-bedroom end-terrace home in the idyllic village of Oughtibridge, designed for families and first-time buyers looking for comfort and potential. The property boasts spacious rooms filled with natural light, featuring a welcoming lounge, a dining room, and a well-equipped kitchen with convenient access to a converted cellar. An attic bedroom with an ensuite offers additional flexibility, ideal for a guest suite or home office.

Step outside to enjoy a lovely rear garden tailored for leisure or entertaining, while enjoying the tranquillity of a friendly neighborhood just a short stroll from local amenities, parks, and highly-rated schools. This home perfectly balances village charm and modern living, making it an exceptional opportunity not to be missed. With its attractive features and favorable price point, this property is sure to capture the interest of prospective buyers—act quickly to secure your place in this delightful community!

Property Details

Brochure Descriptions

Image Descriptions

Floorplan Description

Rooms

Textual Property Features

Detected Visual Features

EPC Details

Nearby Schools

Nearest Bars And Restaurants

,,,,}

Nearest General Shops

,,}

Nearest Grocery shops

,,}

Nearest Supermarkets

,,}

Nearest Religious buildings

,,}

Nearest Medical buildings

,,,}

Nearest Leisure Facilities

,,,,}

Nearest Tourist attractions

,,}

Nearest Train stations

,,,,}

Nearest Bus stations and stops

,,,,}

Nearest Hotels

,,}

Tags

Local Market Stats

AirBnB Data

Similar Properties

Meta

High Res Images

Compatible Images

Low res Images

Thumbnails

Raw Images

High Res Floorplan Images

Compatible Floorplan Images

Low res Floorplan Images

FloorplanImages Thumbnail

Raw Floorplan Images