**Key Features:**
- Large semi-detached house with off-street parking
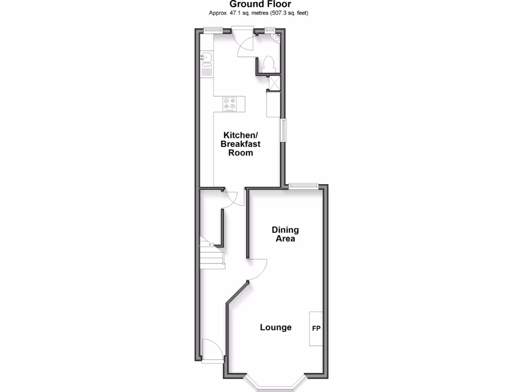
- Spacious galley-style kitchen/breakfast room
- Ground floor cloakroom
- Well-maintained rear garden perfect for entertaining
- Walking distance to shops and places of worship
- Close proximity to Chadwell Heath and Goodmayes stations
- Total area: 665 sq ft with 3 bedrooms and 1 bathroom
- Freehold tenure
This charming Edwardian semi-detached home offers an ideal blend of comfort and convenience, appealing to families and first-time buyers alike. The spacious galley-style kitchen/breakfast room is perfect for family gatherings, while the well-maintained rear garden invites you to enjoy outdoor entertaining. With off-street parking, you can conveniently come and go. Located within walking distance of local amenities and close to Chadwell Heath and Goodmayes stations, commuting and everyday errands are simplified.
While the property's solid brick walls provide a classic feel, it's important to note that they lack insulation, and potential buyers should consider updates to enhance energy efficiency. The surrounding area boasts a diverse community with access to several well-rated schools, making this home a family-friendly choice. Don’t miss out on this unique opportunity in a thriving neighborhood—properties like this are rare to find!
3 bedroom semi-detached house for sale in Somerville Road, Chadwell Heath, Romford, Essex, RM6 — £500,000 • 3 bed • 1 bath • 617 ft²
3 bedroom semi-detached house for sale in Rochford Avenue, Chadwell Heath, Essex, RM6 — £525,000 • 3 bed • 1 bath • 711 ft²
3 bedroom semi-detached house for sale in Alexandra Road, Chadwell Heath, Essex, RM6 — £460,000 • 3 bed • 1 bath • 702 ft²
5 bedroom semi-detached house for sale in Chadwell Avenue, Romford, Essex, RM6 — £670,000 • 5 bed • 3 bath • 1277 ft²
3 bedroom terraced house for sale in Grove Road, Romford, London, RM6 — £499,995 • 3 bed • 1 bath • 1142 ft²
3 bedroom semi-detached house for sale in Padnall Road, Romford, Essex, RM6 — £435,000 • 3 bed • 1 bath • 1400 ft²






































































