Spacious bungalow with large garden and countryside views.
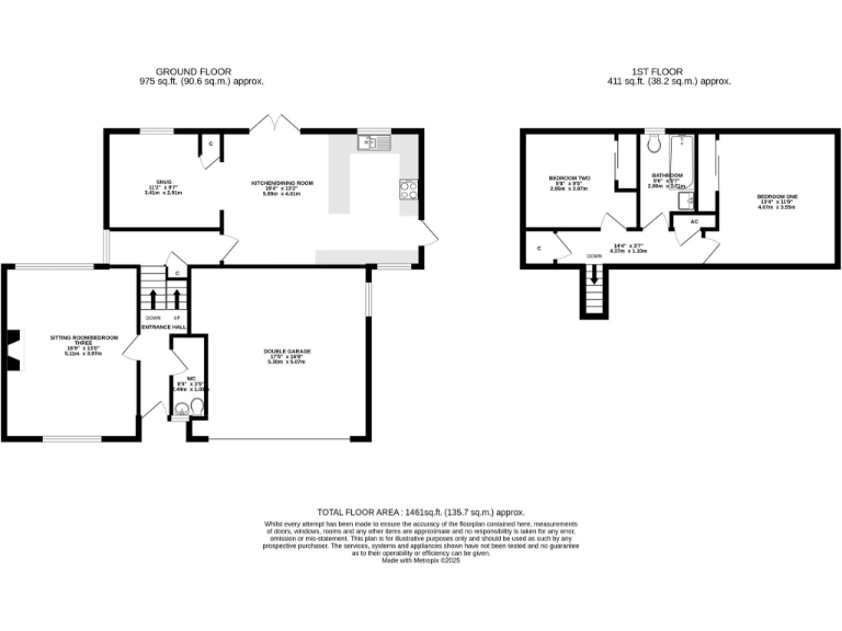
Almost 30ft open-plan kitchen, dining and snug with French doors
Set on a quiet cul-de-sac in Meare, this detached single-storey home offers flexible living across a bright open-plan ground floor and two double bedrooms upstairs. The kitchen, dining and snug stretch to nearly 30ft with French doors onto a patio, creating a generous, sociable heart to the house and strong indoor–outdoor flow. A picture window and woodburner add character and countryside views over an orchard and open fields.
Practical positives include a double garage, driveway parking, a large rear garden (approx 23.1m x 19.3m) and a modern air-source heating system. The remainder of the Renewable Heat Incentive is transferable to a new owner — roughly £5,000 payable over the next three years — helping offset running costs. There is scope to increase living space: the double garage could be converted and further extension is possible subject to planning consent.
The property has been well maintained and recently updated, but note its energy performance is average (EPC D) which may affect heating bills. Any major conversion or extension will need the necessary consents and budget. This home suits downsizers or small families seeking a quiet village location with countryside access and long-term improvement potential.
3 bedroom detached house for sale in Myrtle Close, Meare, BA6 — £350,000 • 3 bed • 2 bath • 765 ft²
3 bedroom bungalow for sale in Kirle Gate, Meare, BA6 — £420,000 • 3 bed • 1 bath • 1130 ft²
3 bedroom bungalow for sale in Sunnyview, Oxenpill, Meare, Glastonbury, Somerset, BA6 — £395,000 • 3 bed • 1 bath • 1378 ft²
2 bedroom link detached house for sale in Oxenpill, Meare, BA6 — £279,950 • 2 bed • 1 bath • 1363 ft²
3 bedroom house for sale in Muddy Lane, Meare, Glastonbury, Somerset, BA6 — £290,000 • 3 bed • 1 bath • 949 ft²
5 bedroom detached bungalow for sale in West End, Street, BA16 — £630,000 • 5 bed • 3 bath • 1663 ft²


































































































