RH10 8HN - 8 bed spacious eight bedroom home in Five Acres, RH10 8HN

View on Property Piper

8 bedroom end of terrace house for sale in Five Acres, Northgate, Crawley, West Sussex, RH10

Summary - 34 FIVE ACRES CRAWLEY RH10 8HN

8 bed 7 bath End of Terrace

Large extended terraced house — flexible layout for family living or investor conversion..
- Eight double bedrooms and seven bathrooms across extensions and loft
- Large rear garden with wide cabin; potential ancillary income space
- Substantial off-street parking for several vehicles
- Close to Crawley and Three Bridges stations; Gatwick within 30 minutes
- Potential damp issue by kitchen skylight; inspection required
- Cavity walls assumed uninsulated; heating via mains gas boiler
- High local crime rate; consider security measures and insurance
- Change of use (HMO/B&B) requires consents and licensing
A substantial end-of-terrace house offering truly flexible accommodation across multiple extensions and a full-width loft conversion. Currently arranged as eight double bedrooms and seven bathrooms, the layout suits a large family or buyers considering rental conversions (HMO, B&B or short-let) subject to planning and HMO licensing.

The ground floor features a large modern kitchen/entertainment space with vaulted skylights, a rear single-storey extension and additional reception rooms that work as bedrooms or living areas. Upstairs comprises five double bedrooms with three en-suites and a family bathroom, while the loft provides two further en-suite doubles. The property benefits from a large rear garden with a substantial cabin, off-street parking for several vehicles, solar panels and fast broadband/mobile signal — useful for home working or short-let guests.

Buyers should note material points factually: the house was built mid-20th century (1950–66) and cavity walls are assumed to be uninsulated; the glazing is double but installation date is unknown. There is a potential damp issue noted near the kitchen skylight that will need inspection and possible remediation. The area records higher crime levels, and any change of use (HMO or B&B) will require the necessary consents and checks.

Located in Northgate, Crawley, the property is well-placed for commuting — Crawley and Three Bridges stations are within walking distance and Gatwick is reachable within 30 minutes by public transport. Local schools include several rated Good or Outstanding. This is a rare large-footprint home with clear scope for families seeking space or investors prepared to manage upgrades and planning for alternate use.

Property Details

Brochure Descriptions

Image Descriptions

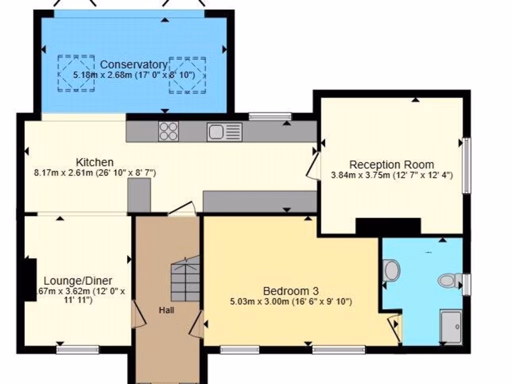
Floorplan Description

Rooms

Textual Property Features

Target Audience

AI Tags

Detected Visual Features

EPC Details

Nearby Schools

Nearest Bars And Restaurants

,,,,}

Nearest General Shops

,,}

Nearest Grocery shops

,,}

Nearest Supermarkets

,,}

Nearest Religious buildings

,,}

Nearest Medical buildings

,,,}

Nearest Airports

}

Nearest Leisure Facilities

,,,,}

Nearest Tourist attractions

,,}

Nearest Train stations

,,,,}

Nearest Bus stations and stops

,,,,}

Nearest Hotels

,,}

Tags

Local Market Stats

AirBnB Data

Similar Properties

Meta

High Res Images

Compatible Images

Low res Images

Thumbnails

Raw Images

High Res Floorplan Images

Compatible Floorplan Images

Low res Floorplan Images

FloorplanImages Thumbnail

Raw Floorplan Images