Large southwest garden and strong schools close by.
Five bedrooms and two reception rooms, spacious family layout
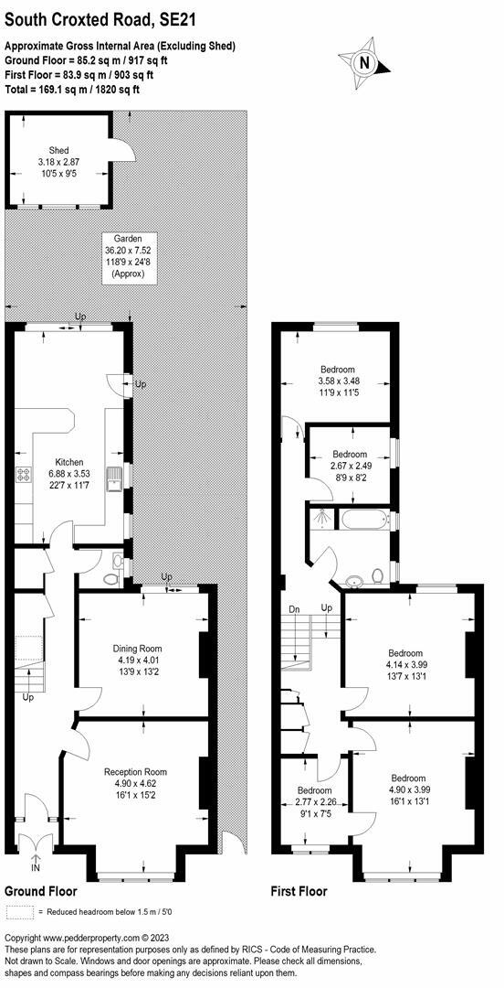
An attractive Victorian semi‑detached house on a tree‑lined West Dulwich street, arranged over two storeys and offered chain free. The house delivers five bedrooms, two reception rooms and a generous 22' kitchen/breakfast room, all presented in good order and retaining period features such as bay windows, decorative timberwork and high ceilings.
The property sits on a substantial plot for the area with a rare 118' south‑west facing rear garden, ideal for family recreation, vegetable beds or a future terrace. There is apparent space at the side that could allow off‑street parking or a driveway subject to investigation. The house also has clear scope for enlargement — loft conversion and ground‑floor side‑return extension are both possible, subject to planning consent.
Practical points to note: the property has a single family bathroom and a downstairs cloakroom, an EPC rating of E and belongs to Council Tax Band F, so running costs should be factored in. The building is solid brick (typical of the era) and insulation details are unknown; buyers should budget for potential thermal upgrades and for confirming any structural or services works before extending.
Located close to West Dulwich and Dulwich Village amenities, outstanding and well‑regarded schools, and regular rail and bus links into central London, this house will particularly suit growing families seeking period character, outdoor space and future extension potential within an affluent neighbourhood.
5 bedroom semi-detached house for sale in South Croxted Road, West Dulwich, London, SE21 — £1,250,000 • 5 bed • 1 bath • 2061 ft²
5 bedroom semi-detached house for sale in Rosendale Road, London, SE21 — £1,500,000 • 5 bed • 3 bath • 2674 ft²
4 bedroom semi-detached house for sale in South Croxted Road, West Dulwich, London, SE21 — £1,400,000 • 4 bed • 1 bath • 1586 ft²
3 bedroom detached house for sale in Clive Road, West Dulwich, London, SE21 — £1,100,000 • 3 bed • 1 bath • 1005 ft²
4 bedroom terraced house for sale in Beauval Road, East Dulwich, London, SE22 — £1,600,000 • 4 bed • 2 bath • 1524 ft²
8 bedroom detached house for sale in Chestnut Road, West Dulwich, SE27 — £2,600,000 • 8 bed • 4 bath • 4001 ft²


































































































