Newly remodelled four-bedroom detached home with large garden and excellent transport links..
- Four double bedrooms, suitable for growing families
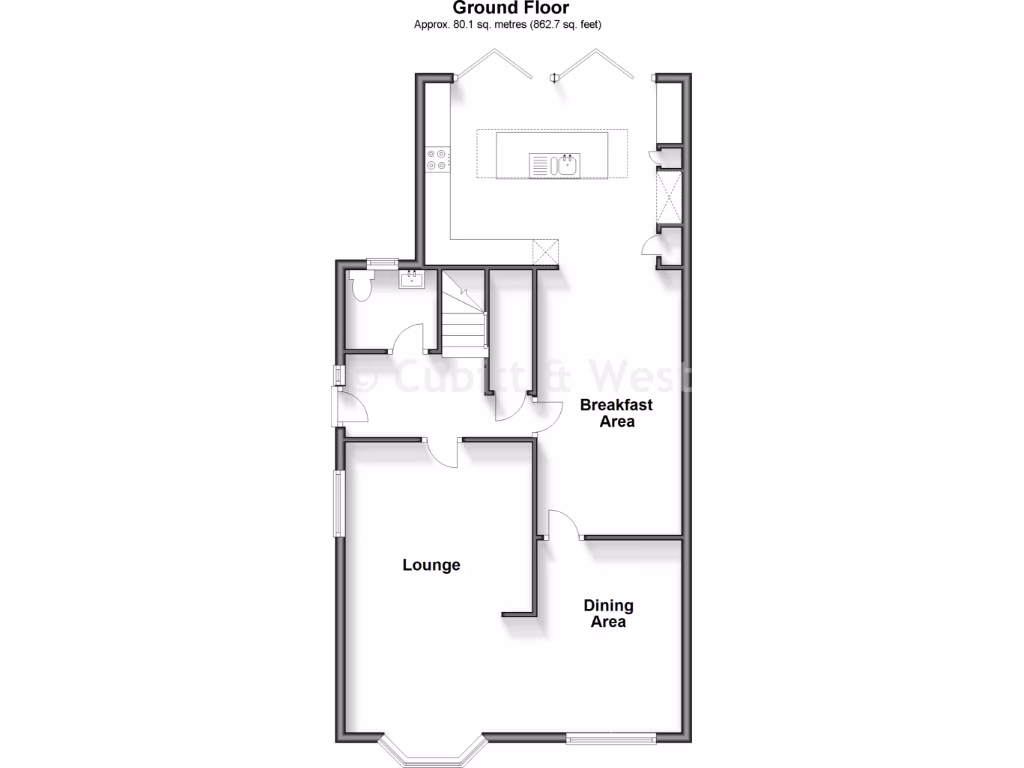
- Recently remodelled and extended; open-plan ground floor
- Bi-fold doors open to a large, low-maintenance rear garden
- Driveway for multiple cars plus integral garage
- Walking distance to train station, schools and town centre
- Single family bathroom only, may require adding a second
- Cavity walls shown with no added insulation (assumed)
- Local area crime rated high; consider security measures
A spacious four-bedroom detached home in Denvilles, recently remodelled with an extended open-plan ground floor and bi-folding doors that open onto a large, family-friendly rear garden. The layout creates a bright communal space ideal for day-to-day family living and entertaining, with a generous kitchen/breakfast area and separate dining/lounge zones. Driveway parking for multiple cars and an integral garage add practical convenience for commuters and families.
The property is well placed for local life: within walking distance of Havant town centre, the train station and several primary and secondary schools rated Good. Room sizes are comfortable across four bedrooms, and the total floor area of about 1,324 sq ft suits a growing family. The home benefits from mains gas central heating, double glazing and a recently completed extension that increases usable living space.
Buyers should note a few material points: there is a single family bathroom serving four bedrooms, and council tax is above average. The external walls are cavity-built with no confirmed added insulation, which may be worth addressing for long-term running costs. The local crime rate is reported as high, so prospective purchasers should consider local security and community factors.
Overall, this newly renovated detached house offers practical family living, good transport links and significant indoor/outdoor flow. It will suit buyers wanting a ready-to-move-in family home with potential to improve energy performance and add a second bathroom if desired.
4 bedroom detached house for sale in Fourth Avenue, Denvilles, Havant, Hampshire, PO9 — £383,500 • 4 bed • 1 bath • 1324 ft²
4 bedroom detached house for sale in Third Avenue, Denvilles, Havant, PO9 — £575,000 • 4 bed • 1 bath • 1353 ft²
4 bedroom detached house for sale in First Avenue, Havant, Hampshire, PO9 — £575,000 • 4 bed • 2 bath • 1680 ft²
4 bedroom detached house for sale in Nutwick Road, Havant, PO9 — £415,000 • 4 bed • 1 bath • 1562 ft²
3 bedroom detached house for sale in Wisteria Gardens, Havant, Hampshire, PO9 — £435,000 • 3 bed • 2 bath • 926 ft²
3 bedroom detached house for sale in Swallow Close, Havant, Hampshire, PO9 — £465,000 • 3 bed • 1 bath • 886 ft²


































































