Bright three-bed terrace with sunny garden moments from Southsea seafront and transport links.
Victorian mid-terrace with period bay window
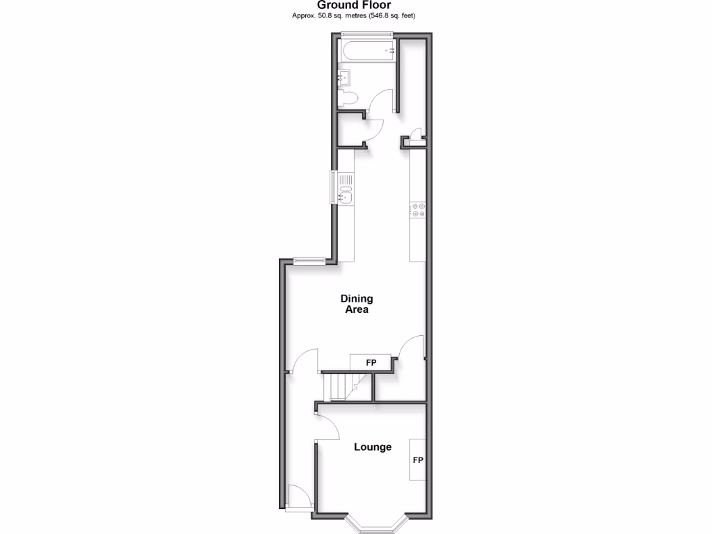
Spacious kitchen/dining room, 20'7 x 14'0
Sunny south-facing, low-maintenance rear garden
Three bedrooms; single family bathroom plus cloakroom
Freehold with approx 1,002 sq ft internal floor area
On-street resident permit parking only
Double glazing installed before 2002 — may need modernising
Located near seafront, train station and good primary schools
This attractive Victorian mid-terrace in central Southsea offers bright, modern living across an uncomplicated, traditional layout. The long kitchen/dining area and sunny south-facing rear garden are stand-out features for family cooking and relaxed outdoor time. At about 1,002 sq ft the house feels roomy for a terrace while retaining manageable maintenance.
The property is freehold, well-located for shops, bus routes, the train station and the seafront — ideal for families wanting everyday convenience and easy commutes. Nearby primary schools have Good Ofsted ratings; secondary options include at least one Good-rated school and one requiring improvement. The neighbourhood is affluent with very low crime and excellent mobile and fast broadband connectivity.
Practical details to note: there is one bathroom and an additional cloakroom, on-street resident permit parking only, and a small plot size with a low-maintenance garden. The house dates from 1900–1929 and has double glazing installed before 2002; there may be scope to modernise heating or windows over time. Overall this is a tidy, move-in-ready home with clear potential for incremental updating to add value.
3 bedroom terraced house for sale in Jubilee Road, Southsea, Hampshire, PO4 — £285,000 • 3 bed • 1 bath • 624 ft²
3 bedroom terraced house for sale in Jubilee Road, Southsea, Hampshire, PO4 — £269,500 • 3 bed • 1 bath • 857 ft²
3 bedroom terraced house for sale in Bramshott Road, Southsea, Hampshire, PO4 — £315,000 • 3 bed • 1 bath • 1049 ft²
3 bedroom terraced house for sale in Grayshott Road, Southsea, Hampshire, PO4 — £300,000 • 3 bed • 1 bath • 958 ft²
3 bedroom end of terrace house for sale in Napier Road, Southsea, PO5 — £425,000 • 3 bed • 1 bath • 994 ft²
3 bedroom terraced house for sale in Fordingbridge Road, Southsea, PO4 — £340,000 • 3 bed • 1 bath • 968 ft²














































