**Standout Features:**
- Spacious three-bedroom semi-detached house in a desirable area.
- Modern kitchen with integrated appliances and open-plan living spaces.
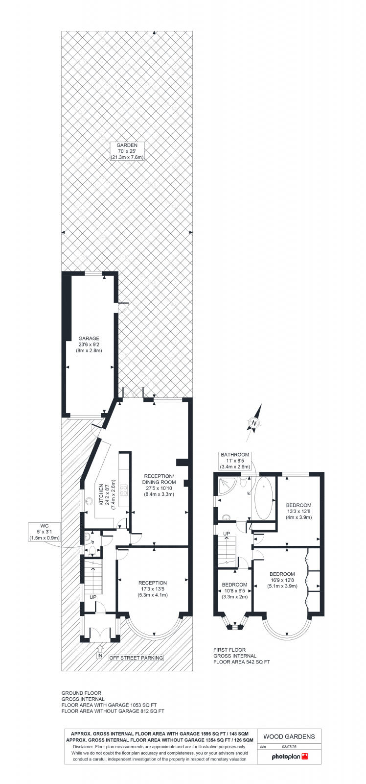
- Extended ground floor with two reception areas and a cloakroom.
- Beautiful, well-maintained rear garden ideal for family gatherings.
- Off-street parking for at least two cars and a separate garage with conversion potential.
- Close proximity to Gants Hill Station and various amenities, including schools and parks.
- Freehold tenure with low crime rates, making it family-friendly and secure.
- Potential for further expansions (subject to planning permission).
**Summary:**
Nestled in the highly sought-after Woods Estate, this semi-detached home combines space and comfort, perfect for families seeking a vibrant community atmosphere. With 1364 square feet of living space, this beautifully presented property features an open-plan modern kitchen, two reception areas boasting abundant natural light, and a large garden ideal for both relaxation and entertainment. The ground floor conveniently includes a cloakroom, while the first floor houses two sizable double bedrooms, a spacious single bedroom, and a family bathroom with both a shower and bathtub.
Families will appreciate the local amenities, including several excellent schools ranked 'Outstanding' and 'Good' by Ofsted. Additionally, the property offers off-street parking for up to three vehicles and a separate garage that holds renovation potential as a home office or gym (subject to planning). Given its prime location and flexibility for expansion, this home is an attractive opportunity that won't last long. Schedule your viewing today to imagine your future in this well-loved residence!
5 bedroom semi-detached house for sale in Collinwood Gardens, Clayhall, IG5 — £990,000 • 5 bed • 2 bath
4 bedroom semi-detached house for sale in Abbotswood Gardens, Ilford, IG5 — £750,000 • 4 bed • 2 bath • 1681 ft²
4 bedroom semi-detached house for sale in Collinwood Gardens, Clayhall, IG5 — £800,000 • 4 bed • 3 bath • 2017 ft²
5 bedroom end of terrace house for sale in Glenwood Gardens, Ilford, IG2 — £749,950 • 5 bed • 3 bath • 1396 ft²
3 bedroom semi-detached house for sale in Woodford Avenue, IG2 6XE, IG2 — £575,000 • 3 bed • 1 bath • 1319 ft²
4 bedroom semi-detached house for sale in Highwood Gardens, Ilford, IG5 — £999,950 • 4 bed • 2 bath • 2515 ft²


























































