Spacious modern house close to Dudley town centre and transport.
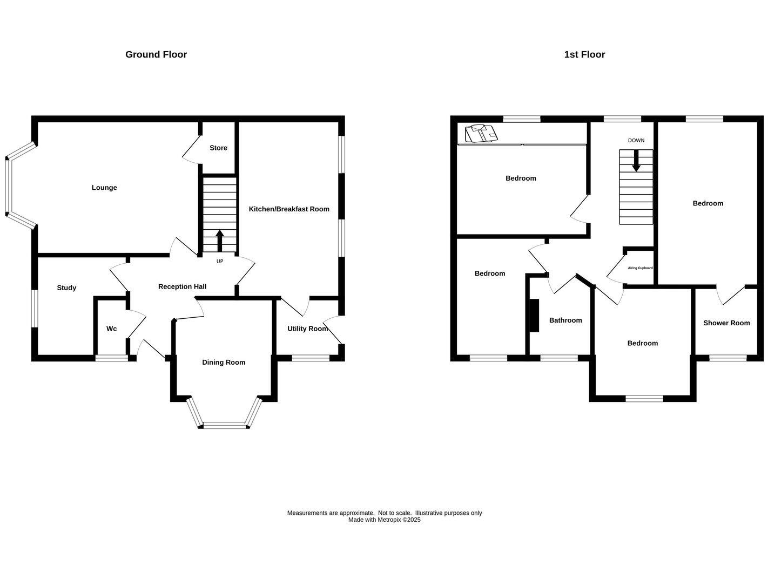
Four bedrooms including master with ensuite
Spacious lounge, separate dining room and ground-floor office
Modern kitchen with utility room and integral garage
Private enclosed rear garden and driveway parking
Built 2007–2011 with double glazing and gas central heating
Council Tax above average; service charge £184 per year
Area shows relative deprivation and above-average crime levels
Nearby schools mixed; one outstanding, some require improvement
This detached four-bedroom home, built 2007–2011, offers roomy family living in a modern, low-maintenance build. The layout includes a generous lounge, separate dining room, office, stylish kitchen with utility, master bedroom with ensuite, and an enclosed rear garden — practical spaces for everyday family life and home working.
The property is presented well by the current owners and benefits from mains gas central heating, double glazing and an integral garage with driveway parking. Broadband and mobile coverage are strong and flood risk is minimal. Council tax is above average and a modest service charge of £184 applies.
Location is a key strength: close to Dudley town centre, transport links and a mix of nearby schools (including an outstanding primary and good secondaries). Buyers should note the wider area faces relative deprivation and crime is recorded as above average, factors to weigh when considering long-term value or rental prospects.
Overall this is a comfortable, contemporary family home offering sensible room sizes and scope for minor updates if desired. It will suit growing families wanting move-in-ready accommodation near town amenities, or investors targeting lettings in a well-connected area.
4 bedroom detached house for sale in Dibdale Road, Dudley, DY1 — £364,950 • 4 bed • 2 bath • 1055 ft²
4 bedroom detached house for sale in Cowley Drive, Dudley, West Midlands, DY1 — £620,000 • 4 bed • 4 bath • 2196 ft²
4 bedroom detached house for sale in Aintree Way, Dudley, DY1 — £390,000 • 4 bed • 2 bath • 1540 ft²
4 bedroom detached house for sale in Winchcombe Close, Dudley, West Midlands, DY1 — £400,000 • 4 bed • 2 bath • 1510 ft²
3 bedroom semi-detached house for sale in Limes Road, Dudley, DY1 — £224,950 • 3 bed • 1 bath • 757 ft²
4 bedroom detached house for sale in Hearth Close, Dudley, DY2 — £350,000 • 4 bed • 2 bath • 1195 ft²






























































































