Large two-bedroom flat close to station and city amenities.
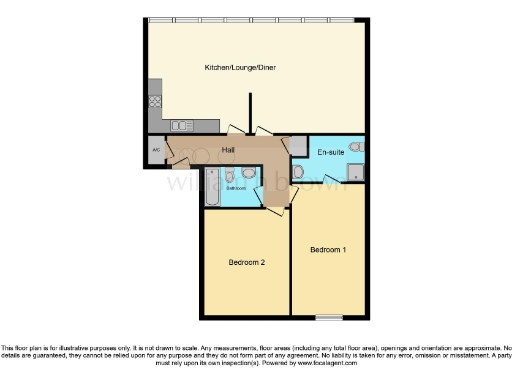
Two double bedrooms with en-suite to master and large lounge
Approximately 1,152 sq ft — unusually spacious city flat
Short walk to Peterborough city centre and train station
Leasehold with c.104 years remaining — verify lease packs
Service charge c.£2,200 pa; ground rent £150 pa
Electric storage heating; no mains gas — higher running costs possible
Cavity walls likely uninsulated — consider thermal upgrade work
Area classified as deprived — rental demand and resale mixed
Bright, large two-bedroom apartment on Oundle Road offering spacious open-plan living and clear city views. The property features two double bedrooms with an en-suite to the master, a large lounge and a modern kitchen — layout and size (approximately 1,152 sq ft) give genuine space uncommon in city-centre flats. Its position at The Apex places shops, leisure and the train station within easy walking distance.
Practical details matter: this is a leasehold flat with about 104 years remaining, an average service charge of £2,200 and a small ground rent of £150. Heating is electric storage radiators and the building’s cavity walls are understood to be uninsulated, which may affect running costs and comfort compared with gas-heated homes.
The apartment suits first-time buyers seeking spacious city living or investors wanting a centrally located rental; excellent mobile signal and fast broadband support home working and streaming. The surrounding area is mixed and economically challenged in places, so consider local market rents and demand if buying to let.
A straightforward maintenance and upgrade plan (insulation, heating review and any cosmetic updates) would increase comfort and long-term value. Buyers are advised to commission their own surveys and to verify service charge and lease documentation before committing.
2 bedroom flat for sale in The Apex, Oundle Road, PETERBOROUGH, PE2 — £150,000 • 2 bed • 2 bath • 1085 ft²
2 bedroom apartment for sale in Oundle Road, Woodston, Peterborough, PE2 — £155,000 • 2 bed • 1 bath • 851 ft²
2 bedroom apartment for sale in Oundle Road, Peterborough, PE2 — £95,000 • 2 bed • 2 bath • 797 ft²
2 bedroom flat for sale in Oundle Road, Peterborough, PE2 — £100,000 • 2 bed • 1 bath • 1388 ft²
2 bedroom flat for sale in Hawksbill Way, Peterborough, PE2 — £130,000 • 2 bed • 2 bath
2 bedroom flat for sale in Hammonds Drive, Peterborough, PE1 — £135,000 • 2 bed • 2 bath • 851 ft²






































































