**Standout Features:**
- Modern detached house with Sussex flint-style façade built in 2021
- Chain-free sale, ready for immediate occupancy
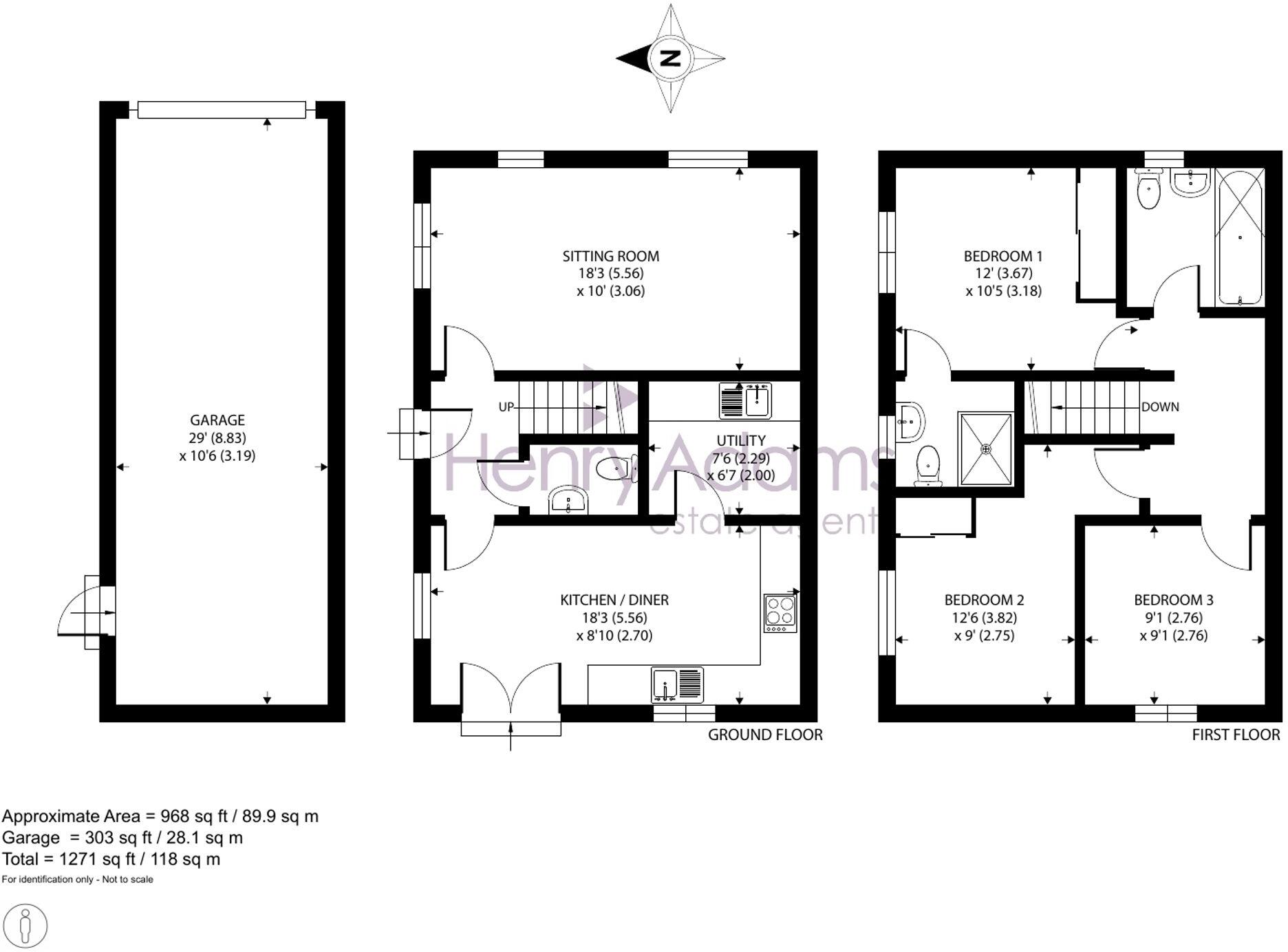
- Spacious double-aspect sitting room and a sociable kitchen/diner
- Three bedrooms, including principal with en-suite shower
- Landscaped low-maintenance rear garden, ideal for entertaining
- Double garage with power and driveway parking
**Concise Summary:**
Discover this stylish three-bedroom detached home nestled in the quiet and picturesque Small Meadow, West Broyle, on the edge of Chichester. This former show home, constructed in 2021, exudes traditional Sussex charm while boasting modern finishes, making it a perfect choice for families or first-time buyers seeking a move-in-ready property. The inviting double-aspect lounge and the sociable kitchen/diner with integrated appliances create a bright and welcoming atmosphere, while patio doors open to a beautifully landscaped garden for easy outdoor enjoyment.
This property offers notable convenience with a utility room and a cloakroom on the ground floor, while the upper level features a principal bedroom complete with en-suite and two additional bedrooms served by a contemporary family bathroom. The double garage enhances appeal with extra storage and parking options. Although situated in an affluent area, be aware that local amenities are slightly limited, and while mobile signal is excellent, broadband speeds are slower. With no onward chain, this is a unique opportunity that won’t last long—envision your family making memories here in a home that beautifully marries character with modern living. Don’t miss out!























































































