Spacious family home with large garden and modern kitchen extension.
Grade II listed Tudor detached with many original features
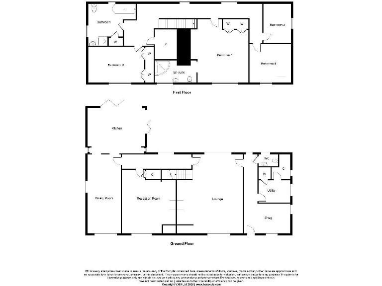
Tucked behind electric gates in a sought-after Maidstone lane, this Grade II listed detached home pairs Tudor character with a large, landscaped plot and modern living spaces. Exposed beams, inglenook fireplaces and high ceilings give the house strong period charm, while a recent kitchen extension with bi-fold doors creates a bright, open hub for family life and entertaining.
Externally the property sits on a very large plot with gravel drive, detached garage, gated entrance, landscaped rear garden and an outdoor heated swimming pool. Room proportions are generous throughout (approximately 2,120 sq ft) with multiple reception rooms, a snug, utility, dressing room and an en-suite to the principal bedroom—flexible space for a growing family or home working.
Buyers should note this is a Grade II listed building which will restrict alterations and may increase repair or consenting costs. The house has solid brick walls (assumed uninsulated), older double glazing (installed before 2002) and services such as the gas boiler are untested; these are practical factors to consider when budgeting for running costs and any upgrades. Broadband speed is reported as slow and council tax band is high.
Overall the property offers rare character, generous outdoor space and a strong indoor/outdoor kitchen living area—well suited to families seeking a semi-rural, high-privacy home—provided they are comfortable with listed-property responsibilities and some potential maintenance or improvement work.
4 bedroom detached house for sale in Ashford Road, Great Chart, Ashford, TN23 — £650,000 • 4 bed • 3 bath • 1998 ft²
5 bedroom detached house for sale in Wierton Hill, Boughton Monchelsea, Maidstone, Kent, ME17 — £1,750,000 • 5 bed • 5 bath • 4477 ft²
4 bedroom detached house for sale in Boxley Road, Maidstone, ME14 3DN, ME14 — £499,990 • 4 bed • 2 bath • 1776 ft²
Equestrian facility for sale in Claxfield Road, Lynsted, Kent, ME9 — £1,650,000 • 4 bed • 2 bath • 2964 ft²
4 bedroom house for sale in Heath Road, Boughton Monchelsea, Maidstone, ME17 — £900,000 • 4 bed • 3 bath • 3024 ft²
4 bedroom detached house for sale in Wierton Hall Farm Cottage, Boughton Monchelsea, Kent, ME17 — £1,275,000 • 4 bed • 5 bath • 3073 ft²


























































































































































