**Standout Features:**
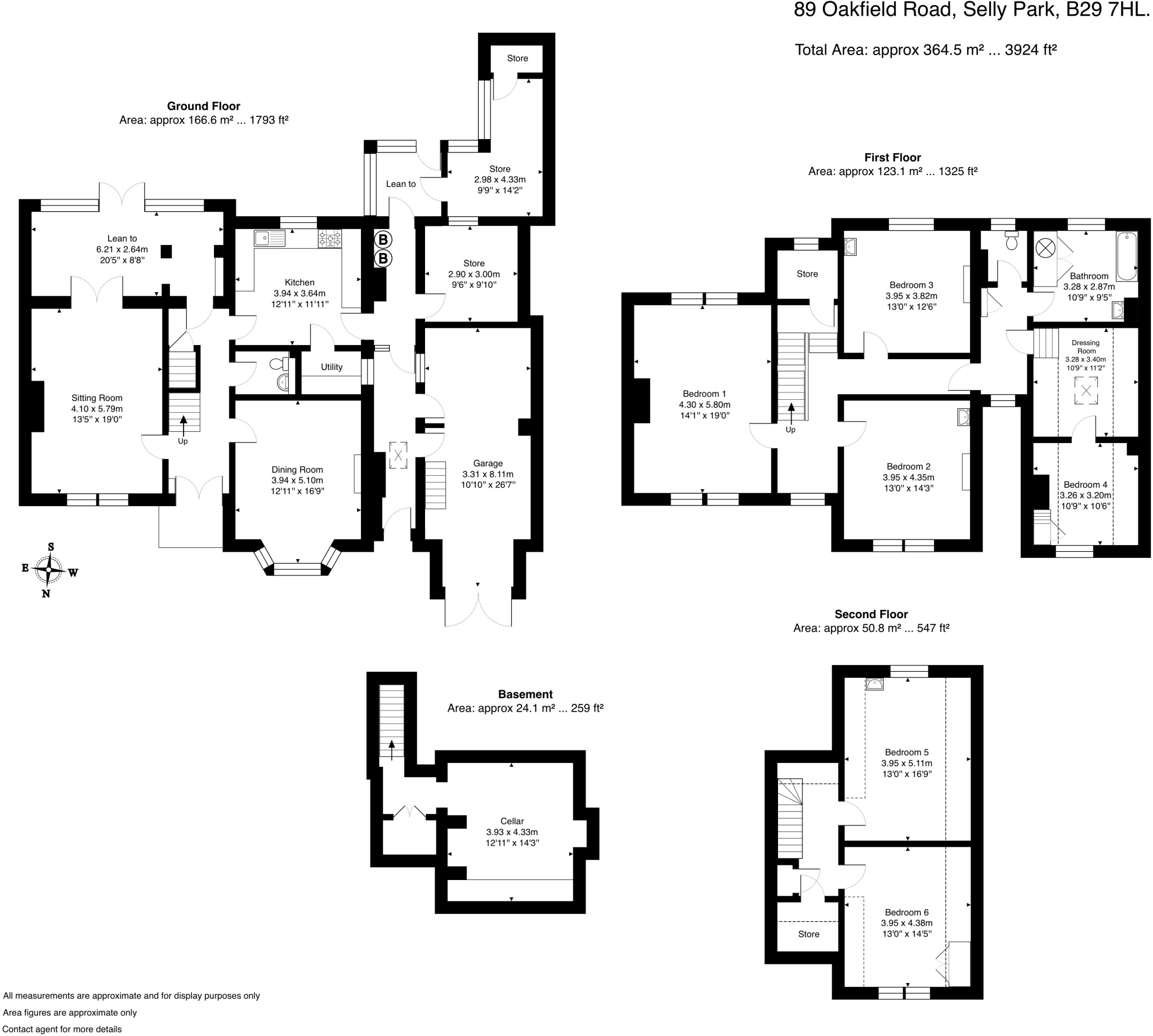
- Sprawling 6-bedroom Victorian semi-detached house
- Approximately 3,924 sq ft of living space on a 0.23-acre plot
- Ideal location in Selly Park, close to Birmingham University and Queen Elizabeth Hospital
- Characterful period details and high ceilings throughout
- Mature, south-facing garden with paved patio and extensive lawns
- Off-street parking with space for 2-3 cars and a garage
- Potential for renovation to create a bespoke family home
**Concise Summary:**
Welcome to this character-filled Victorian semi-detached house on Oakfield Road, Selly Park, offering a remarkable 3,924 sq ft of living space across three levels plus a cellar. Perfect for families or investors, this property features six spacious bedrooms and the original details that define its historic charm. Situated on a generous south-facing plot, the expansive garden boasts mature greenery, providing a serene outdoor space for gatherings or relaxation.
While the home's grandeur requires some general modernization, the extensive layout presents an enticing opportunity for customization to meet your family's unique needs or investment goals. With Birmingham University and Queen Elizabeth Hospital just a short distance away, this location is prime for potential students or medical professionals. Don’t miss out on this rare chance to create a stunning family haven in a sought-after neighborhood—schedule a viewing today to explore the endless possibilities this home has to offer!
6 bedroom detached house for sale in Upland Road, Selly Park, B29 — £1,250,000 • 6 bed • 2 bath • 3702 ft²
5 bedroom semi-detached house for sale in Weoley Park Road, Selly Oak, Birmingham, B29 6QZ, B29 — £600,000 • 5 bed • 2 bath • 1826 ft²
4 bedroom detached house for sale in Oakfield Road, Selly Park, Birmingham, West Midlands, B29 — £875,000 • 4 bed • 2 bath • 2627 ft²
5 bedroom semi-detached house for sale in Court Oak Road, Harborne, Birmingham, B17 — £695,000 • 5 bed • 2 bath • 2218 ft²
6 bedroom house for sale in Heeley Road, Birmingham, West Midlands, B29 — £530,000 • 6 bed • 6 bath • 1098 ft²
4 bedroom detached house for sale in Serpentine Road, Selly Park, B29 — £850,000 • 4 bed • 1 bath • 2416 ft²






















































































































