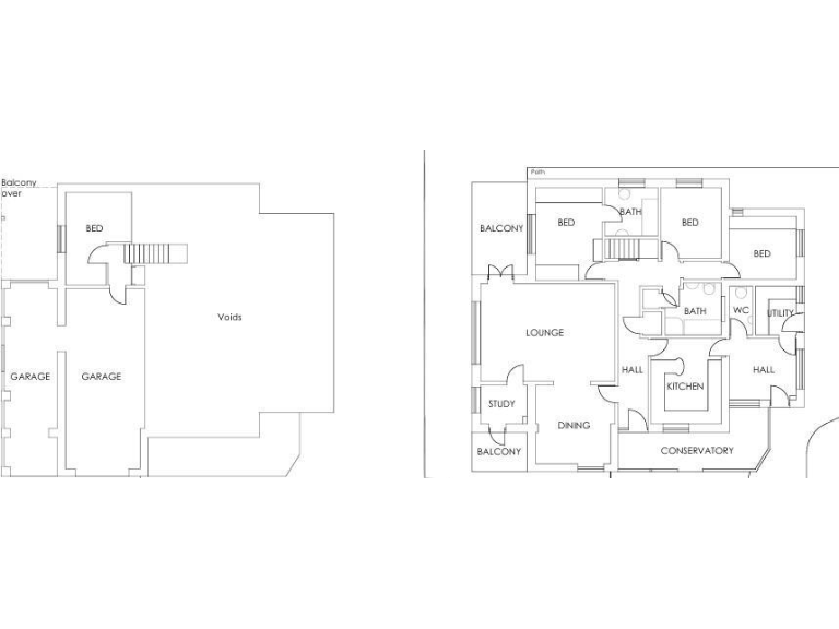
Four-bedroom detached home with planning permission, large plot and semi-rural views..
- Four-bedroom detached family home with master en-suite
- Planning permission granted to extend to five bedrooms
- Large plot with twin integral garages and gated driveway
- Sunroom/conservatory and balcony with far-reaching views
- Solid-wood kitchen with granite surfaces and utility room
- Medium flood risk; check insurance and flood mitigation needs
- Very slow broadband speeds; may limit home-working options
- Council tax Band F (expensive)
Set on a large plot in sought-after Ripponden, this four-bedroom detached home blends versatile family living with attractive outward views. The principal rooms are bright and well-proportioned: a large open-plan lounge and dining area, a fitted solid-wood kitchen with granite surfaces, plus a sunroom/conservatory and study. A master bedroom with en-suite and three further bedrooms provide comfortable everyday accommodation.
Practical strengths include twin integral garages, a wide tarmac driveway with electric gated access, and mature low-maintenance garden planting. Planning permission (application no. 24/01290/HSE) has been granted to extend the property to five bedrooms, offering clear scope to increase living space or resale value. The position above the road with a semi-rural backdrop gives pleasant, far-reaching outlooks and a private feel.
Buyers should note a medium flood risk for the area and very slow broadband speeds, which may affect home working or streaming. Council tax is in an expensive band (Band F). The property appears well maintained externally, but buyers wanting immediate high-speed connectivity or the lowest insurance/premiums should factor these limitations into their plans.
Overall this is a practical, spacious family home in a comfortable neighbourhood with good local schools and links nearby. The granted extension consent and generous plot make it especially suitable for growing families or purchasers looking to add value through sympathetic enlargement.
4 bedroom detached house for sale in 12 Small Lees Road, Ripponden HX6 4DZ, HX6 — £500,000 • 4 bed • 2 bath • 2476 ft²
4 bedroom detached house for sale in Ryestone Drive, HX6 — £475,000 • 4 bed • 3 bath • 1690 ft²
5 bedroom bungalow for sale in The Bungalow, Higher Park Royd Drive, Kebroyd HX6 3HU, HX6 — £550,000 • 5 bed • 3 bath • 2863 ft²
4 bedroom detached bungalow for sale in Elland Road, Sowerby Bridge, HX6 — £500,000 • 4 bed • 1 bath • 1454 ft²
4 bedroom detached house for sale in 140 Oldham Road, Ripponden HX6 4EA, HX6 — £550,000 • 4 bed • 3 bath • 3500 ft²
4 bedroom semi-detached house for sale in Oldham Road, Ripponden, HX6 — £369,950 • 4 bed • 2 bath • 989 ft²






















































































































































