Contemporary family layout with sunny private garden and entertaining hub.
Three double bedrooms across three storeys, flexible room use
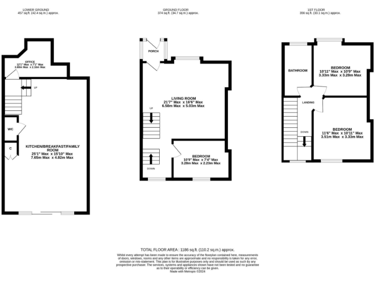
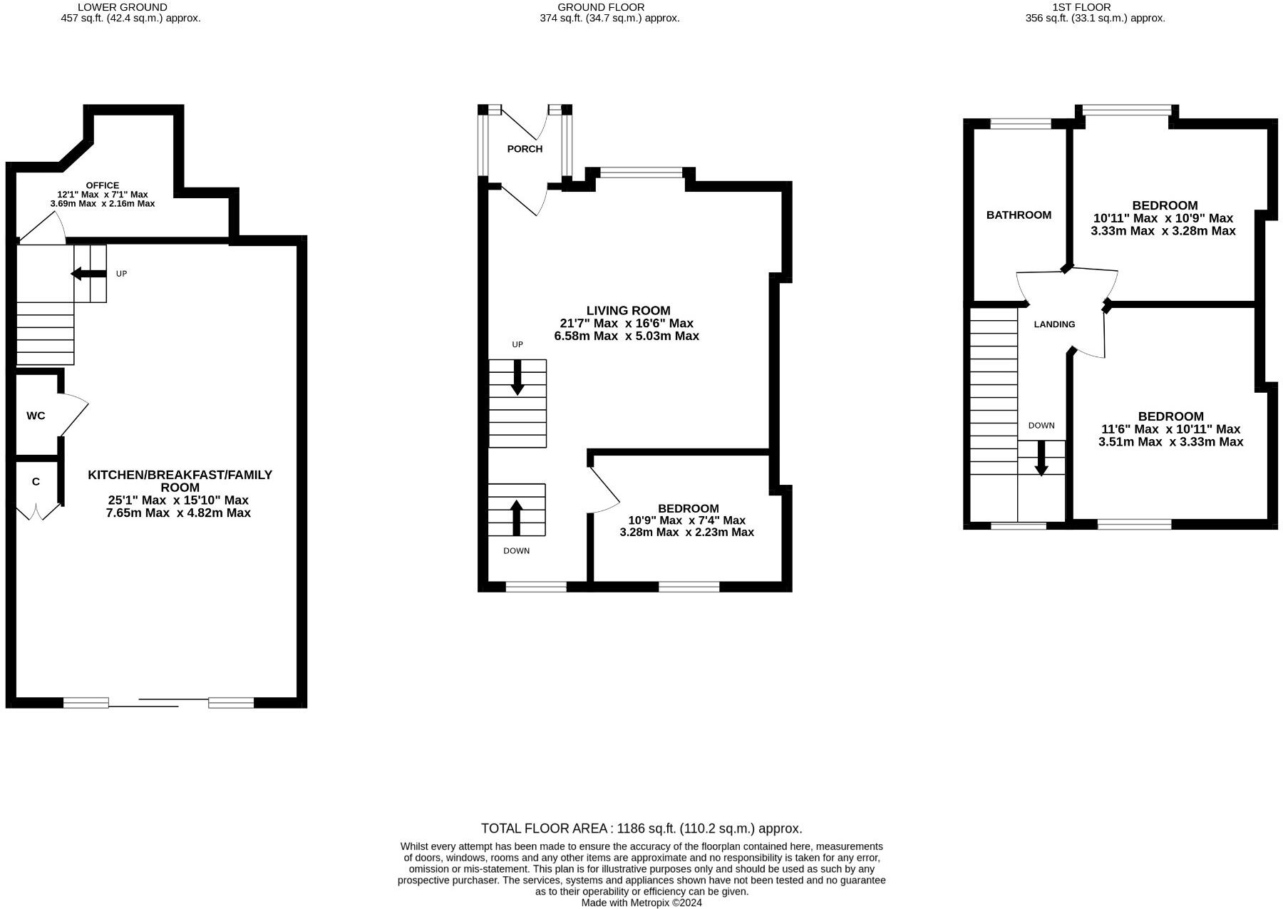
This attractive mid-terrace townhouse offers well-balanced living across three floors, ideal for growing families seeking space near Bournemouth’s beaches and town centre. The lower-ground open-plan kitchen/dining/family room is a standout — a bright, contemporary hub with a lantern skylight, island, high-end integrated appliances and bifold/sliding doors opening to a sunny, private landscaped garden with two seating areas.
Upstairs provides two generous double bedrooms and a modern family bathroom; the ground floor includes a flexible bedroom currently used as a dressing room and a separate study/home-office on the lower-ground level. Practical details include gas central heating via a Glow-worm combi boiler, double glazing, freehold tenure and vacant possession with no forward chain.
Be realistic about the trade-offs: the property sits on a relatively small plot and has only one full bathroom plus a separate WC. The house was constructed around 1930–1949 and walls are assumed to be uninsulated cavity — there may be opportunities and costs to improve thermal efficiency. EPC is rated D and the local area records above-average crime levels, which some buyers will want to investigate further.
For buyers wanting a stylish, move-in-ready family home with excellent entertaining space and easy access to local schools, transport and beaches, this house delivers strong lifestyle appeal. For value-focused buyers, the layout and period fabric offer scope to add further energy improvements or reconfigure spaces if desired.
3 bedroom terraced house for sale in Spring Road, Bournemouth, Dorset, BH1 4PX, BH1 — £370,000 • 3 bed • 2 bath • 932 ft²
3 bedroom terraced house for sale in Kensington Drive, Bournemouth, BH2 — £575,000 • 3 bed • 2 bath • 1649 ft²
3 bedroom town house for sale in Rotterdam Drive, Christchurch, BH23 — £400,000 • 3 bed • 2 bath • 1177 ft²
3 bedroom detached house for sale in Kingswell Road, Bournemouth, BH10 — £465,000 • 3 bed • 1 bath • 1219 ft²
3 bedroom mews property for sale in The Woodrisings, 10 Branksome Wood Road, Bournemouth, BH2 — £450,000 • 3 bed • 2 bath • 1848 ft²
4 bedroom town house for sale in Cheyne Gardens, Bournemouth, Dorset, BH4 — £695,000 • 4 bed • 3 bath • 1638 ft²


















































































