Chain-free semi with garage and garden — smart update opportunity for families or first-time buyers.
No upward chain — freehold three-bedroom semi-detached house
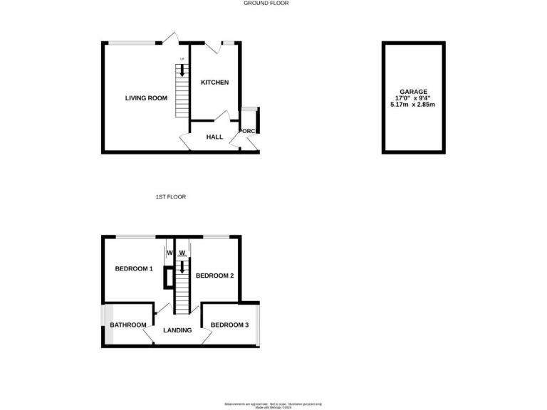
Modest overall size: approx. 786 sq ft, small corner plot
Single garage with gated garden access; off-street parking
Dated galley kitchen (1970s–1980s) — needs modernisation
Two doubles with integrated wardrobes; third room ideal for study
One family bathroom only; limited upstairs bathroom provision
EPC C and council tax band B; mains gas boiler and radiators
Area records higher-than-average crime — consider security measures
Set on a small corner plot in Winyates, this three-bedroom semi-detached house is offered with no upward chain — a straightforward purchase for a growing family or first-time buyer. The layout is traditional and efficient: a generous lounge with a large picture window leads to a modest, extended rear garden with patio, lawn and gated access to a single garage. Commuters will appreciate fast broadband, excellent mobile signal and easy links to the M42/M5.
Accommodation includes two double bedrooms with integrated wardrobes, a smaller third bedroom suited to a child or home office, and a family bathroom. The property’s overall footprint is modest (approximately 786 sq ft) and the internal kitchen and bathroom fittings are dated — the galley kitchen shows 1970s–1980s styling and will need modernising to meet contemporary taste and functionality.
Practical strengths are clear: freehold tenure, EPC rating C, council tax band B and no flood risk. There are several good local schools close by and local amenities within walking distance. However note the area records higher-than-average crime and the plot and interior are relatively small, which may not suit buyers needing extensive outdoor space or additional living areas.
This home suits buyers looking for an affordable, chain-free entry into Redditch with scope to add value through straightforward updating. Renovation of kitchen and cosmetic refreshes would unlock more of the property’s potential while keeping running costs reasonable thanks to gas central heating and cavity wall insulation.
3 bedroom terraced house for sale in Barrow Close, Redditch B98 — £220,000 • 3 bed • 1 bath • 936 ft²
3 bedroom semi-detached house for sale in Flaxley Close, Redditch B98 — £290,000 • 3 bed • 1 bath • 1038 ft²
3 bedroom end of terrace house for sale in Blakemere Close, Winyates East, Redditch, Worcestershire, B98 — £200,000 • 3 bed • 1 bath • 902 ft²
3 bedroom semi-detached house for sale in Landor Road, Greenlands, Redditch, B98 — £190,000 • 3 bed • 1 bath • 893 ft²
3 bedroom semi-detached house for sale in Flaxley Close, Redditch, B98 — £250,000 • 3 bed • 1 bath • 975 ft²
3 bedroom semi-detached house for sale in Cheswick Close, Winyates Green, Redditch, Worcestershire, B98 — £265,000 • 3 bed • 1 bath • 573 ft²










































