Large private plot, three doubles and ground-floor living in peaceful Storth — chain free.
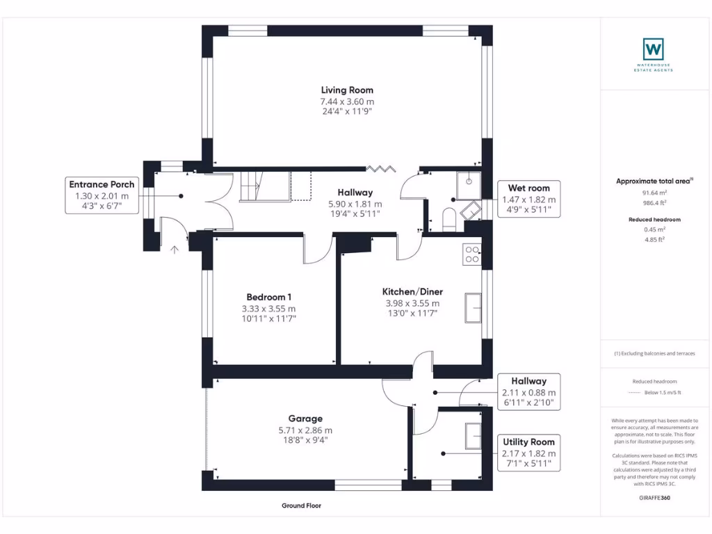
- Three double bedrooms, including a ground-floor bedroom and wetroom
- Large private front and rear gardens with mature planting
- Driveway with internal-access integrated garage
- Chain free and ready to move into
- Built circa 1960; scope for modernisation and updating
- Council tax Band E (above average)
- No mobile signal at the property; broadband reported fast
- No flood risk; freehold tenure
Silvanda is a spacious, three-double-bedroom detached bungalow set on a large, private plot in the peaceful village of Storth. The house offers bright, triple-aspect living space, a ground-floor bedroom with a wetroom, and two further double bedrooms on the first floor — an attractive layout for someone wanting single-floor living with extra guest or hobby space above. The property is chain free and ready to move into, with gas central heating and double glazing (install date unknown).
The gardens are a standout: well-maintained front and rear lawns, mature planting, paved seating and good privacy from hedging. A private driveway leads to an integrated garage with internal access, giving useful parking and storage. Broadband speeds are reported fast and there is no flood risk, which add to everyday convenience and peace of mind.
Buyers should note the bungalow dates from around 1960 and, while well kept, offers scope for sympathetic modernisation or reconfiguration to suit personal tastes. Council tax is band E (above average) and mobile signal is reported as none — important practical points to consider. Overall this home will suit downsizers or buyers seeking a roomy, low-maintenance plot in a quiet, affluent village setting with good local community amenities.
3 bedroom detached house for sale in Greenbank Avenue, Storth, Milnthorpe, LA7 7JP, LA7 — £675,000 • 3 bed • 2 bath • 1947 ft²
3 bedroom detached bungalow for sale in Burntbarrow, Storth, Milnthorpe, LA7 7JW, LA7 — £400,000 • 3 bed • 2 bath • 1257 ft²
2 bedroom semi-detached house for sale in Green Lane, Storth, LA7 — £395,000 • 2 bed • 1 bath • 1580 ft²
4 bedroom detached house for sale in Keasdale Road, Storth, LA7 — £575,000 • 4 bed • 4 bath • 1900 ft²
2 bedroom detached bungalow for sale in 1 Tarn Close, Storth, Milnthorpe, Cumbria, LA7 7HZ, LA7 — £350,000 • 2 bed • 1 bath • 584 ft²
3 bedroom semi-detached bungalow for sale in Langdale Crest, Storth, Milnthorpe, LA7 7JG, LA7 — £350,000 • 3 bed • 2 bath • 1104 ft²


































































































































