PL26 8NR - 4 bedroom end of terrace house for sale in Angarrack Court,…

View on Property Piper

4 bedroom end of terrace house for sale in Angarrack Court, Roche, St. Austell, Cornwall, PL26

Summary - 4 Angarrack Court, Roche PL26 8NR

4 bed 2 bath End of Terrace

- Four bedrooms and two bathrooms suitable for family living
- Small overall size (~915 sq ft) limits internal space
- Private garden; low-maintenance outdoor space
- Off-street parking included
- Built 2007–2011 with double glazing installed
- Electric room heaters only — higher heating costs likely
- Fast broadband and excellent mobile signal for remote work
- Located in a relatively deprived area; consider resale factors
Quiet, practical and ready for everyday family life, this four-bedroom end-terrace offers a sensible layout across circa 915 sq ft. Built within the last two decades, the house benefits from double glazing, modern finishes and a compact private garden — useful for children or low-maintenance outdoor space.

The property’s strengths are straightforward: four bedrooms, two bathrooms, a useful utility area, and off-street parking. Local amenities and good primary schools are close by, while low local crime, fast broadband and excellent mobile signal make the home well-suited to modern family needs and remote working.

Buyers should be aware of clear limitations: the plot and overall size are small, so space is tighter than larger family homes. Heating is by electric room heaters, which can mean higher running costs compared with mains gas or central heating systems. The wider area is classified as relatively deprived, which may affect longer-term resale comparables.

For a family seeking a low-maintenance, modern home in a small-town setting, this property balances practicality and convenience. It’s particularly appropriate for those prioritising nearby schools, connectivity and affordable council tax over expansive gardens or large internal volumes.

Property Details

Brochure Descriptions

Image Descriptions

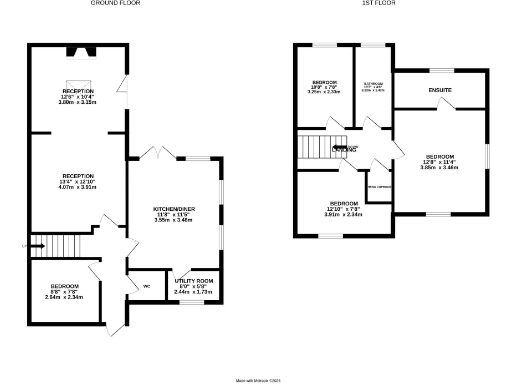
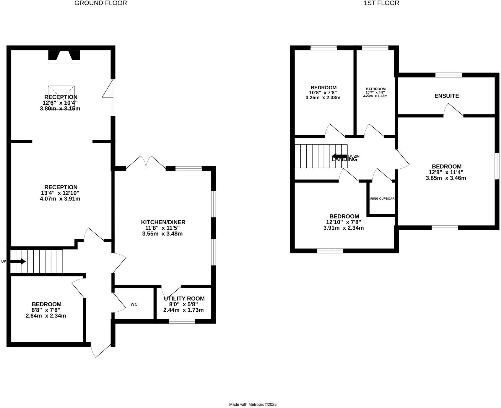
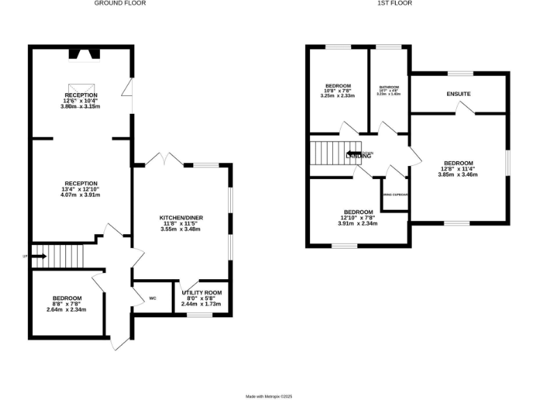
Floorplan Description

Rooms

Textual Property Features

Detected Visual Features

EPC Details

Nearby Schools

Nearest Bars And Restaurants

,,,,}

Nearest General Shops

,,}

Nearest Grocery shops

,,}

Nearest Supermarkets

,,}

Nearest Religious buildings

,,}

Nearest Medical buildings

,,,}

Nearest Leisure Facilities

,,,,}

Nearest Tourist attractions

,,}

Nearest Train stations

,,,,}

Nearest Bus stations and stops

,,,,}

Nearest Hotels

,,}

Tags

Local Market Stats

Similar Properties

Meta

High Res Images

Compatible Images

Low res Images

Thumbnails

Raw Images

High Res Floorplan Images

Compatible Floorplan Images

Low res Floorplan Images

FloorplanImages Thumbnail

Raw Floorplan Images