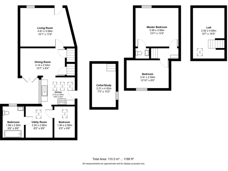
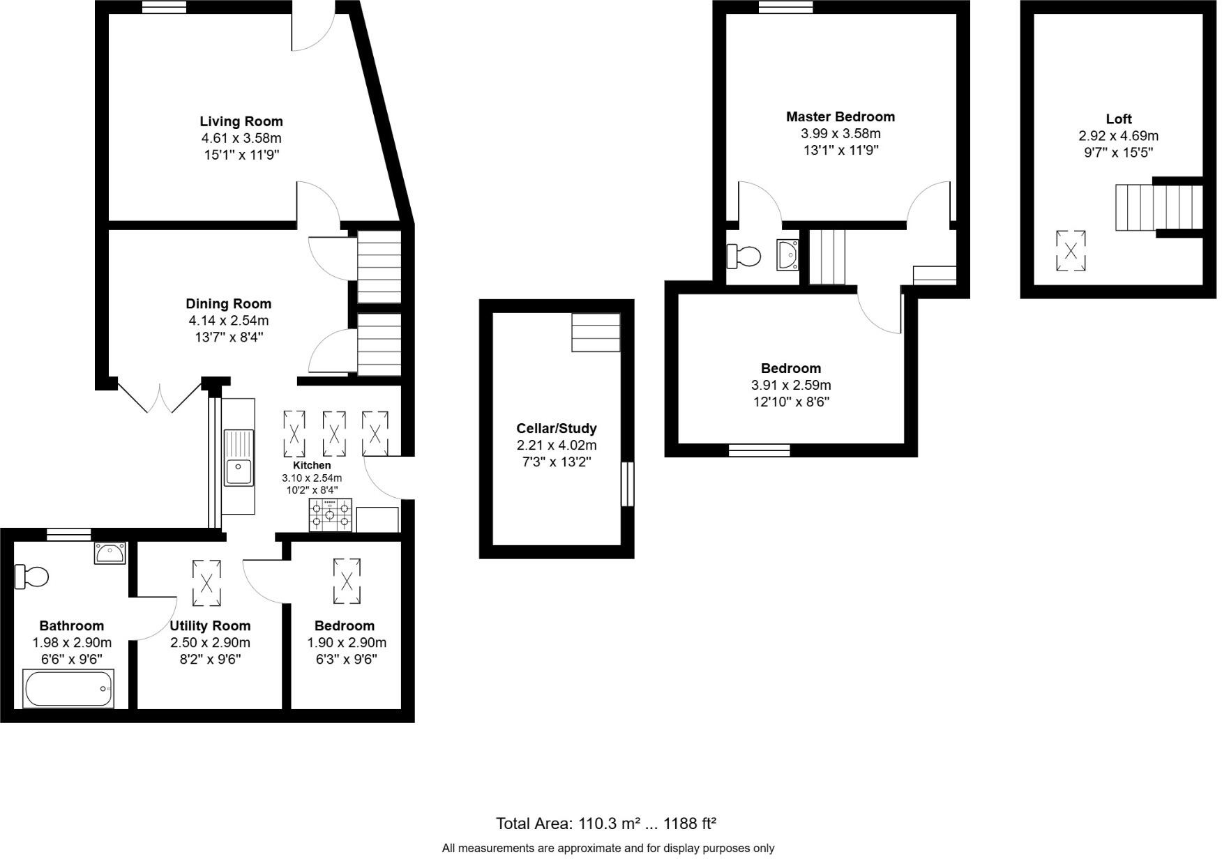
**Standout Features:**
- Charming three-bedroom Victorian semi-detached cottage.
- Located in the heart of Holt town center, just 5 miles from the coast.
- Cozy living spaces with character, featuring a wood burner and conservatory-style kitchen.
- Private low-maintenance courtyard garden.
- Potential for renovation throughout, with opportunities for additional bedrooms or workspaces.
- Nearby on-street parking and a private space a short walk away.
**Summary:**
Welcome to this delightful three-bedroom period cottage nestled in the vibrant town center of Holt, an ideal setting for families, investors, or those seeking a tranquil second home. This semi-detached residence showcases classic Victorian charm, with cozy interiors spread over four floors. The inviting sitting room features a wood burner, leading to a dining area and a well-equipped kitchen bathed in natural light from its conservatory-style window, all overlooking a lovely courtyard garden perfect for outdoor relaxation.
Venture upstairs to find two comfortable bedrooms, including a master with an en-suite, along with a versatile basement space that can serve as a study or additional bedroom. While the property presents excellent potential for future renovations or extensions, it does come with some maintenance considerations, including the age of the building and its structural elements, which may need attention. Enjoy the convenience of Holt's local amenities, with independent shops and restaurants just steps away. 
Seize this opportunity to own a piece of history in a highly sought-after location—properties like this don’t stay on the market for long!
 2 bedroom end of terrace house for sale in Weston Square, Holt, NR25 — £290,000 • 2 bed • 1 bath • 463 ft²
 2 bedroom end of terrace house for sale in Weston Square, Holt, NR25 — £290,000 • 2 bed • 1 bath • 463 ft² 1 bedroom cottage for sale in 8 Carpenters Cottages, Norwich Road, Holt, NR256SA, NR25 — £350,000 • 1 bed • 1 bath • 528 ft²
 1 bedroom cottage for sale in 8 Carpenters Cottages, Norwich Road, Holt, NR256SA, NR25 — £350,000 • 1 bed • 1 bath • 528 ft² 1 bedroom cottage for sale in Lees Yard, Holt, NR25 — £325,000 • 1 bed • 1 bath • 605 ft²
 1 bedroom cottage for sale in Lees Yard, Holt, NR25 — £325,000 • 1 bed • 1 bath • 605 ft² 2 bedroom semi-detached house for sale in Valley Lane, Holt, NR25 — £280,000 • 2 bed • 1 bath • 655 ft²
 2 bedroom semi-detached house for sale in Valley Lane, Holt, NR25 — £280,000 • 2 bed • 1 bath • 655 ft² 3 bedroom semi-detached house for sale in Cross Street, Holt, Norfolk, NR25 — £475,000 • 3 bed • 2 bath • 1374 ft²
 3 bedroom semi-detached house for sale in Cross Street, Holt, Norfolk, NR25 — £475,000 • 3 bed • 2 bath • 1374 ft² 3 bedroom character property for sale in Peacock Lane, Holt, NR25 — £275,000 • 3 bed • 1 bath • 1002 ft²
 3 bedroom character property for sale in Peacock Lane, Holt, NR25 — £275,000 • 3 bed • 1 bath • 1002 ft²


































































































































