Large detached family home with double garage, big garden and versatile layout in Little Ridge.
Chain free and available for the first time in over 40 years
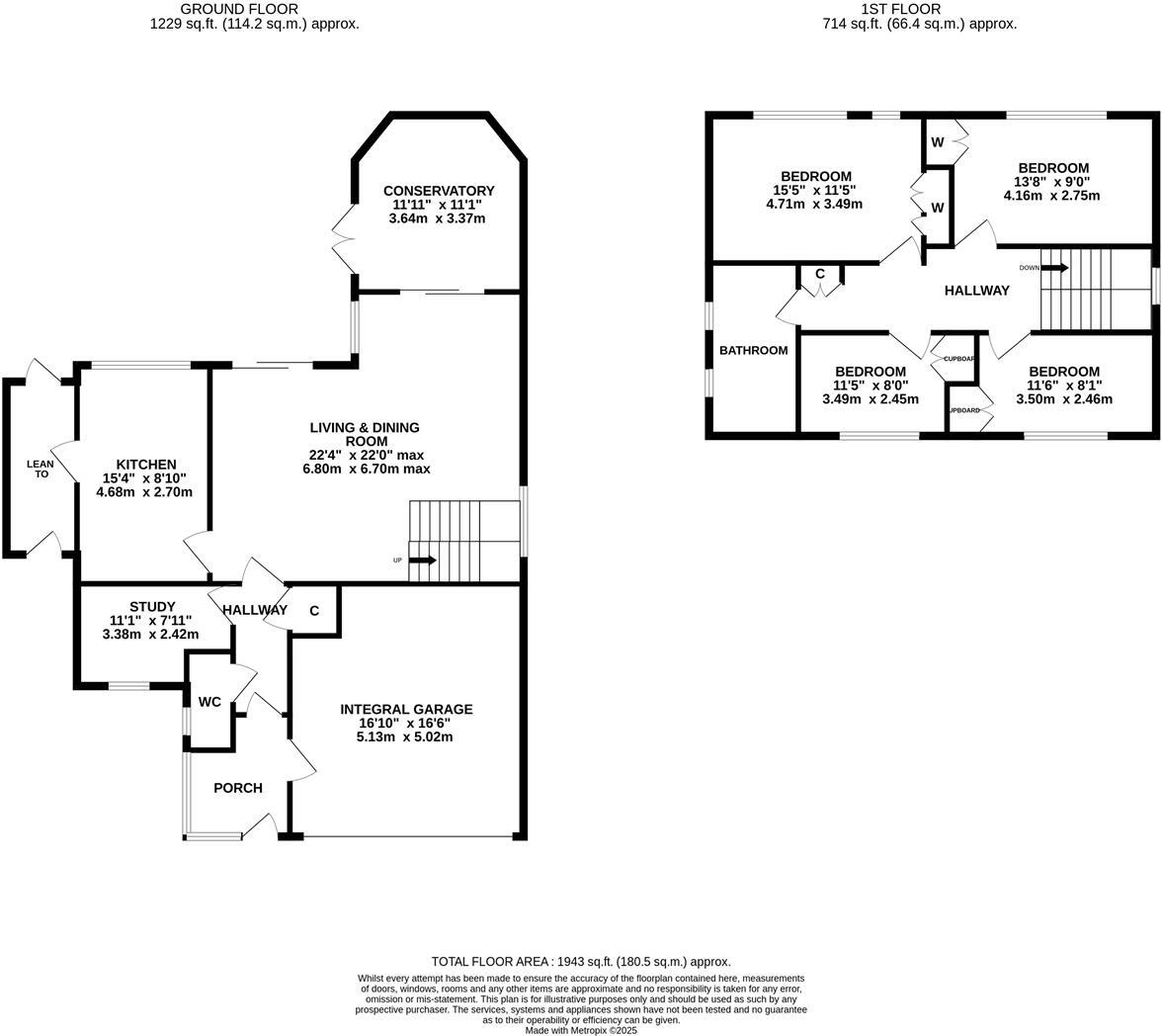
Set in a small cul-de-sac on the Little Ridge, this bright four-bedroom detached home offers generous family space and a large secluded garden. The impressive L-shaped living and dining area opens via sliding doors to a substantial conservatory and patio, creating a natural flow for everyday family life and entertaining. An integral double garage and driveway for two vehicles provide useful storage and off-road parking.
The ground floor layout is versatile: a separate kitchen with lean-to, a study that could serve as a fifth bedroom, and a downstairs cloakroom add flexibility for home working or growing households. All four first-floor bedrooms have built-in storage and share a large family bathroom — an arrangement that suits family routines but may feel constrained for larger households.
Built in the late 1960s–1970s, the property is well-proportioned but retains elements from its era. Double glazing was fitted before 2002 and the house may benefit from modernization of some fixtures and finishes to suit contemporary tastes. Sold freehold and chain-free, it’s available for the first time in over 40 years, offering potential to refresh and personalise without delay.
Location strengths include immediate access to local schools, nearby shop and good transport links, plus The Conquest Hospital within easy reach. Broadband and mobile signals are strong, and the area is affluent with low crime and no flooding risk — practical advantages for family buyers.
 4 bedroom detached house for sale in Silverhill Avenue, St. Leonards-On-Sea, TN37 — £675,000 • 4 bed • 2 bath • 2412 ft²
 4 bedroom detached house for sale in Silverhill Avenue, St. Leonards-On-Sea, TN37 — £675,000 • 4 bed • 2 bath • 2412 ft² 3 bedroom detached house for sale in Eisenhower Drive, St Leonards-on-Sea, TN37 — £375,000 • 3 bed • 1 bath • 1152 ft²
 3 bedroom detached house for sale in Eisenhower Drive, St Leonards-on-Sea, TN37 — £375,000 • 3 bed • 1 bath • 1152 ft² 4 bedroom detached house for sale in Little Ridge Avenue, St. Leonards-On-Sea, TN37 — £425,000 • 4 bed • 2 bath • 1030 ft²
 4 bedroom detached house for sale in Little Ridge Avenue, St. Leonards-On-Sea, TN37 — £425,000 • 4 bed • 2 bath • 1030 ft² 4 bedroom detached house for sale in Arbourvale, St Leonards-on-sea, TN38 — £400,000 • 4 bed • 2 bath • 1113 ft²
 4 bedroom detached house for sale in Arbourvale, St Leonards-on-sea, TN38 — £400,000 • 4 bed • 2 bath • 1113 ft² 4 bedroom detached house for sale in Sandown Way, Bexhill on Sea, TN40 — £475,000 • 4 bed • 2 bath • 1744 ft²
 4 bedroom detached house for sale in Sandown Way, Bexhill on Sea, TN40 — £475,000 • 4 bed • 2 bath • 1744 ft² 4 bedroom detached house for sale in Farmlands Close, St. Leonards-On-Sea, TN37 — £400,000 • 4 bed • 3 bath • 1335 ft²
 4 bedroom detached house for sale in Farmlands Close, St. Leonards-On-Sea, TN37 — £400,000 • 4 bed • 3 bath • 1335 ft²






















































































